




Vitalhaus Riedenthal von Regnauer Hausbau
Ab 572.110 €
Bewertungen von Regnauer Hausbau
5,0
(1)
Wohnfläche
170 m²
Zimmer
5
Ausbaustufe
Schlüsselfertig
Bauweise
Fertighaus
Energiestandard
Effizienzhaus 40 Plus
Dachform
Flachdach
Hausart
Einfamilienhaus
Beschreibung
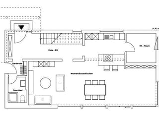
Glas schafft Offenheit - Das junge Paar legt schon durch seine berufliche Tätigkeit – beide arbeiten bei einem Optiker - viel Wert auf den richtigen Durchblick. Auch für die eigenen vier Wände wünschten sich beide Transparenz und helle, lichtdurchflutete Räume. Die weitläufige Verglasung an der Süd- und Westseite des Hauses trägt diesem Wunsch Rechnung und schenkt dem offenen Wohn- und Essbereich Tageslicht bis in den Abend, genauso wie der anschließenden offenen Küche. Auf den 87 Quadratmetern Wohnfläche finden im Erdgeschoss auch ein Hauswirtschaftsraum sowie eine Garderobe und ein Duschbad Platz. Nahtlos gestaltet sich der Übergang von drinnen nach draußen: Vom Wohn- und Essbereich öffnet sich der Raum zur großzügigen Terrasse und vergrößert diesen optisch.
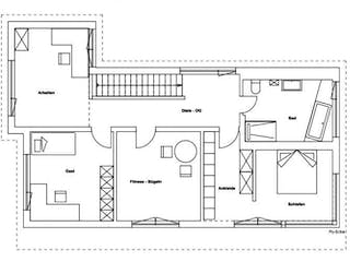
Gelungene Raumaufteilung - Eine Eichentreppe verbindet Erd- und Obergeschoss. Dort setzt sich das kompakte Konzept mit dem offenen Arbeitszimmer fort. Am Ende der Diele gelangt man neben dem großzügigen Bad durch den Ankleidebereich ins Schlafzimmer. Die großflächige Fensterfront mit der Eckverglasung schenkt auch hier viel Licht. Zwei weitere Räume, die derzeit als Gästezimmer und als kombinierter Fitness- und Bügelraum genutzt werden, vervollständigen das rund 91 Quadratmeter große Dachgeschoss. Einer Erweiterung oder anderweitigen Verwendung sind hier natürlich keine Grenzen gesetzt.
Zukunftsweisende Haustechnik – Modernes Wohnen und Energiesparen gehen Hand in Hand: viel Wert legte das Bauherrenpaar auf eine nachhaltige Heiztechnik und entschied sich für ein Gasbrennwertgerät und eine Solaranlage sowie eine Lüftungsanlage mit Wärmerückgewinnung. Die holzfasergedämmte Regnauer-Vitalwand trägt entscheidend zu einem niedrigen Energieverbrauch bei und sorgt außerdem für ein angenehmes und gesundes Raumklima.
Modern und einladend – Die besondere Wirkung des in Massivholz-Riegel-Konstruktion errichteten Baukörpers mit Pultdach basiert auf seiner Fassadengestaltung: Putz und schmale Rhombusleisten bewirken die sympathische Ausstrahlung des zweigeschossigen Hauses. Der Vorsprung über dem Eingangsbereich bietet Schutz und schenkt dem darin untergebrachten Arbeitszimmer zusätzlichen Platz. Eine großzügige Garage steht dem modernen Haus zur Seite.
Ausführung gemäß aktueller Regnauer Bauleistungs- und Ausstattungsbeschreibung. Weitere Informationen auf www.regnauer.de. Abbildungen können Sonderausstattung zeigen. Wir legen großen Wert darauf, Ihr Vitalhaus ganz nach Ihren persönlichen Wünschen zu gestalten. Gemäß Ihren Wünschen und Ihrer Grundstückssituation ergibt sich dann ein exakter Festpreis für Ihr Traumhaus. Daher beziehen sich die Preise auf eine Vitalausstattung ohne spezifische Sonderausstattung.
Voraussetzung zur Erlangung der Bundesförderung für Effiziente Gebäude ist die Einhaltung der diesbezüglichen Förderrichtlinien. So wird hierfür unter anderem die Ausführung einer förderfähigen Haustechnik sowie die entsprechende Ausführung der bauherrenseitigen Leistungen (z.B. Keller und -ausbau) vorausgesetzt. Die Förderrichtlinien sind auch Änderungen unterworfen, sodass die Förderfähigkeit jeweils im Einzelfall geprüft und objektspezifisch durch das Förderinstitut bestätigt werden muss. Auch können einzelne Programme ausgesetzt oder verändert werden. Die Regnauer Hausbau GmbH & Co KG kann keine Finanzierungs- oder Förderberatung durchführen.
Sie haben Interesse?
Laden Sie sich jetzt Ihr kostenloses Exposé zu diesem Haus herunter:
Grundrissfür Vitalhaus Riedenthal
Grundrisse
Der Grundriss entspricht nicht Ihren Vorstellungen?
Passen Sie den Grundriss an Ihre persönlichen Bedürfnisse an und besprechen Sie Ihren individuellen Plan mit einem Bauberater des Anbieters.
Merkmale
Energiestandard und Förderung
Energiestandard
Effizienzhaus 40
Effizienzhaus 40 Plus
Dach
Dachform
Flachdach
Preisdetails für Vitalhaus Riedenthal
Schlüsselfertig ab
572.110 €
ab 1.722,29 €
Dieser Preis ist ein Beispiel für den Anfang, ein Berater kann Ihnen ein detailliertes Angebot erstellen, das Ihren Bedürfnissen entspricht.
Möchten Sie bei Ihrem Projekt Geld sparen?
Durch einen Angebotsvergleich mit Einfamilienhaus.de können Sie bis zu 20 % Ihrer Baukosten sparen.
Über den Anbieter Regnauer Hausbau
Zum Anbieterprofil
Bewertungen
5,0
(1)

Bewertungen
5,0
1 BewertungHervorragend
Regnauer Hausbau in Zahlen
Gründungsjahr
1929
Häuser im Angebot
26
Häuser pro Jahr
ca. 100
Häuser gesamt
über 3.000
Mitarbeiter
250
Bewertungen von Regnauer Hausbau
Wir waren den Sommer über im Allgäu und haben...
Wir waren den Sommer über im Allgäu und haben dort diese wunderschönen Häuser bestaunen können! In unserer Phantasie wünschen wir uns auch schon länger solch ein tolles Haus.
07 Dez. 2025Elphi W.
Leistungsspektrum
Finanzierungsberatung
Preisgarantie
Bauzeit Garantie
Individuelle Planung
Blower Door Test
Persönliche Beratung für Ihre individuellen Wünsche
Finden Sie jetzt Ihren Ansprechpartner
Regnauer Hausbau
Auszeichnungen, Zertifikate & Mitgliedschaften






Ähnliche Häuser Für Vitalhaus Riedenthal