Vita 180 von Hanse Haus
Ab 473.063 €

Bewertungen von Hanse Haus
4,1
(386)
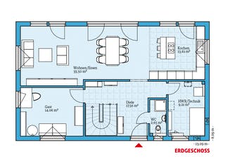
Grundrissfür Vita 180
Außenmaße
Länge: 8,09 m
Breite: 13,09 m
Grundrisse
Der Grundriss entspricht nicht Ihren Vorstellungen?
Passen Sie den Grundriss an Ihre persönlichen Bedürfnisse an und besprechen Sie Ihren individuellen Plan mit einem Bauberater des Anbieters.
Detailsfür Vita 180
Energiestandard und Förderung
Energiestandard
Effizienzhaus 40
Effizienzhaus 40 Plus
Plusenergiehaus
Wärmedurchgangskoeffizient
0,116 (U-Wert)
Effizienzhaus 40 Plus
Ein Effizienzhaus 40 Plus verbraucht im Vergleich zum Referenzhaus 100 > 60 % weniger Energie. Sie müssen für den Hausbau mit Mehrkosten von ~ 13,5 % rechnen, die sich aber mittelfristig auszahlen. Es verfügt im Vergleich zum Effizienzhaus 40 über weitere Komponenten, wie beispielsweise eine Lüftungsanlage mit Wärmerückgewinnung, eine Anlage, mit der auf Basis erneuerbarer Energien Strom erzeugt werden kann und ein Batteriespeichersystem, mit dem überschüssige Energie eingespart werden kann.
Effizienzhaus 40
Seit dem 1. Juli 2010 gibt es neben dem Effizienzhaus 55 und dem Effizienzhaus 70 noch das Effizienzhaus 40. Das Effizienzhaus 40 darf nur 40 Prozent der nach Energieeinsparverordnung 2009 (EnEV) gültigen Höchstwerte hinsichtlich Jahres-Primärenergiebedarf und Transmissionswärmeverlust erreichen. Neben der Einsparung von 60 Prozent beim Jahres-Primärenergiebedarfs sind auch beim Transmissionswärmeverlust 45 Prozent einzusparen. Der maximale Jahresprimärenergiebedarf beträgt 30 kWh/m². Ein KfW-Effizienzhaus 40 Haus ist luftdicht und nutzt regenerative Energien, häufig eine Kombination aus Holzpellets, Solaranlage und Lüftungsanlage mit Wärmerückgewinnung.
Effizienzhaus 55
Ein Effizienzhaus 55 verbraucht im Vergleich zum Referenzhaus 100 45 % weniger Energie. Sie müssen für den Hausbau mit Mehrkosten von ~ 7,5 % rechnen, die sich aber mittelfristig auszahlen. Diese Effizienzklasse gilt heutzutage als Standard für alle neu gebauten Häuser.
Dach
Dachform
Pultdach
Dachneigung
5°
Satteldach
Das Satteldach liegt in Form eines Dreiecks auf dem Baukörper und schließt entweder mit seinem First parallel zu den beiden Giebeln ab oder es ragt noch über die Giebel hinaus. Satteldächer werden als Pfettendach oder als Sparrendach ausgebildet. Üblich sind Dachneigungen ab etwa 30˚ (flaches Satteldach) bis über 60˚ (altdeutsches Dach). Weit verbreitet sind Satteldächer mit etwa 38˚ bis 45˚ Neigung. Diese bieten genug Raum für einen Ausbau des Dachgeschosses.
Zeltdach
Seltene Dachform, die nur auf einem quadratischen oder annähernd quadratischen Grundriß errichtet werden kann. Zelt- oder Pyramidendächer findet man vor allem auf Türmen und Kirchtürmen.
Walmdach
Sehr häufig zu sehende Dachform, dem Satteldach verwandt. Im Gegensatz zu diesem schließt der First jedoch nicht mit den beiden Giebelwänden ab, sondern ist beidseitig zurückgebaut, das heißt abgeschrägt sind. Dabei unterscheidet man noch Zwergwalmdach, Krüppelwalmdach und Fußwalmdach. Da bei diesen Varianten nicht die komplette Seite abgewalmt ist, spricht man auch häufig von Vollwalmdach, wenn der Walm so ausgebildet ist, wie auf der Zeichnung. Weitere Bezeichnungen für Walmdach sind Walbendach, Holländisches Dach, Schopfdach oder Haubendach.
Krüppelwalmdach
Besonders auf nord- und niederdeutschen Gehöften gebräuchliche Variante des Walmdachs. Entspricht einem Walmdach mit hochgesetzter Traufhöhe am Giebel. In manchen Gegenden wird es auch als Schopfwalmdach bezeichnet.
Flachdach
Flachdächer sind allgegenwärtig und dominieren im Gewerbebau, im Bereich des privaten Hausbaus werden sie - mit stark abnehmender Tendenz - bei Bungalows angelegt und natürlich bei Garagen und Carports. Bei Flachdächern erfolgt keine Dacheindeckung mit Dachpfannen, vielmehr wird die Dachfläche mit Dachbahnen oder mit Metallblechen regenfest gemacht. Konstruktiv wird beim Flachdach unterschieden zwischen Kaltdach, Warmdach und Umkehrdach. Mit Dachbahnen abgedichtete Flachdächer werden auch heute noch, wenn auch mit stark abnehmender Tendenz, mit Rollkies belegt. Stark steigend, bei Gewerbebauten jedoch oftmals auch baubehördlich vorgeschrieben, ist die Anlage einer Dachbegrünung. Dadurch wird das Flachdach zum Gründach. Gründächer sind eine sinnvolle Alternative gegen die zunehmende Verdichtung des Bodens. Flachdächer sind im übrigen keineswegs eben, sie müssen ein Gefälle von mindestens 3 % aufweisen, damit das Regenwasser über den Dachgully oder die Dachrinnen abfließen kann.
Pultdach
Gefälledach, das wie ein Pultdeckel auf dem Baukörper liegt. Das Pultdach ist die einfachste Dachform überhaupt. Mit nur einen schrägen Dachfläche ist es kostengünstig herzustellen. Im Mittelmeerraum ist das Pultdach die häufigste Dachform. Seit einiger Zeit erfreut es sich auch hierzulande zunehmender Beliebtheit. Die Dachfläche von Pultdächern liegt meist zur Wetterseite hin, um Wind, Regen und Schnee abzuschirmen. An der Sonnenseite lässt das Haus Raum für große Lichtflächen.
Preisfür Vita 180
Schlüsselfertig ab
473.063 €
ab 1.424,12 €
Dieser Preis ist ein Beispiel für den Anfang, ein Berater kann Ihnen ein detailliertes Angebot erstellen, das Ihren Bedürfnissen entspricht.
Möchten Sie bei Ihrem Projekt Geld sparen?
Durch einen Angebotsvergleich mit Einfamilienhaus.de können Sie bis zu 20 % Ihrer Baukosten sparen.
Hanse Haus
Zum Anbieterprofil
Bewertungen
4,1
(386)

Bewertungen
4,1
386 BewertungenGut
Hanse Haus in Zahlen
Gründungsjahr
1929
Häuser im Angebot
66
Häuser pro Jahr
900
Häuser gesamt
38.000
Mitarbeiter
1000
Bewertungen von Hanse Haus
Sehr kompetente und vertrauensvolle Beratung
Wir sind über eine Empfehlung auf Herrn Michele Fasano gestoßen. Ein Arbeitskollege von uns hat bereits mit ihm gebaut und war sehr zufrieden. Aktuell befinden wir uns in der Beratung, da wir einen Bungalow bauen möchten. Herr Fasano hat sich sehr schnell bei uns gemeldet, sich viel Zeit genommen und uns alle wichtigen Punkte verständlich erklärt. Besonders positiv fanden wir, dass zu keiner Zeit Druck ausgeübt wurde. Stattdessen hat er uns engagiert und kompetent bei der Grundstückssuche unterstützt. Wir fühlen uns sehr gut beraten und freuen uns auf die nächsten Schritte. Vielen Dank für die professionelle, transparente und angenehme Beratung.
27 Jan. 2026Waldemar G.
Unsere Erfahrung mit Bauberater Michele Fasa...
Unsere Erfahrung mit Bauberater Michele Fasano von Hanse Haus - war für uns am Ende sehr enttäuschend. Wir haben uns auf seine Beratung verlassen und sind davon ausgegangen, dass das geplante Haus auf unserem Grundstück genehmigungsfähig ist. Erst nachdem der Vertrag unterschrieben war, wurde deutlich, dass das Haus in dieser Form erhebliche baurechtliche Probleme hat und nur mit hohen Zusatzkosten oder einer grundlegenden Umplanung realisiert werden kann. Über diese Risiken wurde vorher nicht gesprochen. Im Gegenteil: Die Beratung wirkte die ganze Zeit sehr sicher und "professionell", sodass wir keinen Anlass hatten, daran zu zweifeln oder etwas selbst prüfen zu lassen. Besonders ärgerlich war für uns, dass wichtige Informationen erst sehr spät kamen – zu einem Zeitpunkt, an dem die Finanzierung bereits abgeschlossen war und wichtige Fristen zum Rücktritt praktisch nicht mehr möglich waren! Nun statt uns auf den Hausbau freuen zu können, beschäftigen wir uns jetzt mit zusätzlichen Kosten, rechtlichen Fragen und der Suche nach Lösungen für eine Situation, die aus unserer Sicht vermeidbar gewesen wäre. Unser Rat an andere: Seid vorsichtig und verlasst euch nicht nur auf diese Beratung. Lasst alle wichtigen Punkte unabhängig prüfen, bevor ihr Verträge unterschreibt oder Finanzierung abschließt, und macht rechtzeitig einen Termin mit dem Architekten, damit alles geklärt ist, bevor eure Rücktrittsrechte abgelaufen sind! Wir können diese Bauunternehmen leider nicht weiterempfehlen!
09 Jan. 2026Daniel L.
Sehr freundliche Ansprechpartner
Sehr freundliche Ansprechpartner
03 Aug. 2024Christine H.
Leistungsspektrum
Preisgarantie
Bauzeit Garantie
Individuelle Planung
Blower Door Test
Persönliche Beratung für Ihre individuellen Wünsche
Finden Sie jetzt Ihren Ansprechpartner
Hanse Haus
Auszeichnungen, Zertifikate & Mitgliedschaften








