



Nordfjord von AKOST Holzhäuser
Preis auf Anfrage
Bewertungen von AKOST Holzhäuser
3,8
(38)
Wohnfläche
138 m²
Zimmer
4
Bauweise
Fertighaus
Etagen
1
Energiestandard
Effizienzhaus 40
Dachform
Satteldach
Hausart
Einfamilienhaus
Beschreibung
Der Eingeschossige
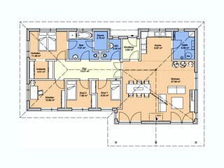
Der Grundriss verbindet die Vorteile einer klassischen Flurerschließung mit der Großzügigkeit einer offenen Wohnlösung. Die Schlaf- und Kinderzimmer werden über einen zentralen Wohnflur erschlossen. Die Raumgrößen können unkompliziert den eigenen Ansprüchen angepasst werden.
Merkmale
- Holzhaus
Sie haben Interesse?
Laden Sie sich jetzt Ihr kostenloses Exposé zu diesem Haus herunter:
Grundrissfür Nordfjord
Außenmaße
Länge: 17,92 m
Breite: 10,01 m
Grundrisse
Der Grundriss entspricht nicht Ihren Vorstellungen?
Passen Sie den Grundriss an Ihre persönlichen Bedürfnisse an und besprechen Sie Ihren individuellen Plan mit einem Bauberater des Anbieters.
Merkmale
Energiestandard und Förderung
Energiestandard
Effizienzhaus 40
Effizienzhaus 55
Dach
Dachform
Satteldach
Dachneigung
25°
Preisdetails für Nordfjord
Preis auf Anfrage
Dieser Preis ist ein Beispiel für den Anfang, ein Berater kann Ihnen ein detailliertes Angebot erstellen, das Ihren Bedürfnissen entspricht.
Möchten Sie bei Ihrem Projekt Geld sparen?
Durch einen Angebotsvergleich mit Einfamilienhaus.de können Sie bis zu 20 % Ihrer Baukosten sparen.
Über den Anbieter AKOST Holzhäuser
Zum Anbieterprofil
Bewertungen
3,8
(38)

Bewertungen
3,8
38 BewertungenGut
AKOST Holzhäuser in Zahlen
Gründungsjahr
2006
Häuser im Angebot
10
Häuser pro Jahr
100
Häuser gesamt
1800
Mitarbeiter
80
Bewertungen von AKOST Holzhäuser
Sehr freundliche, kompetente und hilfsbereite...
Sehr freundliche, kompetente und hilfsbereite Beraterin.
22 Feb. 2026Robert M.
Sehr gute Transparenz für die Angebote. Preis...
Sehr gute Transparenz für die Angebote. Preis Leistung scheint zu passen
06 Sep. 2023Marc B.
Leistungsspektrum
Preisgarantie
Bauzeit Garantie
Individuelle Planung
Blower Door Test
Persönliche Beratung für Ihre individuellen Wünsche
Finden Sie jetzt Ihren Ansprechpartner
AKOST Holzhäuser
Ähnliche Häuser Für Nordfjord