





















Babelsberg von Aye-Bau
Ab 536.400 €
Bewertungen von Aye-Bau
5,0
(1)
Wohnfläche
240 m²
Zimmer
9
Ausbaustufe
Schlüsselfertig
Bauweise
Massivhaus
Etagen
2,5
Energiestandard
Effizienzhaus 55
Dachform
Walmdach
Hausart
Einfamilienhaus
Beschreibung
Moderne, großzügige Stadtvilla mit zeitlos elegantem Erscheinungsbild in schwarz/weiß, abgeschlossenem Elterntrakt und lichtdurchflutetem, offenem Eingangsbereich.
Bei allen zur Verfügung gestellten Bildern - sowohl Außen als auch Innen - sind Mehrleistungen zu sehen. Diese sind im Preis für das schlüsselfertige Haus nicht enthalten!
Alle vorgestellten Haustypen sind Planungsvorschläge, die auf jeden Kunden/jedes Grundstück individuell angepasst werden. Planungsänderungen der Planungsvorschläge sind kostenneutral.
Angaben zum Preis: gemäß Allgemeiner Baubeschreibung; Preis für Ausbauhaus auf Anfrage
Sie haben Interesse?
Laden Sie sich jetzt Ihr kostenloses Exposé zu diesem Haus herunter:
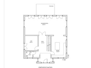
Grundrissfür Babelsberg
Außenmaße
Länge: 11,93 m
Breite: 11,93 m
Grundrisse
Der Grundriss entspricht nicht Ihren Vorstellungen?
Passen Sie den Grundriss an Ihre persönlichen Bedürfnisse an und besprechen Sie Ihren individuellen Plan mit einem Bauberater des Anbieters.
Merkmale
Energiestandard und Förderung
Energiestandard
Effizienzhaus 40
Effizienzhaus 40 EE
Effizienzhaus 40 NH
Effizienzhaus 40 Plus
Effizienzhaus 55
Effizienzhaus 55 EE
Effizienzhaus 55 NH
Plusenergiehaus
Dach
Dachform
Walmdach
Dachneigung
30°
Preisdetails für Babelsberg
Schlüsselfertig ab
536.400 €
ab 1.614,79 €
Dieser Preis ist ein Beispiel für den Anfang, ein Berater kann Ihnen ein detailliertes Angebot erstellen, das Ihren Bedürfnissen entspricht.
Möchten Sie bei Ihrem Projekt Geld sparen?
Durch einen Angebotsvergleich mit Einfamilienhaus.de können Sie bis zu 20 % Ihrer Baukosten sparen.
Über den Anbieter Aye-Bau
Zum Anbieterprofil
Bewertungen
5,0
(1)

Bewertungen
5,0
1 BewertungHervorragend
Aye-Bau in Zahlen
Gründungsjahr
1999
Häuser im Angebot
13
Häuser pro Jahr
15-20
Mitarbeiter
12
Bewertungen von Aye-Bau
Freundlich, kompetent und konstruktiv!
Freundliche, angenehme, kompetente Beratung. Offen für Vorschläge, flexibel in der Herangehensweise. Konstruktiv!
16 März 2026Udo S.
Leistungsspektrum
Finanzierungsberatung
Preisgarantie
Bauzeit Garantie
Individuelle Planung
Blower Door Test
Persönliche Beratung für Ihre individuellen Wünsche
Finden Sie jetzt Ihren Ansprechpartner
Aye-Bau
Ähnliche Häuser Für Babelsberg