




SUNFLOWER von BAUTREND-Haus
Preis auf Anfrage
Bewertungen von BAUTREND-Haus
0
(0)
Wohnfläche
130 m²
Zimmer
4
Ausbaustufe
Schlüsselfertig
Bauweise
Massivhaus
Etagen
1,5
Energiestandard
Effizienzhaus 55
Dachform
Satteldach
Hausart
Einfamilienhaus
Beschreibung
✔ Inkl. GEG Stand 1. Januar 2024
✔ Inkl. Keller mit gedämmter Bodenplatte
✔ Inkl. Tiefbauarbeiten (Erdaushub / Wiederverfüllung / Schotterschicht uvm.)
✔ Inkl. Wärmepumpe & Fußbodenheizung
✔ 3-fach verglaste Fenster (24m² Fensterfläche im Preis inkl.)
✔ Blower-Door-Test
✔ Mit diffusionsoffenem, „atmendem“ Außenmauerwerk, ohne schädliche Styropordämmung
✔ Schlüsselfertig (ohne Wand- und Bodenbeläge, ohne Fliesen)
IM PREIS ENTHALTEN:
Rollläden im EG und OG aus Aluminium, 10x elektrischer Rolladenantrieb
Ing.-Leistungen (Architekt, Statiker, Energieberater, Bauleiter)
Hochwertige Außenfensterbänke aus Granit
Kalkulierte Fensterfläche 24m² = sehr helle Räume (zzgl. Kellerfenster inkl. Lichtschacht)
Vollflächige Gewebearmierung / Egalisationsanstrich
Innentüren 2,11m hoch
EG & OG 2,77m Rohbauhöhe
PV Vorbereitung
Geschlossene Betontreppe mit Stauraummöglichkeit
Eigenleistungen: Fliesen, Wand- und Bodenbeläge
- Zzgl. einer Dusche im EG ca. 2.700 €
Alle gezeigten Sonderbauteile auf Nachfrage. Ohne Wintergartenanbau!
Sie haben Interesse?
Laden Sie sich jetzt Ihr kostenloses Exposé zu diesem Haus herunter:
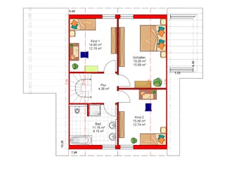
Grundrissfür SUNFLOWER
Außenmaße
Länge: 10,26 m
Breite: 7,99 m
Grundrisse
Der Grundriss entspricht nicht Ihren Vorstellungen?
Passen Sie den Grundriss an Ihre persönlichen Bedürfnisse an und besprechen Sie Ihren individuellen Plan mit einem Bauberater des Anbieters.
Merkmale
Energiestandard und Förderung
Energiestandard
Effizienzhaus 55
Dach
Dachform
Satteldach
Preisdetails für SUNFLOWER
Schlüsselfertig ab
Preis auf Anfrage
Dieser Preis ist ein Beispiel für den Anfang, ein Berater kann Ihnen ein detailliertes Angebot erstellen, das Ihren Bedürfnissen entspricht.
Möchten Sie bei Ihrem Projekt Geld sparen?
Durch einen Angebotsvergleich mit Einfamilienhaus.de können Sie bis zu 20 % Ihrer Baukosten sparen.
Über den Anbieter BAUTREND-Haus
Zum Anbieterprofil
Bewertungen
0
(0)

Bewertungen
0
0 BewertungenKeine
BAUTREND-Haus in Zahlen
Gründungsjahr
2001
Häuser im Angebot
6
Häuser pro Jahr
30
Mitarbeiter
21
Leistungsspektrum
Finanzierungsberatung
Preisgarantie
Bauzeit Garantie
Individuelle Planung
Blower Door Test
Persönliche Beratung für Ihre individuellen Wünsche
Finden Sie jetzt Ihren Ansprechpartner
BAUTREND-Haus
Ähnliche Häuser Für SUNFLOWER