


Belando von Büdenbender Hausbau
Preis auf Anfrage
Bewertungen von Büdenbender Hausbau
4,1
(61)
Wohnfläche
150 m²
Zimmer
8
Ausbaustufe
Schlüsselfertig
Bauweise
Fertighaus
Etagen
1,5
Energiestandard
Effizienzhaus 40
Dachform
Satteldach
Hausart
Einfamilienhaus
Beschreibung
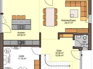
Im Erdgeschoss dominiert der helle, freundliche und offen gestaltete Wohn-, Ess- und Kochbereich, der sich ideal als zentraler Familientreffpunkt eignet. Der direkte Zugang zur Terrasse lädt zum entspannten Frühstück im Freien oder gemütlichen Grillabenden mit Freunden ein. Bodentiefe Fenster verleihen den Räumen im Erdgeschoss Großzügigkeit und ein einladendes Ambiente. So lichtdurchflutet wie der Wohnbereich, sind auch die Räume im Dachgeschoss. Das modern-charmante Fertighaus verfügt über eine Gesamtwohnfläche von 150,47 m2 und überzeugt mit einer intelligenten Raumaufteilung.
Angaben zum Preis: Schlüsselfertig gem. allgemeiner Bau- und Leistungsbeschreibung TB 02/19, ab OK Bodenplatte. Änderungen am Grundriss sind möglich.
Sie haben Interesse?
Laden Sie sich jetzt Ihr kostenloses Exposé zu diesem Haus herunter:
Grundrissfür Belando
Grundrisse
Der Grundriss entspricht nicht Ihren Vorstellungen?
Passen Sie den Grundriss an Ihre persönlichen Bedürfnisse an und besprechen Sie Ihren individuellen Plan mit einem Bauberater des Anbieters.
Merkmale
Energiestandard und Förderung
Energiestandard
Effizienzhaus 40
Effizienzhaus 40 Plus
Effizienzhaus 55
U-Wert
0,147
Dach
Dachform
Satteldach
Dachneigung
38°
Kniestockhöhe
130 cm
Preisdetails für Belando
Schlüsselfertig ab
Preis auf Anfrage
Dieser Preis ist ein Beispiel für den Anfang, ein Berater kann Ihnen ein detailliertes Angebot erstellen, das Ihren Bedürfnissen entspricht.
Möchten Sie bei Ihrem Projekt Geld sparen?
Durch einen Angebotsvergleich mit Einfamilienhaus.de können Sie bis zu 20 % Ihrer Baukosten sparen.
Über den Anbieter Büdenbender Hausbau
Zum Anbieterprofil
Bewertungen
4,1
(61)

Bewertungen
4,1
61 BewertungenGut
Büdenbender Hausbau in Zahlen
Gründungsjahr
1946
Häuser im Angebot
36
Häuser pro Jahr
165
Häuser gesamt
7.000
Mitarbeiter
170
Leistungsspektrum
Finanzierungsberatung
Preisgarantie
Bauzeit Garantie
Individuelle Planung
Blower Door Test
Persönliche Beratung für Ihre individuellen Wünsche
Finden Sie jetzt Ihren Ansprechpartner
Büdenbender Hausbau
Ähnliche Häuser Für Belando