





Freiburg von Fingerhut Haus
Ab 597.971 €
Bewertungen von Fingerhut Haus
4,2
(101)
Wohnfläche
199 m²
Zimmer
6
Ausbaustufe
Schlüsselfertig
Bauweise
Fertighaus
Etagen
2
Energiestandard
Effizienzhaus 55
Dachform
Flachdach
Hausart
Einfamilienhaus
Beschreibung
Ein Aushängeschild für den Bauhaus-Stil
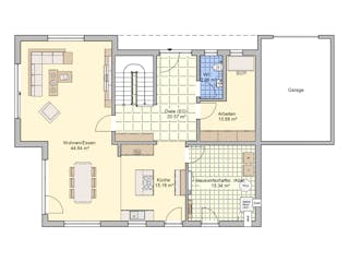
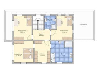
Besondere Merkmale des Hauses Freiburg sind die individuellen Anbauten und die integrierte Garage. Im Zusammenspiel mit der Holzverschalung auf Front- und Rückseite und dem überdachten Eingangsbereich setzt das Gesamtbild des Hauses ein ganz besonderes Design-Statement. Der geschickt geplante Grundriss sorgt für viel Freiheit auf beiden Etagen. Im Erdgeschoss finden ein Arbeitszimmer und ein Gäste-WC ihren Platz. Eine verkürzte Wand im Flur bietet einen direkt Einblick in die Küche. Von hier aus gelangt man direkt in den großen Wohn- und Essbereich. Hier sorgen bodentiefe Fenster und Fenstertüren für viel Licht und einen direkten Zugang zu Terrasse und Garten. Der Hauswirtschaftsraum in Anschluss an die Küche, wird gleichzeitig als Abstellkammer genutzt. Im Obergeschoss gelabt man von der Diele aus in die beiden Kinderzimmer und das Badezimmer. Außerdem wurde hier der elterliche Bereich so geplant, dass Schlafzimmer, Ankleide und Badezimmer direkten Zugang zueinander haben. So haben auch die Eltern ihren eigenen Bereich. Der große Wohn- Essbereich ist perfekt für gemeinsame Abende mit der gesamten Familie geeignet.
Angaben zum Preis:
Die gezeigten Abbildungen zeigen zum Teil Sonderleistungen gegen Mehrpreis. Preis der entsprechenden Ausbaustufe inkl. Fingerhut-Bodenplatte und 19 % MwSt. gemäß der Fingerhut-Bau- und Leistungsbeschreibung 1012, Preisliste P05/25.
Ohne Garage
Merkmale
- Gästezimmer
Sie haben Interesse?
Laden Sie sich jetzt Ihr kostenloses Exposé zu diesem Haus herunter:
Grundrissfür Freiburg
Grundrisse
Der Grundriss entspricht nicht Ihren Vorstellungen?
Passen Sie den Grundriss an Ihre persönlichen Bedürfnisse an und besprechen Sie Ihren individuellen Plan mit einem Bauberater des Anbieters.
Merkmale
Energiestandard und Förderung
Energiestandard
Effizienzhaus 40
Effizienzhaus 40 Plus
Effizienzhaus 55
Plusenergiehaus
U-Wert
0,14
Dach
Dachform
Flachdach
Preisdetails für Freiburg
Schlüsselfertig ab
597.971 €
Ausbauhaus ab394.125 €
ab 1.800,14 €
Dieser Preis ist ein Beispiel für den Anfang, ein Berater kann Ihnen ein detailliertes Angebot erstellen, das Ihren Bedürfnissen entspricht.
Möchten Sie bei Ihrem Projekt Geld sparen?
Durch einen Angebotsvergleich mit Einfamilienhaus.de können Sie bis zu 20 % Ihrer Baukosten sparen.
Über den Anbieter Fingerhut Haus
Zum Anbieterprofil
Bewertungen
4,2
(101)

Bewertungen
4,2
101 BewertungenHervorragend
Fingerhut Haus in Zahlen
Gründungsjahr
1903
Häuser im Angebot
100
Mitarbeiter
145
Bewertungen von Fingerhut Haus
Schlechter Kundenservice nach Abschluss des Projekts
Leider haben wir mit FingerhutHaus sehr negative Erfahrungen gemacht. Mehrere Mängel an der Installation wurden trotz eindeutiger Feststellungen durch den Hersteller nicht anerkannt. Die Kommunikation war langwierig, Verantwortlichkeiten wurden wiederholt auf Nachunternehmer abgeschoben, und eine sachgerechte Klärung blieb aus. Auch nach mehrfachen Nachfragen wurden offene Punkte nicht gelöst. Insgesamt können wir den Kundenservice und die Abwicklung nicht empfehlen.
22 Apr. 2026Chris G.
Tolle Qualität, Transparenz. Werden jedoch d...
Tolle Qualität, Transparenz. Werden jedoch das alte Haus nicht abreißen lassen sondern Sanieren. Das spart viel Geld.
15 März 2026Martina W.
Sehr nette und kompetente Beratung.
Sehr nette und kompetente Beratung.
01 Feb. 2026Torsten D.
Leistungsspektrum
Finanzierungsberatung
Preisgarantie
Bauzeit Garantie
Individuelle Planung
Blower Door Test
Persönliche Beratung für Ihre individuellen Wünsche
Finden Sie jetzt Ihren Ansprechpartner
Fingerhut Haus
Ähnliche Häuser Für Freiburg