







Bauhaus 190 von FischerHaus
Ab 601.920 €
Bewertungen von FischerHaus
4,7
(15)
Wohnfläche
191 m²
Zimmer
6
Ausbaustufe
Schlüsselfertig
Bauweise
Fertighaus
Etagen
2
Energiestandard
Effizienzhaus 40 Plus
Dachform
Flachdach
Hausart
Einfamilienhaus
Beschreibung
So schön kann ein Flachdach sein
In diesem Haus wird ökologisches Wohnen und moderne Architektur vereint. Klare Linien prägen den Baukörper. Das Flachdach ist ein echter Hingucker und verleiht dem Haus den richtigen Pfiff. Die bodentiefen Fenster in Wohn- und Esszimmer lassen Sonnenlicht und Wärme herein und machen diesen Bereich zur Wohlfühlzone für die ganze Familie. Die besondere Dämmung und die offene Bauweise sorgen zusätzlich für Behaglichkeit. Natürlich ist die Raumaufteilung variabel. Im Obergeschoss haben beispielsweise das Schlafzimmer der Eltern und ein Kinderzimmer Platz. Jeder findet hier seinen persönlichen Freiraum. Und trotzdem ist Platz für Gemeinsamkeiten. Fenstertür auf und raus an die frische Luft. Auf dem großen Balkon lässt sich toll gemeinsam frühstücken. Das perfekte Familienhaus.
Merkmale
- Erker
- Balkon
Sie haben Interesse?
Laden Sie sich jetzt Ihr kostenloses Exposé zu diesem Haus herunter:
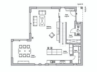
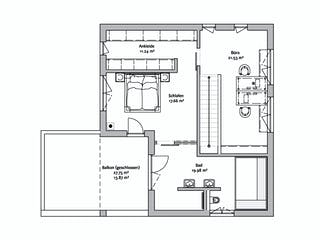
Grundrissfür Bauhaus 190
Außenmaße
Länge: 10,75 m
Breite: 13 m
Grundrisse
Der Grundriss entspricht nicht Ihren Vorstellungen?
Passen Sie den Grundriss an Ihre persönlichen Bedürfnisse an und besprechen Sie Ihren individuellen Plan mit einem Bauberater des Anbieters.
Merkmale
Energiestandard und Förderung
Energiestandard
Effizienzhaus 40 Plus
Dach
Dachform
Flachdach
Preisdetails für Bauhaus 190
Schlüsselfertig ab
601.920 €
Ausbauhaus ab326.040 €
ab 1.812,03 €
Dieser Preis ist ein Beispiel für den Anfang, ein Berater kann Ihnen ein detailliertes Angebot erstellen, das Ihren Bedürfnissen entspricht.
Möchten Sie bei Ihrem Projekt Geld sparen?
Durch einen Angebotsvergleich mit Einfamilienhaus.de können Sie bis zu 20 % Ihrer Baukosten sparen.
Über den Anbieter FischerHaus
Zum Anbieterprofil
Bewertungen
4,7
(15)

Bewertungen
4,7
15 BewertungenHervorragend
FischerHaus in Zahlen
Gründungsjahr
1961
Häuser im Angebot
40
Häuser pro Jahr
140
Häuser gesamt
>13.000
Mitarbeiter
135
Bewertungen von FischerHaus
Schnelle Zusendung der Unterlagen
Schnelle Zusendung der Unterlagen
28 Jan. 2026Nicole H.
Bisher läuft alles super mit der Planung
Bisher läuft alles super mit der Planung
10 März 2024Charly Z.
Leistungsspektrum
Finanzierungsberatung
Preisgarantie
Bauzeit Garantie
Individuelle Planung
Blower Door Test
Persönliche Beratung für Ihre individuellen Wünsche
Finden Sie jetzt Ihren Ansprechpartner
FischerHaus
Auszeichnungen, Zertifikate & Mitgliedschaften






Ähnliche Häuser Für Bauhaus 190