







Modern 191 von FischerHaus
Ab 624.893 €
Bewertungen von FischerHaus
4,7
(15)
Wohnfläche
191 m²
Zimmer
6
Ausbaustufe
Schlüsselfertig
Bauweise
Fertighaus
Etagen
2
Energiestandard
Effizienzhaus 40 Plus
Dachform
Satteldach
Hausart
Zweifamilienhaus
Beschreibung
Ausreichend Platz für die ganze Familie
Ein Beispiel für gelungenes, gelebtes Mehrgenerationen-Wohnen ist das FischerHaus der Familie Bozinovic-Nowak. Das Haus wurde als Zwei-Familienhaus gebaut, mit einer Einliegerwohnung im Erdgeschoss und einem Haupthaus für die Familie. Durch die Aufteilung in zwei Wohneinheiten konnten die Bauherren von einer doppelten Förderung der KfW-Bank profitieren, denn die staatliche Förderung in Form von günstigen Krediten und Tilgungszuschüssen gibt es für jede Wohnung separat. Da FischerHaus standardmäßig besonders sparsame Effizienzhäuser 40 baut, ist diese finanzielle Unterstützung jedem Bauherrn sicher.
Sie haben Interesse?
Laden Sie sich jetzt Ihr kostenloses Exposé zu diesem Haus herunter:
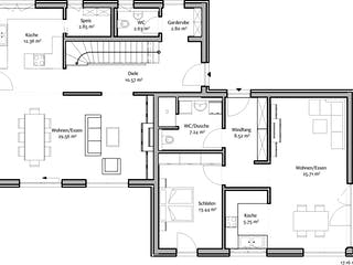
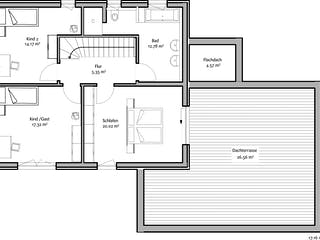
Grundrissfür Modern 191
Außenmaße
Länge: 12 m
Breite: 17,16 m
Grundrisse
Der Grundriss entspricht nicht Ihren Vorstellungen?
Passen Sie den Grundriss an Ihre persönlichen Bedürfnisse an und besprechen Sie Ihren individuellen Plan mit einem Bauberater des Anbieters.
Merkmale
Energiestandard und Förderung
Energiestandard
Effizienzhaus 40 Plus
Dach
Dachform
Satteldach
Dachneigung
30°
Preisdetails für Modern 191
Schlüsselfertig ab
624.893 €
Ausbauhaus ab308.389 €
ab 1.881,19 €
Dieser Preis ist ein Beispiel für den Anfang, ein Berater kann Ihnen ein detailliertes Angebot erstellen, das Ihren Bedürfnissen entspricht.
Möchten Sie bei Ihrem Projekt Geld sparen?
Durch einen Angebotsvergleich mit Einfamilienhaus.de können Sie bis zu 20 % Ihrer Baukosten sparen.
Über den Anbieter FischerHaus
Zum Anbieterprofil
Bewertungen
4,7
(15)

Bewertungen
4,7
15 BewertungenHervorragend
FischerHaus in Zahlen
Gründungsjahr
1961
Häuser im Angebot
40
Häuser pro Jahr
140
Häuser gesamt
>13.000
Mitarbeiter
135
Bewertungen von FischerHaus
Schnelle Zusendung der Unterlagen
Schnelle Zusendung der Unterlagen
28 Jan. 2026Nicole H.
Bisher läuft alles super mit der Planung
Bisher läuft alles super mit der Planung
10 März 2024Charly Z.
Leistungsspektrum
Finanzierungsberatung
Preisgarantie
Bauzeit Garantie
Individuelle Planung
Blower Door Test
Persönliche Beratung für Ihre individuellen Wünsche
Finden Sie jetzt Ihren Ansprechpartner
FischerHaus
Auszeichnungen, Zertifikate & Mitgliedschaften






Ähnliche Häuser Für Modern 191