









Musterhaus CasaMina von FischerHaus
Ab 546.490 €
Bewertungen von FischerHaus
4,7
(15)
Wohnfläche
151 m²
Ausbaustufe
Schlüsselfertig
Bauweise
Fertighaus
Etagen
1,5
Energiestandard
Effizienzhaus 40
Dachform
Satteldach
Hausart
Einfamilienhaus
Beschreibung
CasaMina – Ganzheitliches ElektroHaus aus Holz
Intelligent, unabhängig, unkompliziert: vollelektrisch.
Zwei Herausforderungen hat Fischerhaus mit der neuen vollelektrischen Haus-Variante bewältigt: Energie Speichern & mit Intelligenz Sparen – ohne Komfort-Verzicht. Das Ergebnis lässt sich jetzt als Musterhaus im Bauzentrum Poing bei München von künftigen Bau-Paaren bestaunen.
Lange sind echte Elektrohäuser am Batterie-Problem gescheitert. Sonnenstrom ist wetterabhängig. Bei schönem Wetter gibt’s ihn im Überfluss, wenn es grau und kalt wird, ist er knapp. Man bräuchte teure, große Batterien, wenn man sich den Strom einfach konventionell aufheben wollte. Die bessere Lösung ist, sich das ganze Haus als Speicher zu denken. Bis hin zum E-Auto vor der Tür.
FischerHaus hat deshalb einige entscheidende Vorteile zu einer intelligenten Gesamt-Lösung kombiniert. Erstes Element ist die hervorragende energiesparende Gebäudehülle von FischerHaus. Als zweite Komponente entfaltet das smarte, Haus umfassende „Loxone“ Energiemanagement seine Wirkung. Online werden Wetterdaten verarbeitet, um vorrausschauend die Energien dahin zu lenken, wo Sie später gebraucht werden.
Drittens: Die leistungsstarke Photovoltaikanlage speist diese Energie an der Unterseite des Estrichs ein. Der Fußboden wird so zum Masse-Speicher. Und zwar phasenverschoben: Das heißt, wenn die Sonne draußen bereits schwächer wird, gibt der Boden die Energie in der vorberechneten Zeitspanne an den Raum ab.
Die Kombination von Verschattung und Lüftung kühlt das Gebäude über Nacht mit minimalem Energieaufwand ab und hält tagsüber die Temperatur konstant. Das Brauchwasser wird über eine Luft-Wasser Wärmepumpe gespeist. Zusammen mit der Gebäudebatterie von „sonnen“ und der Speicherkapazität vom künftigen Elektroauto behält das Haus so viel von seinen Überschüssen aus den Sonnentagen, dass es fast durchgehend autark elektrisch funktioniert.
Die ganze dafür erforderliche Gebäudetechnik hat FischerHaus, salopp gesagt, in eine einzelne Kiste gepackt. Daran erinnert das kompakte Technikmodul, das bereits im Werk vorinstalliert wurde. Das Modul ist auf der Baustelle schnell montiert und spart Platz. So gewinnt das Bau-Paar zusätzlich einen Extra-Raum im Haus.
CasaMina verfügt über Komfort-Lichtsteuerung, die alle Lebenssituationen der Familie richtig in Szene setzt. Ausgestattet mit neuen Fenster-Verschlusskontakten, lässt sich die schützende Gebäudehülle via Loxone aus der Ferne von seinen Bewohnern überwachen. Die können per Smartphone auch alle anderen Funktionen im Haus steuern.
Neben dem Komfort ging es den Entwicklern von CasaMina schwerpunktmäßig um die elektrische Effizienz des Hauses. Nichts wird verschwendet. Die Hülle ist sowieso KfW-Effizienzhaus 40 (bei Fischerhaus der Standard). Dazu kommt, dass die gesamte Technik bis ins Detail auf Strom-Sparsamkeit optimiert ist. Von der Beleuchtung bis zum Home-Office und der Sicherheitsanlage: Die Steuerung dafür läuft smart digital.
Das fein abgestimmte Zusammenspiel der beschriebenen Komponenten macht in der Summe den Unterschied. Für das Bau-Paar, seinen Geldbeutel und für die Umwelt.
Daten/Fakten zu CasaMina:
• 151 m² Wohnfläche
• Technikmodul inkl. Installation vorgefertigt im Werk
• Photovoltaikanlage mit 10 kW/P Ost-West Ausrichtung
• Elektrische Beheizung des Estrichs
• Zentrale Komfort Wohnraumlüftung
• Brauchwasser Wärmepumpe
• Ganzheitliche Hausautomation mit der Option Sprachsteuerung
Sie haben Interesse?
Laden Sie sich jetzt Ihr kostenloses Exposé zu diesem Haus herunter:
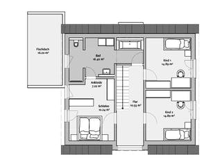
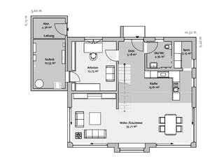
Grundrissfür Musterhaus CasaMina
Außenmaße
Länge: 9,42 m
Breite: 10,52 m
Grundrisse
Der Grundriss entspricht nicht Ihren Vorstellungen?
Passen Sie den Grundriss an Ihre persönlichen Bedürfnisse an und besprechen Sie Ihren individuellen Plan mit einem Bauberater des Anbieters.
Merkmale
Energiestandard und Förderung
Energiestandard
Effizienzhaus 40
Effizienzhaus 40 Plus
Dach
Dachform
Satteldach
Dachneigung
38°
Preisdetails für Musterhaus CasaMina
Schlüsselfertig ab
546.490 €
Ausbauhaus ab268.296 €
ab 1.645,16 €
Dieser Preis ist ein Beispiel für den Anfang, ein Berater kann Ihnen ein detailliertes Angebot erstellen, das Ihren Bedürfnissen entspricht.
Möchten Sie bei Ihrem Projekt Geld sparen?
Durch einen Angebotsvergleich mit Einfamilienhaus.de können Sie bis zu 20 % Ihrer Baukosten sparen.
Über den Anbieter FischerHaus
Zum Anbieterprofil
Bewertungen
4,7
(15)

Bewertungen
4,7
15 BewertungenHervorragend
FischerHaus in Zahlen
Gründungsjahr
1961
Häuser im Angebot
40
Häuser pro Jahr
140
Häuser gesamt
>13.000
Mitarbeiter
135
Bewertungen von FischerHaus
Schnelle Zusendung der Unterlagen
Schnelle Zusendung der Unterlagen
28 Jan. 2026Nicole H.
Bisher läuft alles super mit der Planung
Bisher läuft alles super mit der Planung
10 März 2024Charly Z.
Leistungsspektrum
Finanzierungsberatung
Preisgarantie
Bauzeit Garantie
Individuelle Planung
Blower Door Test
Persönliche Beratung für Ihre individuellen Wünsche
Finden Sie jetzt Ihren Ansprechpartner
FischerHaus
Auszeichnungen, Zertifikate & Mitgliedschaften






Ähnliche Häuser Für Musterhaus CasaMina