







Musterhaus CubeX von FischerHaus
Ab 678.667 €
Bewertungen von FischerHaus
4,7
(15)
Wohnfläche
211 m²
Zimmer
13
Ausbaustufe
Schlüsselfertig
Bauweise
Fertighaus
Etagen
2
Energiestandard
Effizienzhaus 40 Plus
Dachform
Flachdach
Hausart
Zweifamilienhaus
Beschreibung
Variables Wohnkonzept, das doppelt glücklich macht
Wer heute schon den Faktor X, für die Variable im Leben, einplant, der macht auf jeden Fall alles richtig. Denn mit einer Einliegerwohnung, wie im Musterhaus „CubeX“, ist man für alle Fälle gut gerüstet und profitiert doppelt: Heute kann man gut vermieten, morgen braucht man vielleicht einen Arbeitsplatz vor Ort und übermorgen möchte man die Eltern bei sich haben, um sich fürsorglich zu kümmern. Oder Sie haben womöglich ein Aupair für die Kinder? Ganz egal, welchen Ursprungsgedanken Sie verfolgen: Mit dem Faktor X von FischerHaus sind Sie flexibel und können dem Leben in jeder Situation entspannt begegnen. Außerdem können Sie Ihre Fördervorteile verdoppeln. Denn für jede Einliegerwohnung von FischerHaus erhalten Sie auch zweifache Förderung. Das macht doppelt glücklich und sorglos. Heute, morgen und übermorgen.
Merkmale
- Einliegerwohnung
Sie haben Interesse?
Laden Sie sich jetzt Ihr kostenloses Exposé zu diesem Haus herunter:
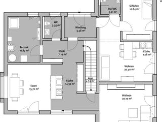
Grundrissfür Musterhaus CubeX
Außenmaße
Länge: 12,81 m
Breite: 13,68 m
Grundrisse
Der Grundriss entspricht nicht Ihren Vorstellungen?
Passen Sie den Grundriss an Ihre persönlichen Bedürfnisse an und besprechen Sie Ihren individuellen Plan mit einem Bauberater des Anbieters.
Merkmale
Energiestandard und Förderung
Energiestandard
Effizienzhaus 40 Plus
Dach
Dachform
Flachdach
Preisdetails für Musterhaus CubeX
Schlüsselfertig ab
678.667 €
Ausbauhaus ab354.953 €
ab 2.043,07 €
Dieser Preis ist ein Beispiel für den Anfang, ein Berater kann Ihnen ein detailliertes Angebot erstellen, das Ihren Bedürfnissen entspricht.
Möchten Sie bei Ihrem Projekt Geld sparen?
Durch einen Angebotsvergleich mit Einfamilienhaus.de können Sie bis zu 20 % Ihrer Baukosten sparen.
Über den Anbieter FischerHaus
Zum Anbieterprofil
Bewertungen
4,7
(15)

Bewertungen
4,7
15 BewertungenHervorragend
FischerHaus in Zahlen
Gründungsjahr
1961
Häuser im Angebot
40
Häuser pro Jahr
140
Häuser gesamt
>13.000
Mitarbeiter
135
Bewertungen von FischerHaus
Schnelle Zusendung der Unterlagen
Schnelle Zusendung der Unterlagen
28 Jan. 2026Nicole H.
Bisher läuft alles super mit der Planung
Bisher läuft alles super mit der Planung
10 März 2024Charly Z.
Leistungsspektrum
Finanzierungsberatung
Preisgarantie
Bauzeit Garantie
Individuelle Planung
Blower Door Test
Persönliche Beratung für Ihre individuellen Wünsche
Finden Sie jetzt Ihren Ansprechpartner
FischerHaus
Auszeichnungen, Zertifikate & Mitgliedschaften






Ähnliche Häuser Für Musterhaus CubeX