


Musterhaus Seegarten von FischerHaus
Ab 435.784 €
Bewertungen von FischerHaus
4,7
(15)
Wohnfläche
148 m²
Zimmer
8
Ausbaustufe
Schlüsselfertig
Bauweise
Fertighaus
Etagen
2
Energiestandard
Effizienzhaus 40 Plus
Dachform
Satteldach
Hausart
Einfamilienhaus
Beschreibung
Das Haus der Zukunft wirkt nicht futuristisch. Mit seiner Schleppdachgaube und der freundlichen Fensterfront strahlt das Gebäude mit dem schönen Namen „Seegarten“ außen vielmehr geerdeten Oberpfälzer Charme aus. Das Innere hat es in sich: Gemütlichkeit, Ambiente – und mehr Energie, als man zum Wohnen braucht.
Das Haus Seegarten, zwischen den neuen FischerHaus-Gärten und dem Hammersee gelegen, ist darüber hinaus ein schönes Beispiel dafür, wie attraktiv es sich in den Hang hinein bauen lässt. Von der Gartenseite her erreicht der Besucher die beiden Wohnungen zum Ausprobieren – sie heißen „Hammersee“ und „Sulzbach“. Ihr Zweck: „Wir wollen den Menschen ermöglichen, die Erfahrung, in einem Haus aus Holz zu leben, mit allen Sinnen zu genießen“, sagt Barbara Fuchs. Verliebte Paare, Eltern mit Kindern, Singles und sonstige Lifestyle-Liebhaber können hier, im Herzen des Oberpfälzer Seenlandes, Kurzurlaub machen und eine Nacht zur Probe wohnen. Das begrünte Flachdach macht Lust auf mehr Natur – die findet sich ringsherum reichlich. Dazu gibt es vom FischerHaus-Team attraktive Freizeit-Tipps für die Umgebung, die voll landschaftlich reizvoller Kleinodien steckt.
Merkmale
- Balkon
Sie haben Interesse?
Laden Sie sich jetzt Ihr kostenloses Exposé zu diesem Haus herunter:
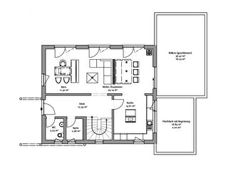
Grundrissfür Musterhaus Seegarten
Außenmaße
Länge: 12,02 m
Breite: 12,52 m
Grundrisse
Der Grundriss entspricht nicht Ihren Vorstellungen?
Passen Sie den Grundriss an Ihre persönlichen Bedürfnisse an und besprechen Sie Ihren individuellen Plan mit einem Bauberater des Anbieters.
Merkmale
Energiestandard und Förderung
Energiestandard
Effizienzhaus 40 Plus
Dach
Dachform
Satteldach
Dachneigung
38°
Preisdetails für Musterhaus Seegarten
Schlüsselfertig ab
435.784 €
Ausbauhaus ab217.588 €
ab 1.311,89 €
Dieser Preis ist ein Beispiel für den Anfang, ein Berater kann Ihnen ein detailliertes Angebot erstellen, das Ihren Bedürfnissen entspricht.
Möchten Sie bei Ihrem Projekt Geld sparen?
Durch einen Angebotsvergleich mit Einfamilienhaus.de können Sie bis zu 20 % Ihrer Baukosten sparen.
Über den Anbieter FischerHaus
Zum Anbieterprofil
Bewertungen
4,7
(15)

Bewertungen
4,7
15 BewertungenHervorragend
FischerHaus in Zahlen
Gründungsjahr
1961
Häuser im Angebot
40
Häuser pro Jahr
140
Häuser gesamt
>13.000
Mitarbeiter
135
Bewertungen von FischerHaus
Schnelle Zusendung der Unterlagen
Schnelle Zusendung der Unterlagen
28 Jan. 2026Nicole H.
Bisher läuft alles super mit der Planung
Bisher läuft alles super mit der Planung
10 März 2024Charly Z.
Leistungsspektrum
Finanzierungsberatung
Preisgarantie
Bauzeit Garantie
Individuelle Planung
Blower Door Test
Persönliche Beratung für Ihre individuellen Wünsche
Finden Sie jetzt Ihren Ansprechpartner
FischerHaus
Auszeichnungen, Zertifikate & Mitgliedschaften






Ähnliche Häuser Für Musterhaus Seegarten