








Modern 146 von FischerHaus
Ab 472.006 €
Bewertungen von FischerHaus
4,7
(15)
Wohnfläche
145 m²
Ausbaustufe
Schlüsselfertig
Bauweise
Fertighaus
Etagen
1,5
Energiestandard
Effizienzhaus 40
Dachform
Satteldach
Hausart
Einfamilienhaus
Beschreibung
Arbeiten und Wohnen unter einem Dach!
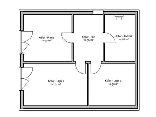
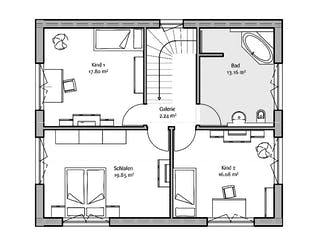
Dieses schöne Einfamilienhaus im modernen Baustil ist mit seinen rund 145 m2 perfekt für eine junge Familie. Die beiden Kinderzimmer im Obergeschoss bieten bei der Familienplanung Platz nach oben. Das eigentliche Highlight liegt bei diesem FischerHaus allerdings im Keller! Dort wurde eine kleine Osteopathie-Praxis eingerichtet, die es der Familie ermöglicht Arbeit und Wohnen unter einem Dach zu ermögliche. Alternativ könnte diese Kellerfläche auch als Einliegerwohnung genutzt werden. Dank der Hanglage bekommt auch das Kellergeschoss volles Sonnenlicht durch die bodentiefen Fenster ab. Ein weiterer Raumvorteil sind die niedrige Dachneigung und der hohe Kniestock im Obergeschoss. Dadurch kann dort der Raum trotz Dachschräge hervorragend genutzt werden und man verliert nicht zu viel Raum und Staufläche.
Sie haben Interesse?
Laden Sie sich jetzt Ihr kostenloses Exposé zu diesem Haus herunter:
Grundrissfür Modern 146
Grundrisse
Der Grundriss entspricht nicht Ihren Vorstellungen?
Passen Sie den Grundriss an Ihre persönlichen Bedürfnisse an und besprechen Sie Ihren individuellen Plan mit einem Bauberater des Anbieters.
Merkmale
Energiestandard und Förderung
Energiestandard
Effizienzhaus 40
Effizienzhaus 40 Plus
Dach
Dachform
Satteldach
Preisdetails für Modern 146
Schlüsselfertig ab
472.006 €
Ausbauhaus ab226.339 €
ab 1.420,93 €
Dieser Preis ist ein Beispiel für den Anfang, ein Berater kann Ihnen ein detailliertes Angebot erstellen, das Ihren Bedürfnissen entspricht.
Möchten Sie bei Ihrem Projekt Geld sparen?
Durch einen Angebotsvergleich mit Einfamilienhaus.de können Sie bis zu 20 % Ihrer Baukosten sparen.
Über den Anbieter FischerHaus
Zum Anbieterprofil
Bewertungen
4,7
(15)

Bewertungen
4,7
15 BewertungenHervorragend
FischerHaus in Zahlen
Gründungsjahr
1961
Häuser im Angebot
40
Häuser pro Jahr
140
Häuser gesamt
>13.000
Mitarbeiter
135
Bewertungen von FischerHaus
Schnelle Zusendung der Unterlagen
Schnelle Zusendung der Unterlagen
28 Jan. 2026Nicole H.
Bisher läuft alles super mit der Planung
Bisher läuft alles super mit der Planung
10 März 2024Charly Z.
Leistungsspektrum
Finanzierungsberatung
Preisgarantie
Bauzeit Garantie
Individuelle Planung
Blower Door Test
Persönliche Beratung für Ihre individuellen Wünsche
Finden Sie jetzt Ihren Ansprechpartner
FischerHaus
Auszeichnungen, Zertifikate & Mitgliedschaften






Ähnliche Häuser Für Modern 146