












Modern 161 von FischerHaus
Ab 530.046 €
Bewertungen von FischerHaus
4,7
(15)
Wohnfläche
162 m²
Ausbaustufe
Schlüsselfertig
Bauweise
Fertighaus
Etagen
1,5
Energiestandard
Effizienzhaus 40 Plus
Dachform
Satteldach
Hausart
Einfamilienhaus
Beschreibung
Platz für´s Hobby muss sein
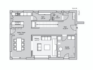
Für ein FischerHaus ist es nie zu spät. Das hat sich auch dieses Baupaar gedacht, das sich in seinen besten Jahren noch den Traum vom Eigenheim auf einem wundervollen Grundstück erfüllt hat. Der lange Baukörper mit 160 m2 passt sich perfekt dem Garten mit einem kleinen Naturteich an. Ein kleines Highlight im Erdgeschoss ist das Regal unter der Sitzbank im Wohnzimmer, in dem das musikbegeisterte Paar ihre komplette Plattensammlung zur Schau stellen kann.
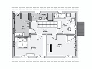
Der ganze Stolz der Familie ist allerdings das 20 m2 große Musikzimmer im Obergeschoss, mit dem sie sich einen großen Traum erfüllt hat. Das Ehepaar verbringt dort viele schöne Stunden mit dem Musizieren.
Merkmale
- Kamin
Sie haben Interesse?
Laden Sie sich jetzt Ihr kostenloses Exposé zu diesem Haus herunter:
Grundrissfür Modern 161
Außenmaße
Länge: 8,64 m
Breite: 13,14 m
Grundrisse
Der Grundriss entspricht nicht Ihren Vorstellungen?
Passen Sie den Grundriss an Ihre persönlichen Bedürfnisse an und besprechen Sie Ihren individuellen Plan mit einem Bauberater des Anbieters.
Merkmale
Energiestandard und Förderung
Energiestandard
Effizienzhaus 40 Plus
Dach
Dachform
Satteldach
Dachneigung
22°
Preisdetails für Modern 161
Schlüsselfertig ab
530.046 €
Ausbauhaus ab265.577 €
ab 1.595,66 €
Dieser Preis ist ein Beispiel für den Anfang, ein Berater kann Ihnen ein detailliertes Angebot erstellen, das Ihren Bedürfnissen entspricht.
Möchten Sie bei Ihrem Projekt Geld sparen?
Durch einen Angebotsvergleich mit Einfamilienhaus.de können Sie bis zu 20 % Ihrer Baukosten sparen.
Über den Anbieter FischerHaus
Zum Anbieterprofil
Bewertungen
4,7
(15)

Bewertungen
4,7
15 BewertungenHervorragend
FischerHaus in Zahlen
Gründungsjahr
1961
Häuser im Angebot
40
Häuser pro Jahr
140
Häuser gesamt
>13.000
Mitarbeiter
135
Bewertungen von FischerHaus
Schnelle Zusendung der Unterlagen
Schnelle Zusendung der Unterlagen
28 Jan. 2026Nicole H.
Bisher läuft alles super mit der Planung
Bisher läuft alles super mit der Planung
10 März 2024Charly Z.
Leistungsspektrum
Finanzierungsberatung
Preisgarantie
Bauzeit Garantie
Individuelle Planung
Blower Door Test
Persönliche Beratung für Ihre individuellen Wünsche
Finden Sie jetzt Ihren Ansprechpartner
FischerHaus
Auszeichnungen, Zertifikate & Mitgliedschaften






Ähnliche Häuser Für Modern 161