







Modern 178 von FischerHaus
Ab 516.912 €
Bewertungen von FischerHaus
4,7
(15)
Wohnfläche
179 m²
Zimmer
11
Ausbaustufe
Schlüsselfertig
Bauweise
Fertighaus
Etagen
2
Energiestandard
Effizienzhaus 40 Plus
Dachform
Satteldach
Hausart
Einfamilienhaus
Beschreibung
Wohnvergnügen der besonderen Art
Sonntagmorgen, es duftet im Haus nach frischem Kaffee und die warmen Strahlen der Morgensonne fallen durch die großen Glasfronten auf den gedeckten Frühstückstisch. Der ideale Platz, um mit der Lieblingszeitung in einen entspannten Tag zu starten. Genau diesem Wunsch hatten die Bauherren, bevor der Traum Wirklichkeit wurde.
Hell und freundlich sollte es werden, damit die beiden Sonnenanbeter die wärmenden Strahlen immer genießen können. Ein weiterer Lieblingsplatz ist die Dachterrasse des Baupaares. Hoch über der Hektik des Alltags kann man hier gemütlich Musik hören, ein Buch lesen oder mit Blick ins Tal meditieren.
Merkmale
- Balkon
Sie haben Interesse?
Laden Sie sich jetzt Ihr kostenloses Exposé zu diesem Haus herunter:
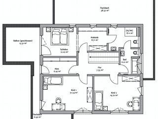
Grundrissfür Modern 178
Außenmaße
Länge: 10,93 m
Breite: 15,61 m
Grundrisse
Der Grundriss entspricht nicht Ihren Vorstellungen?
Passen Sie den Grundriss an Ihre persönlichen Bedürfnisse an und besprechen Sie Ihren individuellen Plan mit einem Bauberater des Anbieters.
Merkmale
Energiestandard und Förderung
Energiestandard
Effizienzhaus 40 Plus
Dach
Dachform
Satteldach
Dachneigung
30°
Preisdetails für Modern 178
Schlüsselfertig ab
516.912 €
Ausbauhaus ab246.708 €
ab 1.556,12 €
Dieser Preis ist ein Beispiel für den Anfang, ein Berater kann Ihnen ein detailliertes Angebot erstellen, das Ihren Bedürfnissen entspricht.
Möchten Sie bei Ihrem Projekt Geld sparen?
Durch einen Angebotsvergleich mit Einfamilienhaus.de können Sie bis zu 20 % Ihrer Baukosten sparen.
Über den Anbieter FischerHaus
Zum Anbieterprofil
Bewertungen
4,7
(15)

Bewertungen
4,7
15 BewertungenHervorragend
FischerHaus in Zahlen
Gründungsjahr
1961
Häuser im Angebot
40
Häuser pro Jahr
140
Häuser gesamt
>13.000
Mitarbeiter
135
Bewertungen von FischerHaus
Schnelle Zusendung der Unterlagen
Schnelle Zusendung der Unterlagen
28 Jan. 2026Nicole H.
Bisher läuft alles super mit der Planung
Bisher läuft alles super mit der Planung
10 März 2024Charly Z.
Leistungsspektrum
Finanzierungsberatung
Preisgarantie
Bauzeit Garantie
Individuelle Planung
Blower Door Test
Persönliche Beratung für Ihre individuellen Wünsche
Finden Sie jetzt Ihren Ansprechpartner
FischerHaus
Auszeichnungen, Zertifikate & Mitgliedschaften






Ähnliche Häuser Für Modern 178