






Modern 234 von FischerHaus
Ab 870.718 €
Bewertungen von FischerHaus
4,7
(15)
Wohnfläche
234 m²
Zimmer
7
Ausbaustufe
Schlüsselfertig
Bauweise
Fertighaus
Etagen
1,5
Energiestandard
Effizienzhaus 55
Dachform
Satteldach
Hausart
Einfamilienhaus
Beschreibung
Wenn von Anfang an Alles passt
Die Baufamilie dieses modernen Einfamilienhauses war sich schnell klar, dass sie mit FischerHaus ihr Traumhaus bauen möchten. So entstand das Modern 234.
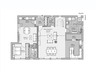
Auf sehr geräumigen 234 m2 bietet es ausreichend Platz für die vierköpfige Familie. Dank der großzügigen Einliegerwohnung im Erdgeschoss hat auch die Mama eine barrierefreie Wohnung und ist zu jederzeit nur eine Tür von ihrer Familie entfernt. Das Herzstück des Hauses ist der offene Wohn-/Essbereich in dem die Familie zusammen kommt um zu kochen, zusammen Abend zu essen oder gemeinsam auf dem Sofa einen Film zu schauen.
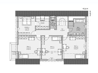
Aber so schön gemeinsame Zeit auch ist, braucht auch jeder seinen Rückzugsort. Im Obergeschoss findet sich Platz für drei großzügige Kinderzimmer, die alle fast gleich groß sind. So kann kein Streit bei der Zimmerwahl entstehen. An das Elternschlafzimmer grenzt eine begehbare Ankleide, mit der sich die Bauherrin einen kleinen Traum erfüllt hat. Endlich hat sie genug Platz für ihre Schuhe. Neben dem gemeinsamen Familienbad mit ebenerdiger Regendusche gibt es im Obergeschoss auch noch eine kleine Toilette.
Die große Terrasse hinterm Haus regt zu gemeinsamen Kaffee und Kuchen in der Sonne an und erweitert das große Wohnzimmer nach draußen.
Merkmale
- Gästezimmer
Sie haben Interesse?
Laden Sie sich jetzt Ihr kostenloses Exposé zu diesem Haus herunter:
Grundrissfür Modern 234
Außenmaße
Länge: 10,02 m
Breite: 16,52 m
Grundrisse
Der Grundriss entspricht nicht Ihren Vorstellungen?
Passen Sie den Grundriss an Ihre persönlichen Bedürfnisse an und besprechen Sie Ihren individuellen Plan mit einem Bauberater des Anbieters.
Merkmale
Energiestandard und Förderung
Energiestandard
Effizienzhaus 40
Effizienzhaus 55
U-Wert
0,12
Dach
Dachform
Satteldach
Dachneigung
42°
Kniestockhöhe
275 cm
Preisdetails für Modern 234
Schlüsselfertig ab
870.718 €
Ausbauhaus ab402.666 €
ab 2.621,22 €
Dieser Preis ist ein Beispiel für den Anfang, ein Berater kann Ihnen ein detailliertes Angebot erstellen, das Ihren Bedürfnissen entspricht.
Möchten Sie bei Ihrem Projekt Geld sparen?
Durch einen Angebotsvergleich mit Einfamilienhaus.de können Sie bis zu 20 % Ihrer Baukosten sparen.
Über den Anbieter FischerHaus
Zum Anbieterprofil
Bewertungen
4,7
(15)

Bewertungen
4,7
15 BewertungenHervorragend
FischerHaus in Zahlen
Gründungsjahr
1961
Häuser im Angebot
40
Häuser pro Jahr
140
Häuser gesamt
>13.000
Mitarbeiter
135
Bewertungen von FischerHaus
Schnelle Zusendung der Unterlagen
Schnelle Zusendung der Unterlagen
28 Jan. 2026Nicole H.
Bisher läuft alles super mit der Planung
Bisher läuft alles super mit der Planung
10 März 2024Charly Z.
Leistungsspektrum
Finanzierungsberatung
Preisgarantie
Bauzeit Garantie
Individuelle Planung
Blower Door Test
Persönliche Beratung für Ihre individuellen Wünsche
Finden Sie jetzt Ihren Ansprechpartner
FischerHaus
Auszeichnungen, Zertifikate & Mitgliedschaften






Ähnliche Häuser Für Modern 234