








Modern 173 von FischerHaus
Ab 502.392 €
Bewertungen von FischerHaus
4,7
(15)
Wohnfläche
173 m²
Zimmer
8
Ausbaustufe
Schlüsselfertig
Bauweise
Fertighaus
Etagen
2
Energiestandard
Effizienzhaus 40 Plus
Dachform
Flachdach
Hausart
Einfamilienhaus
Beschreibung
Modernes Bauhaus für die Innenstadt
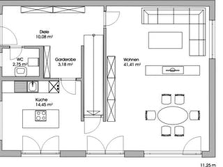
Beim Betreten des Hauses fällt der Blick sogleich auf die gerade Holztreppe und die geräumige Diele, mit integrierter Garderobe und einem Gäste-WC. Im Erdgeschoss gehen der offene Wohn- und Essbereich fließend ineinander über. Dank der großen Glasflächen hat man die Natur immer im Blick. Raumhohe Fensterelemente, die sich großzügig öffnen lassen, bieten weite Blicke und sorgen dank schwellenlosem Übergang zur Terrasse für die Erweiterung des Wohnraums. Der zentrale Blickpunkt im Wohnbereich ist der offene Kamin. Vom praktischen Ecksofa hat man einen herrlichen Blick auf das lodernde Feuer, hier lässt es sich entspannen und die Sorgen des Alltags vergessen. Der große Esstisch mit bequemen Polsterstühlen hat direkt im Anschluss seinen Platz, direkt vor der großen Fensterfläche, mit ausreichend Fläche für die vierköpfige Familie und Gäste.
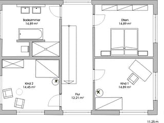
Auch das Obergeschoss bietet der vierköpfigen Familie alle nur erdenklichen Annehmlichkeiten. Die helle und weitläufige Diele erschließt zwei Kinderzimmer, das Familienbadezimmer sowie das geräumige Elternschlafzimmer. Die Kinderzimmer sind besonders hell und vorausschauend geplant. Eine große Fensterfront, die durch ein feststehendes Fensterelement und ein festes Unterlicht vor Absturz gesichert sind, lassen trotzdem genügend Licht zum Spielen und Toben ins Zimmer. Durch elektrische Raffstore wird das Haus komplett beschattet.
Das Einfamilienhaus erstreckt sich über drei Wohneinheiten: Die dritte mit einer sonnenverwöhnten Dachterrasse, konzipiert als Studio und Rückzugsort für die Eltern. „Jetzt haben wir einen Ruheraum, der nach einem anstrengenden Arbeitstag zum
Auf der Nordseite des Hauses ist ein modernes Carport, mit einer trendigen Rhombus-Schalung versehen, passt es optisch zur Verkleidung des Dachgeschosses und passt sich so harmonisch ins Gesamtbild des Hauses mit ein. Hinter dem Carport ist ein Abstellraum, in dem die Haustechnik untergebracht ist und so keine unnötige Wohnfläche verloren geht.
Merkmale
- Gästezimmer
- Dachterrasse
Sie haben Interesse?
Laden Sie sich jetzt Ihr kostenloses Exposé zu diesem Haus herunter:
Grundrissfür Modern 173
Außenmaße
Länge: 7,99 m
Breite: 11,25 m
Grundrisse
Der Grundriss entspricht nicht Ihren Vorstellungen?
Passen Sie den Grundriss an Ihre persönlichen Bedürfnisse an und besprechen Sie Ihren individuellen Plan mit einem Bauberater des Anbieters.
Merkmale
Energiestandard und Förderung
Energiestandard
Effizienzhaus 40 Plus
Dach
Dachform
Flachdach
Dachneigung
5°
Preisdetails für Modern 173
Schlüsselfertig ab
502.392 €
Ausbauhaus ab239.778 €
ab 1.512,41 €
Dieser Preis ist ein Beispiel für den Anfang, ein Berater kann Ihnen ein detailliertes Angebot erstellen, das Ihren Bedürfnissen entspricht.
Möchten Sie bei Ihrem Projekt Geld sparen?
Durch einen Angebotsvergleich mit Einfamilienhaus.de können Sie bis zu 20 % Ihrer Baukosten sparen.
Über den Anbieter FischerHaus
Zum Anbieterprofil
Bewertungen
4,7
(15)

Bewertungen
4,7
15 BewertungenHervorragend
FischerHaus in Zahlen
Gründungsjahr
1961
Häuser im Angebot
40
Häuser pro Jahr
140
Häuser gesamt
>13.000
Mitarbeiter
135
Bewertungen von FischerHaus
Schnelle Zusendung der Unterlagen
Schnelle Zusendung der Unterlagen
28 Jan. 2026Nicole H.
Bisher läuft alles super mit der Planung
Bisher läuft alles super mit der Planung
10 März 2024Charly Z.
Leistungsspektrum
Finanzierungsberatung
Preisgarantie
Bauzeit Garantie
Individuelle Planung
Blower Door Test
Persönliche Beratung für Ihre individuellen Wünsche
Finden Sie jetzt Ihren Ansprechpartner
FischerHaus
Auszeichnungen, Zertifikate & Mitgliedschaften






Ähnliche Häuser Für Modern 173