







Stadtvilla 160 von FischerHaus
Ab 494.723 €
Bewertungen von FischerHaus
4,7
(15)
Wohnfläche
170 m²
Zimmer
8
Ausbaustufe
Schlüsselfertig
Bauweise
Fertighaus
Etagen
2
Energiestandard
Effizienzhaus 40 Plus
Dachform
Walmdach
Hausart
Einfamilienhaus
Beschreibung
KfW-Effizienzhaus 40 mindert die Nebenkosten auf ein Minimum
Wie alle Fischer-Häuser ist auch der Neubau bei Ingolstadt ein KfW-Effizienzhaus 40. Als ein solches hat das Haus einen geringen Heizbedarf, um die Bewohner mit Warmwasser zu versorgen und die Räume angenehm zu temperieren. Somit reduzieren sich die Nebenkosten auf ein Minimum: Der durchschnittliche Endenergiebedarf eines Fischer-Hauses als Effizienzhaus beläuft sich auf ca. 12 kWh/m²a. Damit liegt es im A+-Bereich der Energieeffizienz-Klassifizierung.
Durch eine stetig verschärfte Energieeinsparverordnung steigen die Anforderungen an die Qualität von Neubauten kontinuierlich. Ihre zulässigen Energieverbrauchswerte wurden ab 2009 bereits um 30 % gesenkt und werden ab dem 1. Januar 2016 nochmals verringert werden: Der zulässige Jahres-Primärenergiebedarf wird um durchschnittlich 25 % und die Wärmedämmung der Gebäudehülle, der zulässige Wärmedurchgangskoeffizient, um durchschnittlich 20 % gekürzt. Das Ziel: Bis 2021 sollen alle Neubauten als Null-Energie-Häuser realisiert werden.
Für das Unternehmen FischerHaus geht diese schrittweise Verschärfung viel zu langsam. Schließlich baut der Haushersteller schon seit einigen Jahren im Bereich A+. Bauherren eines Fischer-Hauses haben also schon längst ihre ganz persönliche Energiewende eingeläutet.
Merkmale
- Gästezimmer
Sie haben Interesse?
Laden Sie sich jetzt Ihr kostenloses Exposé zu diesem Haus herunter:
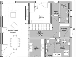
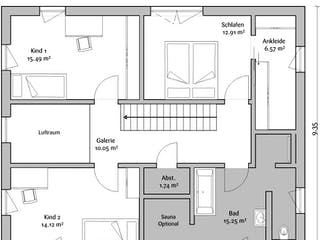
Grundrissfür Stadtvilla 160
Außenmaße
Länge: 9,36 m
Breite: 11,48 m
Grundrisse
Der Grundriss entspricht nicht Ihren Vorstellungen?
Passen Sie den Grundriss an Ihre persönlichen Bedürfnisse an und besprechen Sie Ihren individuellen Plan mit einem Bauberater des Anbieters.
Merkmale
Energiestandard und Förderung
Energiestandard
Effizienzhaus 40 Plus
Dach
Dachform
Walmdach
Dachneigung
22°
Preisdetails für Stadtvilla 160
Schlüsselfertig ab
494.723 €
Ausbauhaus ab233.917 €
ab 1.489,32 €
Dieser Preis ist ein Beispiel für den Anfang, ein Berater kann Ihnen ein detailliertes Angebot erstellen, das Ihren Bedürfnissen entspricht.
Möchten Sie bei Ihrem Projekt Geld sparen?
Durch einen Angebotsvergleich mit Einfamilienhaus.de können Sie bis zu 20 % Ihrer Baukosten sparen.
Über den Anbieter FischerHaus
Zum Anbieterprofil
Bewertungen
4,7
(15)

Bewertungen
4,7
15 BewertungenHervorragend
FischerHaus in Zahlen
Gründungsjahr
1961
Häuser im Angebot
40
Häuser pro Jahr
140
Häuser gesamt
>13.000
Mitarbeiter
135
Bewertungen von FischerHaus
Schnelle Zusendung der Unterlagen
Schnelle Zusendung der Unterlagen
28 Jan. 2026Nicole H.
Bisher läuft alles super mit der Planung
Bisher läuft alles super mit der Planung
10 März 2024Charly Z.
Leistungsspektrum
Finanzierungsberatung
Preisgarantie
Bauzeit Garantie
Individuelle Planung
Blower Door Test
Persönliche Beratung für Ihre individuellen Wünsche
Finden Sie jetzt Ihren Ansprechpartner
FischerHaus
Auszeichnungen, Zertifikate & Mitgliedschaften






Ähnliche Häuser Für Stadtvilla 160