







Stadtvilla 212 von FischerHaus
Ab 552.675 €
Bewertungen von FischerHaus
4,7
(15)
Wohnfläche
209 m²
Zimmer
11
Ausbaustufe
Schlüsselfertig
Bauweise
Fertighaus
Etagen
2
Energiestandard
Effizienzhaus 40 Plus
Dachform
Walmdach
Hausart
Einfamilienhaus
Beschreibung
Mehr Wohnraum für unsere Familie
Schon bei der Planung war uns klar, dass 3 Kinderzimmer für unser neues Haus höchste Priorität haben. Unsere Kinder brauchen endlich alle ein eigenes Reich wo sie sich zurückziehen können. Besonders der Baustil der Stadtvilla überzeugte uns mit seinen vielen Vorzügen. Die fehlenden Schrägen im Dachgeschoss und somit mehr Platz für unsere 5 köpfige Familie auf allen Ebenen begeisterten uns. Die großen Kinderzimmer sowie das Familienbadezimmer und das separate Spielzimmer für unsere Kinder das sich im Erdgeschoss befindet sind für uns die Highlights des Hauses. Unsere Stadtvilla von FischerHaus wurde genau so umgesetzt wie wir es uns vorgestellt haben. Perfekt zugeschnitten auf unsere Familie.“
Merkmale
- Gästezimmer
- Kamin
Sie haben Interesse?
Laden Sie sich jetzt Ihr kostenloses Exposé zu diesem Haus herunter:
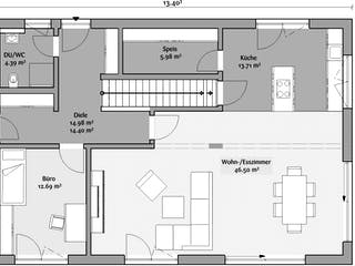
Grundrissfür Stadtvilla 212
Außenmaße
Länge: 9,1 m
Breite: 13,4 m
Grundrisse
Der Grundriss entspricht nicht Ihren Vorstellungen?
Passen Sie den Grundriss an Ihre persönlichen Bedürfnisse an und besprechen Sie Ihren individuellen Plan mit einem Bauberater des Anbieters.
Merkmale
Energiestandard und Förderung
Energiestandard
Effizienzhaus 40 Plus
Dach
Dachform
Walmdach
Dachneigung
22°
Preisdetails für Stadtvilla 212
Schlüsselfertig ab
552.675 €
Ausbauhaus ab267.555 €
ab 1.663,78 €
Dieser Preis ist ein Beispiel für den Anfang, ein Berater kann Ihnen ein detailliertes Angebot erstellen, das Ihren Bedürfnissen entspricht.
Möchten Sie bei Ihrem Projekt Geld sparen?
Durch einen Angebotsvergleich mit Einfamilienhaus.de können Sie bis zu 20 % Ihrer Baukosten sparen.
Über den Anbieter FischerHaus
Zum Anbieterprofil
Bewertungen
4,7
(15)

Bewertungen
4,7
15 BewertungenHervorragend
FischerHaus in Zahlen
Gründungsjahr
1961
Häuser im Angebot
40
Häuser pro Jahr
140
Häuser gesamt
>13.000
Mitarbeiter
135
Bewertungen von FischerHaus
Schnelle Zusendung der Unterlagen
Schnelle Zusendung der Unterlagen
28 Jan. 2026Nicole H.
Bisher läuft alles super mit der Planung
Bisher läuft alles super mit der Planung
10 März 2024Charly Z.
Leistungsspektrum
Finanzierungsberatung
Preisgarantie
Bauzeit Garantie
Individuelle Planung
Blower Door Test
Persönliche Beratung für Ihre individuellen Wünsche
Finden Sie jetzt Ihren Ansprechpartner
FischerHaus
Auszeichnungen, Zertifikate & Mitgliedschaften






Ähnliche Häuser Für Stadtvilla 212