








Stadtvilla 247 von FischerHaus
Ab 602.368 €
Bewertungen von FischerHaus
4,7
(15)
Wohnfläche
247 m²
Zimmer
12
Ausbaustufe
Schlüsselfertig
Bauweise
Fertighaus
Etagen
2
Energiestandard
Effizienzhaus 40 Plus
Dachform
Walmdach
Hausart
Einfamilienhaus
Beschreibung
Gehobener Wohnflair in der Stadtvilla
Diese Stadtvilla bietet nicht nur ausreichend Platz für alle, sondern ermöglicht auch ungezwungene Aktivitäten im Garten. Eine großzügige Wohnfläche, hohe, helle und lichtdurchflutete Räume ausladender Größe und ein weitläufiges Gartengrundstück.
Ein warmer emotionaler mediterranen Stil, und damit ein Haus, in dem sich die Familie und Freunde sofort wohl fühlen. Das Herzstück des Hauses ist die Küche, die perfekte Verbindung von Ästhetik und Funktionalität.
Merkmale
- Gästezimmer
- Kamin
Sie haben Interesse?
Laden Sie sich jetzt Ihr kostenloses Exposé zu diesem Haus herunter:
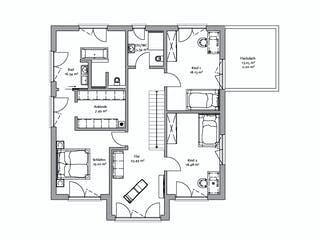
Grundrissfür Stadtvilla 247
Außenmaße
Länge: 12,76 m
Breite: 14,93 m
Grundrisse
Der Grundriss entspricht nicht Ihren Vorstellungen?
Passen Sie den Grundriss an Ihre persönlichen Bedürfnisse an und besprechen Sie Ihren individuellen Plan mit einem Bauberater des Anbieters.
Merkmale
Energiestandard und Förderung
Energiestandard
Effizienzhaus 40 Plus
Dach
Dachform
Walmdach
Dachneigung
22°
Preisdetails für Stadtvilla 247
Schlüsselfertig ab
602.368 €
Ausbauhaus ab299.045 €
ab 1.813,38 €
Dieser Preis ist ein Beispiel für den Anfang, ein Berater kann Ihnen ein detailliertes Angebot erstellen, das Ihren Bedürfnissen entspricht.
Möchten Sie bei Ihrem Projekt Geld sparen?
Durch einen Angebotsvergleich mit Einfamilienhaus.de können Sie bis zu 20 % Ihrer Baukosten sparen.
Über den Anbieter FischerHaus
Zum Anbieterprofil
Bewertungen
4,7
(15)

Bewertungen
4,7
15 BewertungenHervorragend
FischerHaus in Zahlen
Gründungsjahr
1961
Häuser im Angebot
40
Häuser pro Jahr
140
Häuser gesamt
>13.000
Mitarbeiter
135
Bewertungen von FischerHaus
Schnelle Zusendung der Unterlagen
Schnelle Zusendung der Unterlagen
28 Jan. 2026Nicole H.
Bisher läuft alles super mit der Planung
Bisher läuft alles super mit der Planung
10 März 2024Charly Z.
Leistungsspektrum
Finanzierungsberatung
Preisgarantie
Bauzeit Garantie
Individuelle Planung
Blower Door Test
Persönliche Beratung für Ihre individuellen Wünsche
Finden Sie jetzt Ihren Ansprechpartner
FischerHaus
Auszeichnungen, Zertifikate & Mitgliedschaften






Ähnliche Häuser Für Stadtvilla 247