












MH Mannheim - FUTURE von Fertighaus WEISS
Ab 551.116 €
Bewertungen von Fertighaus WEISS
4,1
(111)
Wohnfläche
179 m²
Zimmer
5
Ausbaustufe
Schlüsselfertig
Bauweise
Fertighaus
Etagen
2
Energiestandard
Effizienzhaus 55
Dachform
Satteldach
Hausart
Einfamilienhaus
Beschreibung
Die Zukunft gestalten
Mit dem MH FUTURE Mannheim hat Fertighaus WEISS in Mannheim schon heute ein Zeichen für das Bauen der Zukunft gesetzt. Das Plusenergiehaus ist nicht nur mit einer Effizienzhaus 40-Hülle ausgestattet sondern auch mit topmoderner Haustechnik. So verwundert es nicht, dass das Haus Future in seiner Energiebilanz ein kräftiges Plus aufweist: Zieht man vom Ertrag den Endenergiebedarf und den DIN-Verbrauch eines vierköpfigen Haushalts (ca. 4 500 kWh/a) ab, ergibt sich pro Jahr ein Energieüberschuss von etwa 3054 kWh.
Angaben zum Preis:
Ab OK Bodenplatte, Schlüsselfertig, Standardausstattung, ohne Garage/Sonderausstattung+, Bodenbeleger und Malerarbeiten in Eigenleistung.
Alle WEISS-Häuser sind individuell geplante Architektenhäuser und werden nach den Wünschen unserer Kunden geplant und gebaut. Das abgebildete Haus kann auf Ihre Bedürfnisse und Ihren Platzbedarf angepasst werden.
Sie haben Interesse?
Laden Sie sich jetzt Ihr kostenloses Exposé zu diesem Haus herunter:
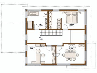
Grundrissfür MH Mannheim - FUTURE
Grundrisse
Der Grundriss entspricht nicht Ihren Vorstellungen?
Passen Sie den Grundriss an Ihre persönlichen Bedürfnisse an und besprechen Sie Ihren individuellen Plan mit einem Bauberater des Anbieters.
Merkmale
Energiestandard und Förderung
Energiestandard
Effizienzhaus 40
Effizienzhaus 40 Plus
Effizienzhaus 55
Plusenergiehaus
Dach
Dachform
Satteldach
Dachneigung
28°
Kniestockhöhe
213 cm
Preisdetails für MH Mannheim - FUTURE
Schlüsselfertig ab
551.116 €
ab 1.659,09 €
Dieser Preis ist ein Beispiel für den Anfang, ein Berater kann Ihnen ein detailliertes Angebot erstellen, das Ihren Bedürfnissen entspricht.
Möchten Sie bei Ihrem Projekt Geld sparen?
Durch einen Angebotsvergleich mit Einfamilienhaus.de können Sie bis zu 20 % Ihrer Baukosten sparen.
Über den Anbieter Fertighaus WEISS
Zum Anbieterprofil
Bewertungen
4,1
(111)

Bewertungen
4,1
111 BewertungenGut
Fertighaus WEISS in Zahlen
Gründungsjahr
1881
Häuser im Angebot
42
Häuser pro Jahr
230
Mitarbeiter
420
Bewertungen von Fertighaus WEISS
Sehr gute Beratung durch Herr Nick
Sehr gute Beratung durch Herr Nick
18 Apr. 2026Hans-Peter H.
Bungalows von Interesse
suchen noch geeignetes Baugrundstück
26 Feb. 2026Kurt H.
Ich warte noch auf ein vorläufiges Angebot!
Ich warte noch auf ein vorläufiges Angebot!
21 Sep. 2025Hans-Joachim K.
Leistungsspektrum
Preisgarantie
Bauzeit Garantie
Individuelle Planung
Blower Door Test
Persönliche Beratung für Ihre individuellen Wünsche
Finden Sie jetzt Ihren Ansprechpartner
Fertighaus WEISS
Auszeichnungen, Zertifikate & Mitgliedschaften



Ähnliche Häuser Für MH Mannheim - FUTURE