



Gomadingen von Rems-Murr-Holzhaus
Ab 263.329 €
Bewertungen von Rems-Murr-Holzhaus
3,8
(37)
Wohnfläche
109 m²
Zimmer
5
Ausbaustufe
Ausbauhaus
Bauweise
Blockhaus
Etagen
1,5
Energiestandard
Effizienzhaus 55
Dachform
Satteldach
Hausart
Einfamilienhaus
Beschreibung
Mit kompakten Außenmaßen erreicht Haus Gomadingen mit seiner perfekten Raumaufteilung eine Gesamtwohnfläche von 106 qm. Eine besonders clevere Lösung, den kombinierten Wohn-Ess-Kochbereich noch geräumiger zu gestalten, ist die einseitige Dachabschleppung. Haus Gomadingen steht für intelligentes, ansprechendes Bauen zu einem hervorragenden Preis-Leistungs-Verhältnis.
Angaben zum Preis: ab OK Kellerdecke; in der Grundversion laut Leistungsumfang Katalog und incl. 19% MwSt.
Sie haben Interesse?
Laden Sie sich jetzt Ihr kostenloses Exposé zu diesem Haus herunter:
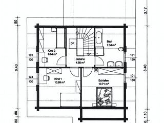
Grundrissfür Gomadingen
Außenmaße
Länge: 9 m
Breite: 9,5 m
Grundrisse
Der Grundriss entspricht nicht Ihren Vorstellungen?
Passen Sie den Grundriss an Ihre persönlichen Bedürfnisse an und besprechen Sie Ihren individuellen Plan mit einem Bauberater des Anbieters.
Merkmale
Energiestandard und Förderung
Energiestandard
Effizienzhaus 55
U-Wert
0,17
Dach
Dachform
Satteldach
Dachneigung
35°
Kniestockhöhe
50 cm
Preisdetails für Gomadingen
Ausbauhaus ab
263.329 €
ab 792,73 €
Dieser Preis ist ein Beispiel für den Anfang, ein Berater kann Ihnen ein detailliertes Angebot erstellen, das Ihren Bedürfnissen entspricht.
Möchten Sie bei Ihrem Projekt Geld sparen?
Durch einen Angebotsvergleich mit Einfamilienhaus.de können Sie bis zu 20 % Ihrer Baukosten sparen.
Über den Anbieter Rems-Murr-Holzhaus
Zum Anbieterprofil
Bewertungen
3,8
(37)

Bewertungen
3,8
37 BewertungenGut
Rems-Murr-Holzhaus in Zahlen
Gründungsjahr
1986
Häuser im Angebot
18
Häuser pro Jahr
20
Mitarbeiter
16
Bewertungen von Rems-Murr-Holzhaus
Hat sich bislang nicht gemeldet und auch kein...
Hat sich bislang nicht gemeldet und auch keine Unterlagen geschickt. Der Baustil passt nicht in die umliegenden Häuser. Wir möchten hier keine weiteren Kontaktaufnahmen.
15 Jan. 2026Yvonne G.
Keine passenden möglichen Lösungen
Keine passenden möglichen Lösungen
25 Sep. 2025Wilfried Z.
Danke für die Informationen
Danke für die Informationen
07 Juni 2025Claudia F.
Leistungsspektrum
Preisgarantie
Bauzeit Garantie
Individuelle Planung
Blower Door Test
Persönliche Beratung für Ihre individuellen Wünsche
Finden Sie jetzt Ihren Ansprechpartner
Rems-Murr-Holzhaus
Ähnliche Häuser Für Gomadingen