




Doppelhaus 35-130 von Hanse Haus
Ab 378.970 €
Bewertungen von Hanse Haus
4,1
(389)
Wohnfläche
115 m²
Zimmer
4
Ausbaustufe
Schlüsselfertig
Bauweise
Fertighaus
Etagen
1,5
Energiestandard
Effizienzhaus 40 Plus
Dachform
Satteldach
Hausart
Doppelhaus
Beschreibung
Der Bau eines Doppelhauses bietet viele Vorteile. Gerade in Wohngegenden mit hohen Grundstückspreisen wirkt sich der niedrigere Platzbedarf eines Doppelhauses sehr positiv aus. Oder Sie planen Ihr Doppelhaus als Mehrgenerationenhaus, damit die eigenen Eltern auch im Alter Anschluss an die Familie haben. Wie auch immer Sie Ihr Doppelhaus planen, einen Vorteil haben Sie in jedem Fall: Sie können sich Ihre direkten Nachbarn selbst aussuchen. Auch bei der Gestaltung des Hauses können beide Parteien ihre Vorstellungen realisieren. Statt einheitlicher Farbgebung bei beiden Haushälften wirken auch Farbkombinationen wie z. B. beim abgebildeten Doppelhaus 35-130 sehr harmonisch.
ENERGIE-EFFIZIENZ
Standardmäßig entspricht die Gebäudehülle der Hanse-Häuser den Anforderungen zum Bau von KfW-40 Effizienzhäusern. In Kombination mit einem der Heiz- und Haustechnikpakete werden die Förderkriterien der Kreditanstalt für Wiederaufbau (KfW) zum Erhalt von günstigen Finanzierungskonditionen erfüllt. Hanse-Häuser können als Effizienzhaus oder als Passivhaus bzw. PlusEnergie-Haus realisiert werden.
Angaben zum Preis: schlüsselfertig mit Bodenplatte; evtl. Preisabweichungen durch Sonderausstattung möglich.
Sie haben Interesse?
Laden Sie sich jetzt Ihr kostenloses Exposé zu diesem Haus herunter:
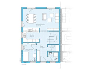
Grundrissfür Doppelhaus 35-130
Außenmaße
Länge: 10,59 m
Breite: 7,4 m
Grundrisse
Der Grundriss entspricht nicht Ihren Vorstellungen?
Passen Sie den Grundriss an Ihre persönlichen Bedürfnisse an und besprechen Sie Ihren individuellen Plan mit einem Bauberater des Anbieters.
Merkmale
Energiestandard und Förderung
Energiestandard
Effizienzhaus 40
Effizienzhaus 40 Plus
Plusenergiehaus
U-Wert
0,116
Dach
Dachform
Satteldach
Dachneigung
35°
Kniestockhöhe
120 cm
Preisdetails für Doppelhaus 35-130
Schlüsselfertig ab
378.970 €
ab 1.140,86 €
Dieser Preis ist ein Beispiel für den Anfang, ein Berater kann Ihnen ein detailliertes Angebot erstellen, das Ihren Bedürfnissen entspricht.
Möchten Sie bei Ihrem Projekt Geld sparen?
Durch einen Angebotsvergleich mit Einfamilienhaus.de können Sie bis zu 20 % Ihrer Baukosten sparen.
Über den Anbieter Hanse Haus
Zum Anbieterprofil
Bewertungen
4,1
(389)

Bewertungen
4,1
389 BewertungenGut
Hanse Haus in Zahlen
Gründungsjahr
1929
Häuser im Angebot
66
Häuser pro Jahr
ca. 750
Häuser gesamt
39.000
Mitarbeiter
1000
Bewertungen von Hanse Haus
Besprechungstermin findet demnächst statt.
Besprechungstermin findet demnächst statt.
16 März 2026Kirsten L.
Einfach nur schlecht! Die Beratung war unteri...
Einfach nur schlecht! Die Beratung war unterirdisch!! Der Berater ist nicht auf unsere wünsche eingegangen.
07 März 2026Michael W.
Sehr gute Beratung, schnelle Kontktaufnahme
Sehr gute Beratung, schnelle Kontktaufnahme
02 Feb. 2026Juliane B.
Leistungsspektrum
Preisgarantie
Bauzeit Garantie
Individuelle Planung
Blower Door Test
Persönliche Beratung für Ihre individuellen Wünsche
Finden Sie jetzt Ihren Ansprechpartner
Hanse Haus
Auszeichnungen, Zertifikate & Mitgliedschaften






Ähnliche Häuser Für Doppelhaus 35-130