




Mehrfamilienhaus KUBOS 4.269_a von KAMPA - Mehrfamilienhäuser
Ab 1.847.375 €
Bewertungen von KAMPA - Mehrfamilienhäuser
4,2
(6)
Wohnfläche
296 m²
Zimmer
22
Ausbaustufe
Schlüsselfertig
Bauweise
Fertighaus
Etagen
2,5
Energiestandard
Effizienzhaus 40
Dachform
Flachdach
Hausart
Mehrfamilienhaus
Beschreibung
Praktisch und elegant. Das beschreibt den Stil unseres Flachdachhauses KUBOS am besten. Mit einer Aufteilung in vier Wohneinheiten bietet das teilunterkellerte zweigeschossige KUBOS genügend Platz für Familien jeder Größenordnung. Die einzelnen Geschosse lassen sich gemütlich mit dem Aufzug erreichen. Für zusätzliches Wohlfühlen sorgt unsere Basic-Küche, über die jede Wohneinheit verfügt. Mit dem selbsterzeugten Strom durch die Photovoltaik-Anlage mit Speicher wird der Allgemeinstrom abgedeckt. Dies zahlt sich aus, nicht nur für die Mieter!
Merkmale
- Balkon
Sie haben Interesse?
Laden Sie sich jetzt Ihr kostenloses Exposé zu diesem Haus herunter:
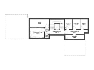
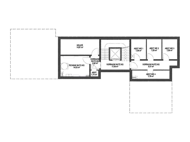
Grundrissfür Mehrfamilienhaus KUBOS 4.269_a
Grundrisse
Der Grundriss entspricht nicht Ihren Vorstellungen?
Passen Sie den Grundriss an Ihre persönlichen Bedürfnisse an und besprechen Sie Ihren individuellen Plan mit einem Bauberater des Anbieters.
Merkmale
Energiestandard und Förderung
Energiestandard
Effizienzhaus 40
Dach
Dachform
Flachdach
Preisdetails für Mehrfamilienhaus KUBOS 4.269_a
Schlüsselfertig ab
1.847.375 €
ab 5.561,37 €
Dieser Preis ist ein Beispiel für den Anfang, ein Berater kann Ihnen ein detailliertes Angebot erstellen, das Ihren Bedürfnissen entspricht.
Möchten Sie bei Ihrem Projekt Geld sparen?
Durch einen Angebotsvergleich mit Einfamilienhaus.de können Sie bis zu 20 % Ihrer Baukosten sparen.
Über den Anbieter KAMPA - Mehrfamilienhäuser

Bewertungen
4,2
(6)

Bewertungen
4,2
6 BewertungenHervorragend
KAMPA - Mehrfamilienhäuser in Zahlen
Gründungsjahr
2009
Häuser im Angebot
6
Mitarbeiter
>550
Bewertungen von KAMPA - Mehrfamilienhäuser
konstanter Austausch
konstanter Austausch
31 Jan. 2026Dirk H.
Ansprechpartner waren sehr kompetent. Wir hat...
Ansprechpartner waren sehr kompetent. Wir hatten ein zielführendes Gespräch,in welchem unseren Fragen beantwortet wurden.
24 Jan. 2026Jürgen W.
Termineinhaltung
Kampa hat sich gemeldet und kommt im neuen Jahr auf mich zu
02 Jan. 2026Josef G.
Leistungsspektrum
Finanzierungsberatung
Preisgarantie
Bauzeit Garantie
Individuelle Planung
Blower Door Test
Auszeichnungen, Zertifikate & Mitgliedschaften





Ähnliche Häuser Für Mehrfamilienhaus KUBOS 4.269_a