





Mehrfamilienhaus MAGOS 3.279 von KAMPA - Mehrfamilienhäuser
Ab 1.384.455 €
Bewertungen von KAMPA - Mehrfamilienhäuser
4,3
(7)
Wohnfläche
279 m²
Zimmer
19,5
Ausbaustufe
Schlüsselfertig
Bauweise
Fertighaus
Etagen
4
Energiestandard
Effizienzhaus 40
Dachform
Satteldach
Hausart
Mehrfamilienhaus
Beschreibung
Die persönliche Note steht bei unserem unterkellerten viergeschossigem Satteldachhaus MAGOS im Vordergrund. Die Bauweise des klassischen Satteldachs bietet viele verschiedene Wohnmöglichkeiten für alle Bewohner. Ausreichend Platz, verwinkelte Dachschrägen und Dachfenster charakterisieren das warme Ambiente unseres MAGOS. In den fünf Wohneinheiten mit Basic-Küche findet sich ausreichend Raum für jede Familie. Mit dem selbsterzeugten Strom durch die Photovoltaik-Anlage mit Speicher wird der Allgemeinstrom abgedeckt. Dies zahlt sich aus, nicht nur für die Mieter!
Merkmale
- Balkon
Sie haben Interesse?
Laden Sie sich jetzt Ihr kostenloses Exposé zu diesem Haus herunter:
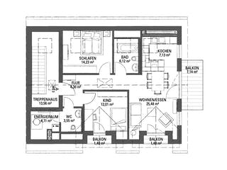
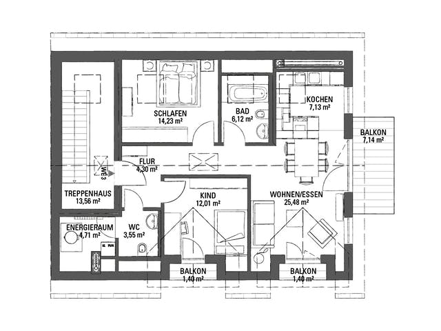
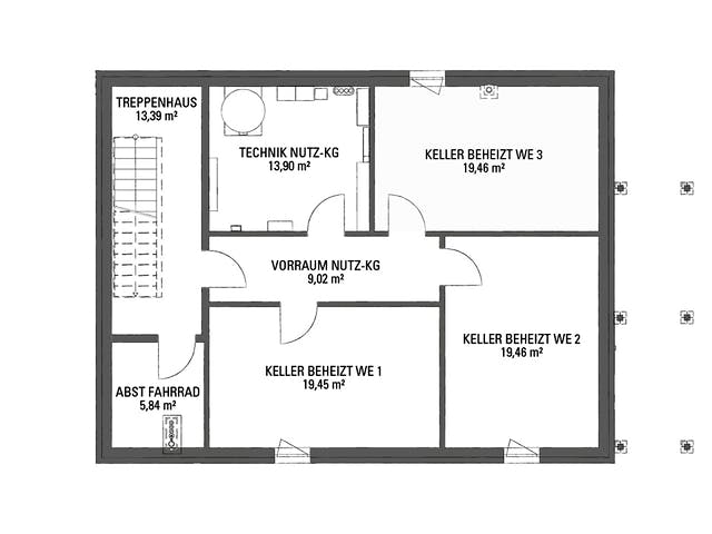
Grundrissfür Mehrfamilienhaus MAGOS 3.279
Grundrisse
Der Grundriss entspricht nicht Ihren Vorstellungen?
Passen Sie den Grundriss an Ihre persönlichen Bedürfnisse an und besprechen Sie Ihren individuellen Plan mit einem Bauberater des Anbieters.
Merkmale
Energiestandard und Förderung
Energiestandard
Effizienzhaus 40
Dach
Dachform
Satteldach
Dachneigung
35°
Kniestockhöhe
97 cm
Preisdetails für Mehrfamilienhaus MAGOS 3.279
Schlüsselfertig ab
1.384.455 €
ab 4.167,79 €
Dieser Preis ist ein Beispiel für den Anfang, ein Berater kann Ihnen ein detailliertes Angebot erstellen, das Ihren Bedürfnissen entspricht.
Möchten Sie bei Ihrem Projekt Geld sparen?
Durch einen Angebotsvergleich mit Einfamilienhaus.de können Sie bis zu 20 % Ihrer Baukosten sparen.
Über den Anbieter KAMPA - Mehrfamilienhäuser

Bewertungen
4,3
(7)

Bewertungen
4,3
7 BewertungenHervorragend
KAMPA - Mehrfamilienhäuser in Zahlen
Gründungsjahr
2009
Häuser im Angebot
6
Mitarbeiter
>550
Bewertungen von KAMPA - Mehrfamilienhäuser
Ausnehmend guter Austausch, kompetent, hilfsb...
Ausnehmend guter Austausch, kompetent, hilfsbereit und stets sympathisch. Schade, dass das Projekt zum jetzigen Zeitpunkt nicht realisiert werden kann.
20 Apr. 2026Jürgen R.
konstanter Austausch
konstanter Austausch
31 Jan. 2026Dirk H.
Ansprechpartner waren sehr kompetent. Wir hat...
Ansprechpartner waren sehr kompetent. Wir hatten ein zielführendes Gespräch,in welchem unseren Fragen beantwortet wurden.
24 Jan. 2026Jürgen W.
Leistungsspektrum
Finanzierungsberatung
Preisgarantie
Bauzeit Garantie
Individuelle Planung
Blower Door Test
Auszeichnungen, Zertifikate & Mitgliedschaften





Ähnliche Häuser Für Mehrfamilienhaus MAGOS 3.279