





Bauhaus Cono von Kern-Haus
Ab 648.900 €
Bewertungen von Kern-Haus
3,9
(82)
Wohnfläche
217 m²
Zimmer
4
Ausbaustufe
Schlüsselfertig
Bauweise
Massivhaus
Etagen
2
Energiestandard
Effizienzhaus 55 EE
Dachform
Flachdach
Hausart
Einfamilienhaus
Beschreibung
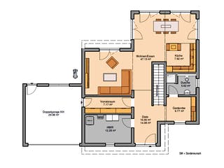
Das Bauhaus Cono von Kern-Haus ist von Extravaganz und Moderne geprägt. Das Erdgeschoss ist sehr offen gestaltet: die große Diele geht direkt in den offenen Wohnbereich über, der aus einer Sofaecke und dem lichtdurchfluteten Essbereich mit offener Küche besteht. Abgerundet wird das Erdgeschoss durch eine Garderoben-Ecke, ein Duschbad, dem Hauswirtschaftsraum und einem Vorratszimmer, der gleichzeitig als Durchgang zur Garage dient.
Im Obergeschoss befinden sich ein Kinderzimmer, ein Home-Office und ein Duschbad. Perfekt wird der Grundriss durch den separaten Elternbereich mit Schlafzimmer, einer Ankleide und einem über 25 m² großen Wellnessbad, welches ausreichend Platz für eine Sauna bietet. Nicht zu vergessen ist die große Dachterrasse, die zu schönen Stunden in der Sonne einlädt.
Kern-Haus steht für 40 Jahre Expertise für das massive, energieeffiziente Bauen und realisiert Architektenhäuser in Ziegel, Bims, Porenbeton oder Stahlbeton (DuoTherm). Darüber hinaus setzt der Massivhaushersteller auf Energieeffizienz bei all seinen Häusern, denn bereits im Standard ist jedes Haus in der höchsten Energieeffizienzklasse A+.
Merkmale
- Garage
- Gästezimmer
- Dachterrasse
Sie haben Interesse?
Laden Sie sich jetzt Ihr kostenloses Exposé zu diesem Haus herunter:
Grundrissfür Bauhaus Cono
Außenmaße
Länge: 13,35 m
Breite: 17,18 m
Grundrisse
Der Grundriss entspricht nicht Ihren Vorstellungen?
Passen Sie den Grundriss an Ihre persönlichen Bedürfnisse an und besprechen Sie Ihren individuellen Plan mit einem Bauberater des Anbieters.
Merkmale
Energiestandard und Förderung
Energiestandard
Effizienzhaus 55 EE
Dach
Dachform
Flachdach
Preisdetails für Bauhaus Cono
Schlüsselfertig ab
648.900 €
ab 1.953,46 €
Dieser Preis ist ein Beispiel für den Anfang, ein Berater kann Ihnen ein detailliertes Angebot erstellen, das Ihren Bedürfnissen entspricht.
Möchten Sie bei Ihrem Projekt Geld sparen?
Durch einen Angebotsvergleich mit Einfamilienhaus.de können Sie bis zu 20 % Ihrer Baukosten sparen.
Über den Anbieter Kern-Haus
Zum Anbieterprofil
Bewertungen
3,9
(82)

Bewertungen
3,9
82 BewertungenGut
Kern-Haus in Zahlen
Gründungsjahr
1980
Häuser im Angebot
59
Mitarbeiter
300
Bewertungen von Kern-Haus
Frau Kuss ist sehr nett und engagiert. Sie ke...
Frau Kuss ist sehr nett und engagiert. Sie kennt das Unternehmen und hat eine ausführliche Bedarfsanalyse durchgeführt.
21 März 2026Julia V.
Mail erhalten, leider war ich selbst schlecht...
Mail erhalten, leider war ich selbst schlecht erreichbar.
16 März 2024Florian W.
Email erhalten
Email erhalten
10 März 2024Ana Cecilia S.
Leistungsspektrum
Preisgarantie
Bauzeit Garantie
Individuelle Planung
Blower Door Test
Persönliche Beratung für Ihre individuellen Wünsche
Finden Sie jetzt Ihren Ansprechpartner
Kern-Haus
Auszeichnungen, Zertifikate & Mitgliedschaften





Ähnliche Häuser Für Bauhaus Cono