





Bauhaus 245 von Lechner Massivhaus
Preis auf Anfrage
Bewertungen von Lechner Massivhaus
0
(0)
Wohnfläche
244 m²
Zimmer
5
Ausbaustufe
Schlüsselfertig
Bauweise
Massivhaus
Etagen
2
Energiestandard
Effizienzhaus 40 NH
Dachform
Flachdach
Hausart
Mehrfamilienhaus
Beschreibung
Die offene und helle Grundrissgestaltung mit viel Glas ermöglicht eine enge Verbindung zur Natur und unterstreicht die klare Haltung dieses Hauses. Der repräsentative Wohn-, Ess- und Lebensbereich verstärkt das Gefühl von Gelassenheit und Wohlbefinden. Eine Galerie verbindet das Erdgeschoss mit den darüber liegenden Räumen und sorgt für reichlich Tageslicht. Das Obergeschoss verfügt über ein attraktives Bad-Konzept, das nahtlos in Ankleide und Schlafzimmer übergeht. Bodentiefe Fenster in den Zimmern schaffen eine angenehme Lichtatmosphäre.
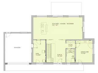
Das Erdgeschoss bietet einen großen, offenen Koch-, Ess- und Wohnbereich mit viel Licht mit Zugang zur Terrasse. Eine optionale Garage, eine großzügige Diele, ein Flur, ein Hauswirtschaftsraum (HAR), ein Bad ergänzen das Wohnkonzept. Durch den (optionalen) Erker schaffen Sie sich weiter Raum für ein inspirierendes Homeoffice, in dem Sie konzentriert arbeiten können oder für einen einladenden Gästebereich.
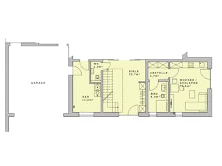
Im Obergeschoss dieses Wohnhauses gibt es genug Platz für alle: zwei Kinderzimmer, ein gemütliches Schlafzimmer mit Ankleidezimmer, ein Gästezimmer und zwei moderne Bäder. Eine schöne Galerie verbindet alles miteinander und sorgt für eine offene und einladende Atmosphäre. Perfekt für Familienleben und Besucher!
Eine alternative Gestaltung des Erdgeschosses könnte eine optionale Einliegerwohnung mit separaten Eingang umfassen anstelle des Gästezimmers. Diese würde einen Wohn-, Ess- und Kochbereich, einen Schlafbereich, ein Bad sowie eine Abstellkammer bieten.
Merkmale
- Einliegerwohnung
- Garage
Sie haben Interesse?
Laden Sie sich jetzt Ihr kostenloses Exposé zu diesem Haus herunter:
Grundrissfür Bauhaus 245
Außenmaße
Länge: 20,85 m
Breite: 11,35 m
Grundrisse
Der Grundriss entspricht nicht Ihren Vorstellungen?
Passen Sie den Grundriss an Ihre persönlichen Bedürfnisse an und besprechen Sie Ihren individuellen Plan mit einem Bauberater des Anbieters.
Merkmale
Energiestandard und Förderung
Energiestandard
Effizienzhaus 40
Effizienzhaus 40 EE
Effizienzhaus 40 NH
Effizienzhaus 55
Effizienzhaus 55 EE
Effizienzhaus 55 NH
Dach
Dachform
Flachdach
Preisdetails für Bauhaus 245
Schlüsselfertig ab
Preis auf Anfrage
Dieser Preis ist ein Beispiel für den Anfang, ein Berater kann Ihnen ein detailliertes Angebot erstellen, das Ihren Bedürfnissen entspricht.
Möchten Sie bei Ihrem Projekt Geld sparen?
Durch einen Angebotsvergleich mit Einfamilienhaus.de können Sie bis zu 20 % Ihrer Baukosten sparen.
Über den Anbieter Lechner Massivhaus
Zum Anbieterprofil
Bewertungen
0
(0)

Bewertungen
0
0 BewertungenKeine
Lechner Massivhaus in Zahlen
Häuser im Angebot
10
Persönliche Beratung für Ihre individuellen Wünsche
Finden Sie jetzt Ihren Ansprechpartner
Lechner Massivhaus
Ähnliche Häuser Für Bauhaus 245