




SOLUTION 110 V3 von Living Fertighaus
Ab 386.578 €
Bewertungen von Living Fertighaus
4,1
(225)
Wohnfläche
100 m²
Zimmer
4
Ausbaustufe
Schlüsselfertig
Bauweise
Fertighaus
Etagen
1
Energiestandard
Effizienzhaus 55
Dachform
Walmdach
Hausart
Einfamilienhaus
Beschreibung
Klassischer Bungalow für ein Leben nah an der Natur
Im intelligent konzipierten Bungalow SOLUTION 110 kannst du dein Zuhause grenzenlos und ohne Schwellen genießen. Auf einer Ebene musst du dabei auf nichts verzichten und kannst alle deine Ideen ganz nach deinen Vorstellungen umsetzen. Große Gemeinschaftsbereiche, kuschelige Schlafräume und praktische Stauflächen machen diesen Bungalow zum perfekten Zuhause für dich und deine Familie. Und für noch mehr Platz gibt es flexible Wohnflächenerweiterungen oder architektonische Gimmicks wie zum Beispiel Giebelerker, Querhäuser oder Übereck-Panoramaerker. Mit dem SOLUTION 110 erleben Individualisten wie du, was das Wohnen auf einer Ebene so besonders macht.
Der Preis bezieht sich auf den Standard-Leistungsumfang in der Ausbaustufe Ausbauhaus-Plus als Effizienzhaus 55 I-KON Standard inkl. Bodenplatte, Zuhause-Paket und Küche gemäß gültiger Bau- und Leistungsbeschreibung Stand 02/2026 und Preisliste 02/2026. Grundrisse und Abbildungen können Extras zeigen. Flächenangaben nach DIN 277.
Sie haben Interesse?
Laden Sie sich jetzt Ihr kostenloses Exposé zu diesem Haus herunter:
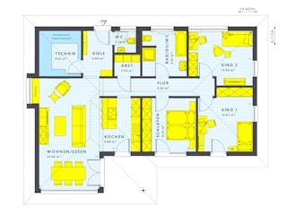
Grundrissfür SOLUTION 110 V3
Außenmaße
Länge: 8,71 m
Breite: 14,96 m
Grundrisse
Der Grundriss entspricht nicht Ihren Vorstellungen?
Passen Sie den Grundriss an Ihre persönlichen Bedürfnisse an und besprechen Sie Ihren individuellen Plan mit einem Bauberater des Anbieters.
Merkmale
Energiestandard und Förderung
Energiestandard
Effizienzhaus 55
U-Wert
0,17
Dach
Dachform
Walmdach
Dachneigung
22°
Preisdetails für SOLUTION 110 V3
Schlüsselfertig ab
386.578 €
ab 1.163,76 €
Dieser Preis ist ein Beispiel für den Anfang, ein Berater kann Ihnen ein detailliertes Angebot erstellen, das Ihren Bedürfnissen entspricht.
Möchten Sie bei Ihrem Projekt Geld sparen?
Durch einen Angebotsvergleich mit Einfamilienhaus.de können Sie bis zu 20 % Ihrer Baukosten sparen.
Über den Anbieter Living Fertighaus
Zum Anbieterprofil
Bewertungen
4,1
(225)

Bewertungen
4,1
225 BewertungenGut
Living Fertighaus in Zahlen
Gründungsjahr
2015
Häuser im Angebot
95
Häuser pro Jahr
> 100
Mitarbeiter
1-10
Bewertungen von Living Fertighaus
Kontakt erfolgte gleich auf mehreren Kanälen....
Kontakt erfolgte gleich auf mehreren Kanälen. Der Vertrieb war sehr schnell. Die Fachperson aber was etwas verhalten in ihrer Ansprache. Wir werden voraussichtlich keinen Termin machen - zu viel Auswahl macht keinen Sinn.
15 Jan. 2026Yvonne G.
Erstberatung erfolgt
Erstberatung erfolgt, Angebot noch offen, noch viele Fragen offen
23 Sep. 2025Frank D.
Versprechen und keine Reaktion mehr
Erstkontakt sehr vielversprechend. Freundliches und aufgeschlossenes Gespräch. Danach leere Versprechen ein Angebot zu erstellen und Infomaterial bereitzustellen. Berater telefonisch nicht mehr erreichbar. Auch via Mail keine Antwort mehr erhalten. Rückmeldungen leider Fehlanzeige. Schade! Schade, weil wir uns mit Living einen vertrauenswürdigen Partner zum Hausbau an die Seite holen wollten,
06 Feb. 2025Dominique G.
Leistungsspektrum
Finanzierungsberatung
Preisgarantie
Bauzeit Garantie
Individuelle Planung
Blower Door Test
Persönliche Beratung für Ihre individuellen Wünsche
Finden Sie jetzt Ihren Ansprechpartner
Living Fertighaus
Ähnliche Häuser Für SOLUTION 110 V3