


Einfamilienhaus Finn von Massive Wohnbau
Preis auf Anfrage
Bewertungen von Massive Wohnbau
3,7
(14)
Wohnfläche
160 m²
Zimmer
6
Bauweise
Massivhaus
Energiestandard
Effizienzhaus 40
Dachform
Satteldach
Hausart
Einfamilienhaus
Beschreibung
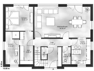
Das Modell „Finn“ist ein weiteres Haus mit Satteldach und drittem Giebel für die besonders große Familie.Vorwiegend bodentiefe Fensterelemente sowie farblich Akzente prägen die Fassade und verleihen dem Haus ein modernes Aussehen.
Unterteilt wird das EG in den Elternschlaftrakt mit großer Ankleide und eigenem Duschbad sowie dem großen Wohn-Essbereich mit offenem Durchgang sich angrenzender Küche, dem Gäste-WC und Hausanschlussraum.
Das DG bietet Raum für fast drei gleich großzügig dimensionoerte Kinderzimmer sowie einen vierten Schlafraum für Gäste, auch als Büro nutzbar. Die Aufteilung des Bades zeichnet sich aus anhand moderner Gestaltung. Für die Unterbringung der Haustechnik steht ein weiterer Raum zur Verfügung.
Sie haben Interesse?
Laden Sie sich jetzt Ihr kostenloses Exposé zu diesem Haus herunter:
Grundrissfür Einfamilienhaus Finn
Grundrisse
Der Grundriss entspricht nicht Ihren Vorstellungen?
Passen Sie den Grundriss an Ihre persönlichen Bedürfnisse an und besprechen Sie Ihren individuellen Plan mit einem Bauberater des Anbieters.
Merkmale
Energiestandard und Förderung
Energiestandard
Effizienzhaus 40
Dach
Dachform
Satteldach
Preisdetails für Einfamilienhaus Finn
Preis auf Anfrage
Dieser Preis ist ein Beispiel für den Anfang, ein Berater kann Ihnen ein detailliertes Angebot erstellen, das Ihren Bedürfnissen entspricht.
Möchten Sie bei Ihrem Projekt Geld sparen?
Durch einen Angebotsvergleich mit Einfamilienhaus.de können Sie bis zu 20 % Ihrer Baukosten sparen.
Über den Anbieter Massive Wohnbau
Zum Anbieterprofil
Bewertungen
3,7
(14)

Bewertungen
3,7
14 BewertungenGut
Massive Wohnbau in Zahlen
Gründungsjahr
1995
Häuser im Angebot
21
Häuser pro Jahr
> 100
Mitarbeiter
> 100
Bewertungen von Massive Wohnbau
Sehr angenehmes Telefonat. Bin noch etwas frü...
Sehr angenehmes Telefonat. Bin noch etwas früh deshalb noch keine weiterführenden Gespräche. Werde diesen Anbieter aber wieder kontaktieren, sobald es einen Schritt weiter geht.
19 Apr. 2026Catherine F.
Wir haben ein 3 Familienhaus errichtet in QNG...
Wir haben ein 3 Familienhaus errichtet in QNG Bauweise, sowohl die Planung seitens Frau Danz war sehr zielgerichtet und "punktgenau". wie auch die Abwicklung über unseren Bauleiter Herrn Kabel. Beim Thema QNG gabs ab und zu ein paar Stolpersteine, da wir eines der ersten überhaupt errichtet haben, aber Herr Kabel hat das mit den Energieberatern souverän gelöst. Die Wohnungen sind mittlerweile bezogen. Wir sind zufrieden
19 Dez. 2025Melanie D.
Persönliche Beratung für Ihre individuellen Wünsche
Finden Sie jetzt Ihren Ansprechpartner
Massive Wohnbau
Ähnliche Häuser Für Einfamilienhaus Finn