















Musterhaus Estenfeld von OKAL Haus
Ab 686.900 €
Bewertungen von OKAL Haus
4,6
(18)
Wohnfläche
259 m²
Zimmer
12
Ausbaustufe
Schlüsselfertig
Bauweise
Fertighaus
Etagen
2
Energiestandard
Effizienzhaus 55
Dachform
Satteldach
Hausart
Zweifamilienhaus
Beschreibung
Das Haus mit den Extras.
„Estenfeld“ überzeugt durch Platz und Raum. 230 qm wollen und dürfen genutzt werden. Der großzügige Grundriss und die offene, helle Raumgestaltung bieten jede Menge Entfaltungsmöglichkeiten.
Die an das Erdgeschoss angrenzende Einliegerwohnung kann als Wohnraumerweiterung genutzt oder ebenso vermietet werden. Highlights im Obergeschoss: die firsthohe Galerie und die über 30 qm große Dachterrasse.
Die markante Fassade, Übereckverglasungen, das abgesetzte Zwerchhaus und der große Dachüberstand sorgen bereits auf den ersten Blick für
Wow-Effekte. Estenfeld – ein Haus, von dem man spricht.
Merkmale
- Einliegerwohnung
- Erker
- Kamin
Sie haben Interesse?
Laden Sie sich jetzt Ihr kostenloses Exposé zu diesem Haus herunter:
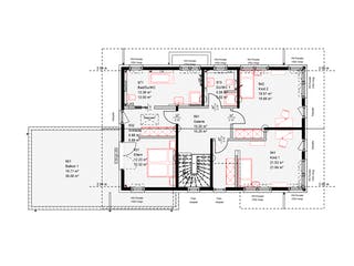
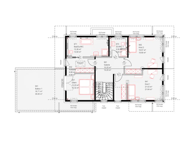
Grundrissfür Musterhaus Estenfeld
Außenmaße
Länge: 19,34 m
Breite: 10,9 m
Grundrisse
Der Grundriss entspricht nicht Ihren Vorstellungen?
Passen Sie den Grundriss an Ihre persönlichen Bedürfnisse an und besprechen Sie Ihren individuellen Plan mit einem Bauberater des Anbieters.
Merkmale
Energiestandard und Förderung
Energiestandard
Effizienzhaus 40
Effizienzhaus 40 Plus
Effizienzhaus 55
Plusenergiehaus
U-Wert
0,12
Dach
Dachform
Satteldach
Dachneigung
28°
Kniestockhöhe
210 cm
Preisdetails für Musterhaus Estenfeld
Schlüsselfertig ab
686.900 €
ab 2.067,86 €
Dieser Preis ist ein Beispiel für den Anfang, ein Berater kann Ihnen ein detailliertes Angebot erstellen, das Ihren Bedürfnissen entspricht.
Möchten Sie bei Ihrem Projekt Geld sparen?
Durch einen Angebotsvergleich mit Einfamilienhaus.de können Sie bis zu 20 % Ihrer Baukosten sparen.
Über den Anbieter OKAL Haus
Zum Anbieterprofil
Bewertungen
4,6
(18)

Bewertungen
4,6
18 BewertungenHervorragend
OKAL Haus in Zahlen
Gründungsjahr
1928
Häuser im Angebot
74
Häuser gesamt
> 90.000
Mitarbeiter
160
Bewertungen von OKAL Haus
Grundstückssuche
Es muss ein Grundstück gefunden werden.
04 Apr. 2026Marina W.
Starker Start in unser Bauprojekt
Beratung, Fachkenntnis, Flexibilität und Geduld – einfach super! Wir hoffen, dass es beim Hausbau genauso weitergeht!
21 Feb. 2026Ronny L.
Gute Beratung Leider hat sich das Projekt er...
Gute Beratung Leider hat sich das Projekt erledigt
14 Feb. 2026Georg M.
Leistungsspektrum
Finanzierungsberatung
Preisgarantie
Bauzeit Garantie
Individuelle Planung
Blower Door Test
Persönliche Beratung für Ihre individuellen Wünsche
Finden Sie jetzt Ihren Ansprechpartner
OKAL Haus
Auszeichnungen, Zertifikate & Mitgliedschaften






Ähnliche Häuser Für Musterhaus Estenfeld