









Amsterdam von P & P Massivhaus
Ab 414.000 €
Bewertungen von P & P Massivhaus
0
(0)
Wohnfläche
166 m²
Zimmer
5
Ausbaustufe
Schlüsselfertig
Bauweise
Massivhaus
Etagen
2
Energiestandard
Effizienzhaus 55
Dachform
Flachdach
Hausart
Einfamilienhaus
Beschreibung
Modernes Einfamilienhaus mit 166 m² – großzügig, hell und vielseitig nutzbar
Dieses moderne Einfamilienhaus begeistert mit klaren Linien, großzügiger Raumaufteilung und einem offenen Wohnkonzept auf ca. 166 m² Wohnfläche – perfekt für Familien oder Paare, die Wert auf Raum, Licht und Flexibilität legen.
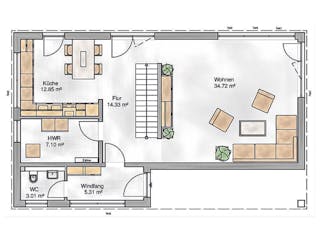
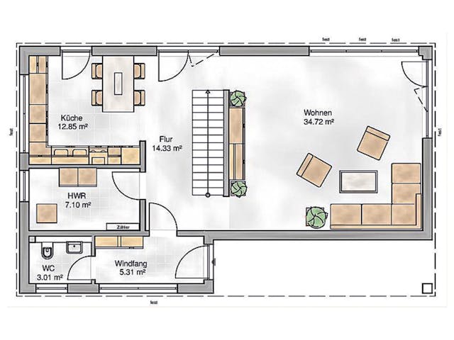
Das Erdgeschoss empfängt Sie mit einem weitläufigen Wohn- und Essbereich, der nahtlos in die offene Küche übergeht. Große Fensterflächen lassen viel Tageslicht herein und schaffen eine freundliche, einladende Atmosphäre – ideal für gesellige Abende und entspannte Stunden im Alltag. Ergänzt wird das Raumangebot durch ein Gäste-WC und praktische Abstellmöglichkeiten.
Im Obergeschoss setzt sich das großzügige Wohngefühl fort. Zwei helle, gut geschnittene Zimmer bieten viel Platz für Kinder, Arbeit oder Hobby. Das großzügige Schlafzimmer überzeugt durch seine ruhige Lage und bietet viel Raum zur Erholung. Abgerundet wird das Obergeschoss durch ein komfortables, modern ausgestattetes Badezimmer mit Dusche und Badewanne – ideal für entspannte Momente nach einem langen Tag.
Dieses Einfamilienhaus verbindet moderne Architektur mit durchdachter Funktionalität und schafft ein Zuhause, das sich flexibel an unterschiedliche Lebensphasen und Bedürfnisse anpasst.
Sie haben Interesse?
Laden Sie sich jetzt Ihr kostenloses Exposé zu diesem Haus herunter:
Grundrissfür Amsterdam
Außenmaße
Länge: 7,9 m
Breite: 13,2 m
Grundrisse
Der Grundriss entspricht nicht Ihren Vorstellungen?
Passen Sie den Grundriss an Ihre persönlichen Bedürfnisse an und besprechen Sie Ihren individuellen Plan mit einem Bauberater des Anbieters.
Merkmale
Energiestandard und Förderung
Energiestandard
Effizienzhaus 40
Effizienzhaus 40 Plus
Effizienzhaus 55
Dach
Dachform
Flachdach
Preisdetails für Amsterdam
Schlüsselfertig ab
414.000 €
ab 1.246,31 €
Dieser Preis ist ein Beispiel für den Anfang, ein Berater kann Ihnen ein detailliertes Angebot erstellen, das Ihren Bedürfnissen entspricht.
Möchten Sie bei Ihrem Projekt Geld sparen?
Durch einen Angebotsvergleich mit Einfamilienhaus.de können Sie bis zu 20 % Ihrer Baukosten sparen.
Über den Anbieter P & P Massivhaus
Zum Anbieterprofil
Bewertungen
0
(0)

Bewertungen
0
0 BewertungenKeine
P & P Massivhaus in Zahlen
Gründungsjahr
2014
Häuser im Angebot
25
Häuser pro Jahr
25
Mitarbeiter
7
Leistungsspektrum
Finanzierungsberatung
Preisgarantie
Bauzeit Garantie
Individuelle Planung
Blower Door Test
Persönliche Beratung für Ihre individuellen Wünsche
Finden Sie jetzt Ihren Ansprechpartner
P & P Massivhaus
Ähnliche Häuser Für Amsterdam