







Garda von P & P Massivhaus
Ab 525.000 €
Bewertungen von P & P Massivhaus
0
(0)
Wohnfläche
199 m²
Zimmer
8
Ausbaustufe
Schlüsselfertig
Bauweise
Massivhaus
Etagen
2
Energiestandard
Effizienzhaus 55
Dachform
Walmdach
Hausart
Mehrfamilienhaus
Beschreibung
Dieses Dreifamilienhaus bietet auf rund 199 m² Wohnfläche drei separate Wohneinheiten und eignet sich ideal als Mehrgenerationenhaus, für Anleger oder für Familien mit zusätzlichem Platzbedarf.
Im Erdgeschoss befindet sich eine großzügige Hauptwohnung, die mit einer offenen, hellen Küche und einem weitläufigen Wohn-Essbereich überzeugt. Zwei weitere Zimmer sowie ein geräumiges Schlafzimmer bieten ausreichend Platz für Familie oder Gäste. Das große Badezimmer ist mit Dusche und Badewanne ausgestattet und schafft eine komfortable Wohlfühlatmosphäre.
Im Obergeschoss befinden sich zwei separate Wohneinheiten, die jeweils über eine großzügige Küche mit angrenzendem Wohn- und Essbereich verfügen. Jede der beiden Einheiten bietet ein Schlafzimmer und ein eigenes Badezimmer, wodurch sich vielfältige Nutzungsmöglichkeiten ergeben – ob zur Vermietung, für erwachsene Kinder oder als Homeoffice-Lösungen.
Die durchdachte Aufteilung und die helle, offene Gestaltung machen dieses Haus zu einer attraktiven Immobilie mit viel Potenzial – sowohl zum Eigennutz als auch zur Kapitalanlage.
Sie haben Interesse?
Laden Sie sich jetzt Ihr kostenloses Exposé zu diesem Haus herunter:
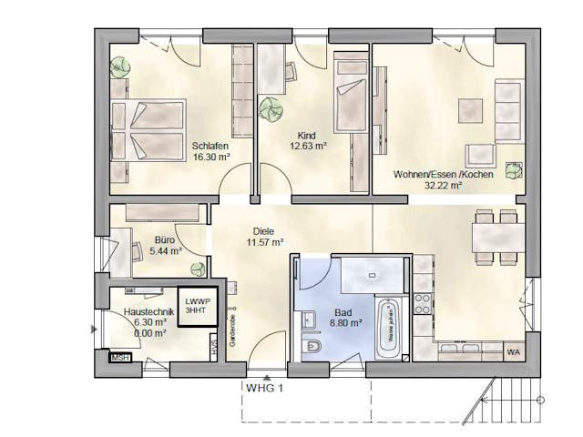
Grundrissfür Garda
Außenmaße
Länge: 12,4 m
Breite: 9,7 m
Grundrisse
Der Grundriss entspricht nicht Ihren Vorstellungen?
Passen Sie den Grundriss an Ihre persönlichen Bedürfnisse an und besprechen Sie Ihren individuellen Plan mit einem Bauberater des Anbieters.
Merkmale
Energiestandard und Förderung
Energiestandard
Effizienzhaus 40
Effizienzhaus 40 Plus
Effizienzhaus 55
Dach
Dachform
Walmdach
Dachneigung
22°
Preisdetails für Garda
Schlüsselfertig ab
525.000 €
ab 1.580,47 €
Dieser Preis ist ein Beispiel für den Anfang, ein Berater kann Ihnen ein detailliertes Angebot erstellen, das Ihren Bedürfnissen entspricht.
Möchten Sie bei Ihrem Projekt Geld sparen?
Durch einen Angebotsvergleich mit Einfamilienhaus.de können Sie bis zu 20 % Ihrer Baukosten sparen.
Über den Anbieter P & P Massivhaus
Zum Anbieterprofil
Bewertungen
0
(0)

Bewertungen
0
0 BewertungenKeine
P & P Massivhaus in Zahlen
Gründungsjahr
2014
Häuser im Angebot
25
Häuser pro Jahr
25
Mitarbeiter
7
Leistungsspektrum
Finanzierungsberatung
Preisgarantie
Bauzeit Garantie
Individuelle Planung
Blower Door Test
Persönliche Beratung für Ihre individuellen Wünsche
Finden Sie jetzt Ihren Ansprechpartner
P & P Massivhaus
Ähnliche Häuser Für Garda