




München von P & P Massivhaus
Ab 410.000 €
Bewertungen von P & P Massivhaus
0
(0)
Wohnfläche
178 m²
Zimmer
5
Ausbaustufe
Schlüsselfertig
Bauweise
Massivhaus
Etagen
2
Energiestandard
Effizienzhaus 55
Dachform
Walmdach
Hausart
Einfamilienhaus
Beschreibung
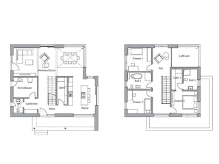
Dieses stilvolle Einfamilienhaus in München bietet mit rund 178m² Wohnfläche ein modernes und zugleich gemütliches Zuhause für die ganze Familie. Im Erdgeschoss eröffnet sich ein großzügiger, offener Wohn- und Essbereich mit integrierter Küche – ein lichtdurchfluteter Mittelpunkt des Hauses, der zum gemeinsamen Kochen, Essen und Entspannen einlädt. Ergänzt wird diese Ebene durch ein Gäste-WC, eine Garderobe sowie einen funktionalen Technikraum.
Im Obergeschoss befindet sich der private Rückzugsbereich mit einem komfortablen Schlafzimmer, das über ein eigenes Bad und eine angrenzende Ankleide verfügt. Zwei weitere helle Zimmer bieten flexible Nutzungsmöglichkeiten – ob als Kinderzimmer, Büro oder Gästezimmer. Ein zusätzliches Badezimmer mit Dusche und Badewanne sorgt für Komfort und ausreichend Platz im Familienalltag.
Die moderne Architektur, durchdachte Raumaufteilung und die freundliche, helle Atmosphäre machen dieses Haus zu einem idealen Zuhause für Familien. Große Fensterflächen lassen viel Tageslicht herein und schaffen eine warme, einladende Wohnatmosphäre, in der man sich sofort wohlfühlt.
Merkmale
- Balkon
Sie haben Interesse?
Laden Sie sich jetzt Ihr kostenloses Exposé zu diesem Haus herunter:
Grundrissfür München
Grundrisse
Der Grundriss entspricht nicht Ihren Vorstellungen?
Passen Sie den Grundriss an Ihre persönlichen Bedürfnisse an und besprechen Sie Ihren individuellen Plan mit einem Bauberater des Anbieters.
Merkmale
Energiestandard und Förderung
Energiestandard
Effizienzhaus 40
Effizienzhaus 40 Plus
Effizienzhaus 55
Dach
Dachform
Walmdach
Preisdetails für München
Schlüsselfertig ab
410.000 €
ab 1.234,27 €
Dieser Preis ist ein Beispiel für den Anfang, ein Berater kann Ihnen ein detailliertes Angebot erstellen, das Ihren Bedürfnissen entspricht.
Möchten Sie bei Ihrem Projekt Geld sparen?
Durch einen Angebotsvergleich mit Einfamilienhaus.de können Sie bis zu 20 % Ihrer Baukosten sparen.
Über den Anbieter P & P Massivhaus
Zum Anbieterprofil
Bewertungen
0
(0)

Bewertungen
0
0 BewertungenKeine
P & P Massivhaus in Zahlen
Gründungsjahr
2014
Häuser im Angebot
25
Häuser pro Jahr
25
Mitarbeiter
7
Leistungsspektrum
Finanzierungsberatung
Preisgarantie
Bauzeit Garantie
Individuelle Planung
Blower Door Test
Persönliche Beratung für Ihre individuellen Wünsche
Finden Sie jetzt Ihren Ansprechpartner
P & P Massivhaus
Ähnliche Häuser Für München