






Oslo von P & P Massivhaus
Ab 415.000 €
Bewertungen von P & P Massivhaus
0
(0)
Wohnfläche
213 m²
Zimmer
8
Ausbaustufe
Schlüsselfertig
Bauweise
Massivhaus
Etagen
1,5
Energiestandard
Effizienzhaus 55
Dachform
Satteldach
Hausart
Zweifamilienhaus
Beschreibung
Ein Haus – viele Möglichkeiten: Wohnen für mehrere Generationen unter einem Dach
Dieses großzügige Zuhause ist ideal für alle, die mehr Platz benötigen – sei es für die Großfamilie, mehrere Generationen oder einfach für individuelles Wohnen mit Rückzugs- und Entfaltungsmöglichkeiten. Ob Oma und Opa, Kinder oder Enkel – hier findet jeder seinen Platz.
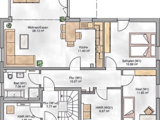
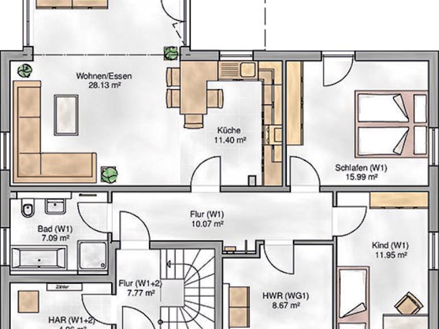
Im Erdgeschoss befindet sich eine großzügige Wohneinheit mit ca. 110?m² Wohnfläche, die sich perfekt für eine vierköpfige Familie eignet. Sie vereint die Vorteile einer klassischen Eigentumswohnung mit dem Komfort und der Privatsphäre eines freistehenden Einfamilienhauses.
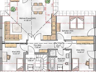
Das Dachgeschoss bietet mit rund 100?m² zusätzliche Wohnfläche – ideal zum Wohnen, Arbeiten oder für die persönliche Freizeitgestaltung. Auf Wunsch kann diese Einheit mit einem Balkon ausgestattet werden, um den Wohnkomfort noch weiter zu steigern.
Die Grundrisse sind flexibel gestaltbar und lassen sich individuell an Ihre Wünsche und Lebenssituation anpassen. Ob als großzügiges Einfamilienhaus, praktisches Zweifamilienhaus oder zwei separate Eigentumswohnungen – hier haben Sie die Wahl. Entscheiden Sie selbst, ob Sie ein modernes, offenes Wohnkonzept bevorzugen oder klassische Raumaufteilungen wünschen.
Dieses Haus bietet Ihnen vielseitige Nutzungsmöglichkeiten und schafft Raum für gemeinsames Leben und individuelles Wohnen zugleich.
Sie haben Interesse?
Laden Sie sich jetzt Ihr kostenloses Exposé zu diesem Haus herunter:
Grundrissfür Oslo
Außenmaße
Länge: 13,12 m
Breite: 10,93 m
Grundrisse
Der Grundriss entspricht nicht Ihren Vorstellungen?
Passen Sie den Grundriss an Ihre persönlichen Bedürfnisse an und besprechen Sie Ihren individuellen Plan mit einem Bauberater des Anbieters.
Merkmale
Energiestandard und Förderung
Energiestandard
Effizienzhaus 40
Effizienzhaus 40 Plus
Effizienzhaus 55
Dach
Dachform
Satteldach
Dachneigung
45°
Preisdetails für Oslo
Schlüsselfertig ab
415.000 €
ab 1.249,32 €
Dieser Preis ist ein Beispiel für den Anfang, ein Berater kann Ihnen ein detailliertes Angebot erstellen, das Ihren Bedürfnissen entspricht.
Möchten Sie bei Ihrem Projekt Geld sparen?
Durch einen Angebotsvergleich mit Einfamilienhaus.de können Sie bis zu 20 % Ihrer Baukosten sparen.
Über den Anbieter P & P Massivhaus
Zum Anbieterprofil
Bewertungen
0
(0)

Bewertungen
0
0 BewertungenKeine
P & P Massivhaus in Zahlen
Gründungsjahr
2014
Häuser im Angebot
25
Häuser pro Jahr
25
Mitarbeiter
7
Leistungsspektrum
Finanzierungsberatung
Preisgarantie
Bauzeit Garantie
Individuelle Planung
Blower Door Test
Persönliche Beratung für Ihre individuellen Wünsche
Finden Sie jetzt Ihren Ansprechpartner
P & P Massivhaus
Ähnliche Häuser Für Oslo