





Palermo von P & P Massivhaus
Ab 424.000 €
Bewertungen von P & P Massivhaus
0
(0)
Wohnfläche
203 m²
Zimmer
7
Ausbaustufe
Schlüsselfertig
Bauweise
Massivhaus
Etagen
2
Energiestandard
Effizienzhaus 55
Dachform
Walmdach
Hausart
Einfamilienhaus
Beschreibung
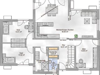
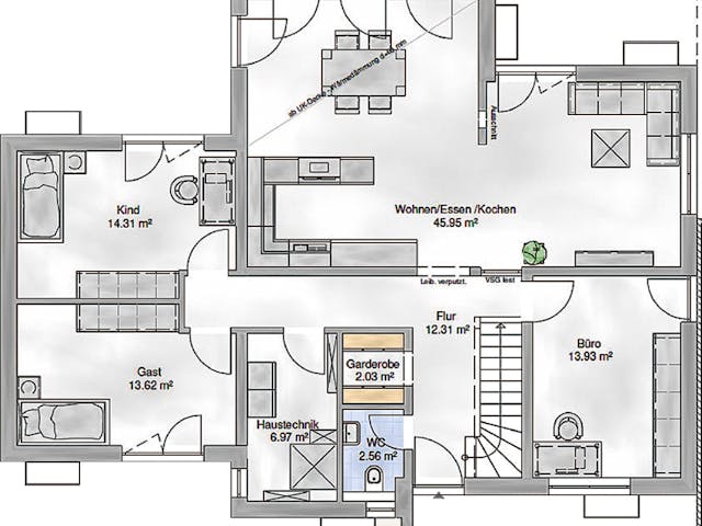
Diese exklusive Stadtvilla vom Typ „Palermo“ verbindet modernes Wohnen mit großzügigem Raumangebot und durchdachter Architektur – ideal für Familien, die Wert auf Stil, Komfort und Lebensqualität legen. Auf insgesamt ca. 203 m² Wohnfläche bietet das Haus viel Platz zum Leben, Entspannen und Wohlfühlen.
Bereits beim Betreten des Erdgeschosses beeindruckt der offene, lichtdurchflutete Wohn- und Essbereich mit angrenzender, moderner Küche. Die großen Fensterflächen sorgen für ein freundliches Ambiente und schaffen eine harmonische Verbindung zwischen Innen- und Außenbereich – perfekt für gemeinsame Familienabende oder das Bewirten von Gästen. Drei weitere Zimmer im Erdgeschoss bieten flexible Nutzungsmöglichkeiten, z. B. als Kinderzimmer, Büro oder Gästezimmer. Ein stilvolles Gäste-WC sowie eine praktische Garderobe im Eingangsbereich runden das Erdgeschoss funktional ab.
Im Obergeschoss erwarten Sie zwei weitere Zimmer, die individuell gestaltet werden können, sowie ein großzügiges Hauptschlafzimmer mit direktem Zugang zu einer komfortablen Ankleide – ein echtes Highlight für alle, die Raum für Ordnung und Ruhe schätzen. Das modern ausgestattete Badezimmer lädt mit einer Badewanne und einer separaten Dusche zur Entspannung ein und bietet ausreichend Platz für die ganze Familie.
Die Villa besticht durch ihre helle, offene Raumgestaltung, klare Linien und hochwertige Ausführung. Ob als Rückzugsort nach einem langen Tag oder als lebendiger Mittelpunkt des Familienlebens – dieses Haus bietet die ideale Balance aus Funktionalität, Wohnkomfort und stilvollem Design. Ein Zuhause, in dem man sich rundum wohlfühlen und glücklich leben kann.
Merkmale
- Gästezimmer
- Balkon
Sie haben Interesse?
Laden Sie sich jetzt Ihr kostenloses Exposé zu diesem Haus herunter:
Grundrissfür Palermo
Grundrisse
Der Grundriss entspricht nicht Ihren Vorstellungen?
Passen Sie den Grundriss an Ihre persönlichen Bedürfnisse an und besprechen Sie Ihren individuellen Plan mit einem Bauberater des Anbieters.
Merkmale
Energiestandard und Förderung
Energiestandard
Effizienzhaus 40
Effizienzhaus 55
Dach
Dachform
Walmdach
Preisdetails für Palermo
Schlüsselfertig ab
424.000 €
ab 1.276,42 €
Dieser Preis ist ein Beispiel für den Anfang, ein Berater kann Ihnen ein detailliertes Angebot erstellen, das Ihren Bedürfnissen entspricht.
Möchten Sie bei Ihrem Projekt Geld sparen?
Durch einen Angebotsvergleich mit Einfamilienhaus.de können Sie bis zu 20 % Ihrer Baukosten sparen.
Über den Anbieter P & P Massivhaus
Zum Anbieterprofil
Bewertungen
0
(0)

Bewertungen
0
0 BewertungenKeine
P & P Massivhaus in Zahlen
Gründungsjahr
2014
Häuser im Angebot
25
Häuser pro Jahr
25
Mitarbeiter
7
Leistungsspektrum
Finanzierungsberatung
Preisgarantie
Bauzeit Garantie
Individuelle Planung
Blower Door Test
Persönliche Beratung für Ihre individuellen Wünsche
Finden Sie jetzt Ihren Ansprechpartner
P & P Massivhaus
Ähnliche Häuser Für Palermo