






Pisa von P & P Massivhaus
Ab 339.000 €
Bewertungen von P & P Massivhaus
0
(0)
Wohnfläche
156 m²
Zimmer
6
Ausbaustufe
Schlüsselfertig
Bauweise
Massivhaus
Etagen
1,5
Energiestandard
Effizienzhaus 55
Dachform
Satteldach
Hausart
Einfamilienhaus
Beschreibung
Großes, helles und familienfreundliches Einfamilienhaus "Pisa" mit 156 m² und 6 Zimmern
Das Einfamilienhaus Pisa überzeugt mit einer großzügigen Wohnfläche von ca. 156 m², durchdachter Raumaufteilung und einer hellen, freundlichen Atmosphäre – ideal für Familien, die Wert auf Platz, Komfort und Flexibilität legen.
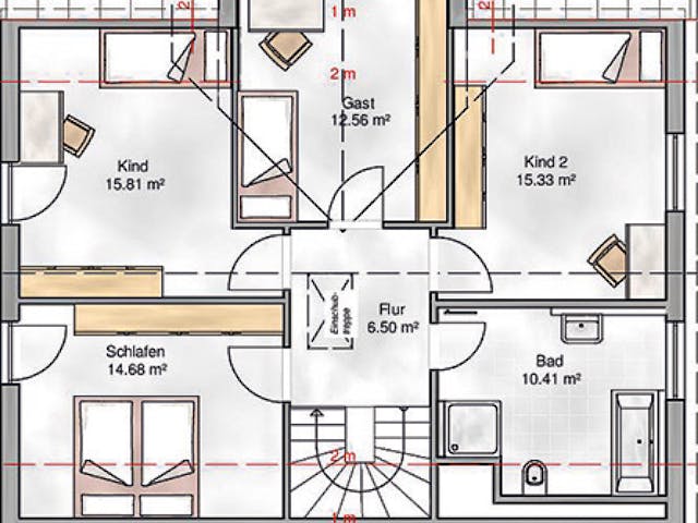
Im Erdgeschoss befindet sich ein offen gestalteter Wohn-, Ess- und Kochbereich, der durch seine Größe und Helligkeit zum zentralen Treffpunkt im Alltag wird. Die moderne Küche ist perfekt in den Wohnraum integriert und bietet viel Platz für gemeinsames Kochen und Genießen. Ein zusätzliches Zimmer auf dieser Ebene lässt sich ganz nach Bedarf als Gästezimmer, Kinderzimmer, Büro oder gemütlicher Rückzugsort nutzen. Ein Gäste-WC rundet das Raumangebot im Erdgeschoss ab.
Das Obergeschoss bietet vier weitere Zimmer – drei davon eignen sich ideal als Kinder-, Arbeits- oder Hobbyzimmer. Das großzügige Elternschlafzimmer schafft zusätzlichen Raum zur Erholung. Ein großes, helles Badezimmer mit Dusche und Badewanne sorgt für entspannten Komfort im Alltag.
Dieses Haus verbindet modernes Wohnen mit hoher Funktionalität und bietet genügend Platz für alle Lebensphasen – ein ideales Zuhause für die ganze Familie.
Merkmale
- Gästezimmer
Sie haben Interesse?
Laden Sie sich jetzt Ihr kostenloses Exposé zu diesem Haus herunter:
Grundrissfür Pisa
Außenmaße
Länge: 11 m
Breite: 9,13 m
Grundrisse
Der Grundriss entspricht nicht Ihren Vorstellungen?
Passen Sie den Grundriss an Ihre persönlichen Bedürfnisse an und besprechen Sie Ihren individuellen Plan mit einem Bauberater des Anbieters.
Merkmale
Energiestandard und Förderung
Energiestandard
Effizienzhaus 40
Effizienzhaus 40 Plus
Effizienzhaus 55
Dach
Dachform
Satteldach
Dachneigung
45°
Preisdetails für Pisa
Schlüsselfertig ab
339.000 €
ab 1.020,53 €
Dieser Preis ist ein Beispiel für den Anfang, ein Berater kann Ihnen ein detailliertes Angebot erstellen, das Ihren Bedürfnissen entspricht.
Möchten Sie bei Ihrem Projekt Geld sparen?
Durch einen Angebotsvergleich mit Einfamilienhaus.de können Sie bis zu 20 % Ihrer Baukosten sparen.
Über den Anbieter P & P Massivhaus
Zum Anbieterprofil
Bewertungen
0
(0)

Bewertungen
0
0 BewertungenKeine
P & P Massivhaus in Zahlen
Gründungsjahr
2014
Häuser im Angebot
25
Häuser pro Jahr
25
Mitarbeiter
7
Leistungsspektrum
Finanzierungsberatung
Preisgarantie
Bauzeit Garantie
Individuelle Planung
Blower Door Test
Persönliche Beratung für Ihre individuellen Wünsche
Finden Sie jetzt Ihren Ansprechpartner
P & P Massivhaus
Ähnliche Häuser Für Pisa