




Vitalhaus Waakirchen von Regnauer Hausbau
Ab 619.130 €
Bewertungen von Regnauer Hausbau
5,0
(1)
Wohnfläche
130 m²
Zimmer
5
Ausbaustufe
Schlüsselfertig
Bauweise
Fertighaus
Energiestandard
Effizienzhaus 40 Plus
Dachform
Flachdach
Hausart
Einfamilienhaus
Beschreibung
Interessante Holzverschalung - Auffällig beim Haus Waakirchen: ein Anbau, der es wie eine Trutzburg zur Straße abriegelt. Dass dies nicht massiv wirkt, liegt an einer waagerechten Holzverschalung, die eine streckende Wirkung besitzt. Diese Fassade nimmt auch das Hauptgebäude im Erdgeschoss auf, sodass eine harmonische Einheit entsteht. Im Dachgeschoss hat das Haus „Waakirchen“ ebenfalls eine waagerechte Holzverschalung erhalten, die mit grauen Platten abschließt. Nur eine leuchtend rote Haustür gibt punktuell einen anderen Ton an und heißt die Gäste des Hauses mit kräftigem Pinselstrich willkommen.
Entspannen auf einer Dachterrasse - My home is my castle: Die junge Baufamilie hat sich ein Haus geschaffen, das sich deutlich als Rückzugsort positioniert, sich andererseits jedoch einladend der Natur des Voralpenlandes öffnet: Auf dem erdgeschossigen Anbau bietet eine Dachterrasse einen herrlichen Blick in die Landschaft des Moränenzuges zwischen Isar- und Tegernseer Gletscher. Im geschützten Dreieck zwischen Wohnhaus und Anbau lädt eine großzügige Terrasse, ebenfalls aus dem Baustoff Holz, zum Verweilen an sonnigen Tagen ein. Mit großen Glasfronten verlängert sich das Erdgeschoss in den Garten. Vom Dachgeschoss aus wiederholt sich diese Öffnung nach außen – durch einen Übergang zur Dachterrasse.
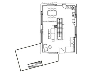
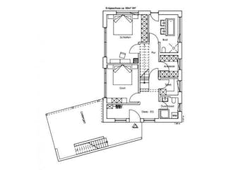
Unkonventionelle Raumnutzung -Ungewöhnlich auch die Raumnutzung: Das Leben der Familie spielt sich im wahrsten Sinne des Wortes unter einem Dach ab. Der 70 Quadratmeter große Wohnraum im Dachgeschoss ist offen: Kochen, Essen und Leben sind nicht durch Türen getrennt. Darunter - im 67 Quadratmeter großen Erdgeschoss - sind das Eltern- und Kinderschlaf- sowie das Badezimmer und der Hauswirtschaftsraum integriert. Damit unten auch dann entspannt geschlafen werden kann, wenn oben noch ein aktives Leben stattfindet, ist die mit dem Bundesinnovationspreis ausgezeichnete Silence-Decke von Regnauer eingebaut worden.
Spannende Kontraste - Das kompakte Einfamilienhaus mit 138 Quadratmetern Gesamtwohnfläche wirkt durch die Offenheit des Dachgeschosses und die Verlängerung durch Terrassen weitaus größer als es eigentlich ist. Ein 24 Grad geneigtes Satteldach mit grauen Tonziegeln hebt es optisch an: In Kombination mit dem erdgeschossigen Anbau und der waagerechten Fassadengestaltung entsteht ein spannender Kontrast. Im Innern schlagen viele Elemente aus Holz – unter anderem eine Kaminliege und die Treppe – den Bogen zum Holz. Einen kühlen Kontrast zum warmen Holz bilden graue Steinböden. Weiße Wände und Möbel schaffen Transparenz. Ruhe strahlt das Einfamilienhaus aus – von innen wie von außen. Hier hat ein Paar Mitte 40, das beruflich sehr engagiert ist, für sich eine Oase zum Abtauchen geschaffen.
Ausführung gemäß aktueller Regnauer Bauleistungs- und Ausstattungsbeschreibung. Weitere Informationen auf www.regnauer.de. Abbildungen können Sonderausstattung zeigen. Wir legen großen Wert darauf, Ihr Vitalhaus ganz nach Ihren persönlichen Wünschen zu gestalten. Gemäß Ihren Wünschen und Ihrer Grundstückssituation ergibt sich dann ein exakter Festpreis für Ihr Traumhaus. Daher beziehen sich die Preise auf eine Vitalausstattung ohne spezifische Sonderausstattung.
Voraussetzung zur Erlangung der Bundesförderung für Effiziente Gebäude ist die Einhaltung der diesbezüglichen Förderrichtlinien. So wird hierfür unter anderem die Ausführung einer förderfähigen Haustechnik sowie die entsprechende Ausführung der bauherrenseitigen Leistungen (z.B. Keller und -ausbau) vorausgesetzt. Die Förderrichtlinien sind auch Änderungen unterworfen, sodass die Förderfähigkeit jeweils im Einzelfall geprüft und objektspezifisch durch das Förderinstitut bestätigt werden muss. Auch können einzelne Programme ausgesetzt oder verändert werden. Die Regnauer Hausbau GmbH & Co KG kann keine Finanzierungs- oder Förderberatung durchführen.
Merkmale
- Einliegerwohnung
Sie haben Interesse?
Laden Sie sich jetzt Ihr kostenloses Exposé zu diesem Haus herunter:
Grundrissfür Vitalhaus Waakirchen
Grundrisse
Der Grundriss entspricht nicht Ihren Vorstellungen?
Passen Sie den Grundriss an Ihre persönlichen Bedürfnisse an und besprechen Sie Ihren individuellen Plan mit einem Bauberater des Anbieters.
Merkmale
Energiestandard und Förderung
Energiestandard
Effizienzhaus 40
Effizienzhaus 40 Plus
Dach
Dachform
Flachdach
Preisdetails für Vitalhaus Waakirchen
Schlüsselfertig ab
619.130 €
ab 1.863,84 €
Dieser Preis ist ein Beispiel für den Anfang, ein Berater kann Ihnen ein detailliertes Angebot erstellen, das Ihren Bedürfnissen entspricht.
Möchten Sie bei Ihrem Projekt Geld sparen?
Durch einen Angebotsvergleich mit Einfamilienhaus.de können Sie bis zu 20 % Ihrer Baukosten sparen.
Über den Anbieter Regnauer Hausbau
Zum Anbieterprofil
Bewertungen
5,0
(1)

Bewertungen
5,0
1 BewertungHervorragend
Regnauer Hausbau in Zahlen
Gründungsjahr
1929
Häuser im Angebot
26
Häuser pro Jahr
ca. 100
Häuser gesamt
über 3.000
Mitarbeiter
250
Bewertungen von Regnauer Hausbau
Wir waren den Sommer über im Allgäu und haben...
Wir waren den Sommer über im Allgäu und haben dort diese wunderschönen Häuser bestaunen können! In unserer Phantasie wünschen wir uns auch schon länger solch ein tolles Haus.
07 Dez. 2025Elphi W.
Leistungsspektrum
Finanzierungsberatung
Preisgarantie
Bauzeit Garantie
Individuelle Planung
Blower Door Test
Persönliche Beratung für Ihre individuellen Wünsche
Finden Sie jetzt Ihren Ansprechpartner
Regnauer Hausbau
Auszeichnungen, Zertifikate & Mitgliedschaften






Ähnliche Häuser Für Vitalhaus Waakirchen