





Korntal von Rems-Murr-Holzhaus
Ab 309.330 €
Bewertungen von Rems-Murr-Holzhaus
3,8
(37)
Wohnfläche
142 m²
Zimmer
6
Ausbaustufe
Ausbauhaus
Bauweise
Fertighaus
Etagen
1,5
Energiestandard
Effizienzhaus 55
Dachform
Satteldach
Hausart
Einfamilienhaus
Beschreibung
Wir zeigen hier ein RMH Holzmauerhaus in modernem Baustil. Das Haus wurde individuell für die Baufamilie geplant und gebaut. Die Wände bestehen aus massiven Holzmauer-Elementen mit außenseitiger 140 mm Holzfaserdämmung mit endbehandelter Holzverschalung. Die Holzfenster mit 3-fach Wärmeschutzverglasung sind aus massivem Fichteholz gefertigt und dunkel lasiert. Die Innenseiten der Holzmauer-Elemente sind teilweise in Sichtqualität ausgeführt und teilweise mit Putz versehen. Die Decke über dem EG ist als Holzbalkendecke ausgeführt. Immer für die Tragfähigkeit eines Estrichs ausgelegt. Der Dachstuhl ist als sichtbarer Studiodachstuhl ausgeführt mit sichtbaren, gehobelten Duolam Sparren mit darauf liegender 20 mm Holzverschalung. Die Dämmung besteht aus insgesamt 22 cm Holzfaserplatten und liegt vollflächig auf der 20 mm Holzschalung. Eine Besonderheit ist das regensichere Unterdach, das bei RMH zum Standard gehört. Die Dacheindeckung besteht aus Betondachsteinen mit spezieller Oberfläche (Braas Startechnologie). Durch die vollflächige Holzfaserdämmung auf dem Dach erreichen wir eine Phasenverschiebung von ca. 16 Std. was sich u.a. in einem hervorragenden sommerlichen Hitzeschutz niederschlägt. Wand- und Dachkonstruktionen sind voll diffusionsfähig. Es gibt keinerlei Dampfbrems- oder Dampfsperrfolien. Auch sind keinerlei technische Lüftungs- bzw. Entfeuchtungsanlagen notwendig.
Angaben zum Preis: ab OK Kellerdecke; in der Grundversion laut Leistungsumfang Katalog und incl. 19% MwSt.
Merkmale
- Holzhaus
Sie haben Interesse?
Laden Sie sich jetzt Ihr kostenloses Exposé zu diesem Haus herunter:
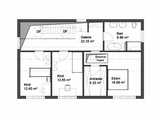
Grundrissfür Korntal
Außenmaße
Länge: 7,7 m
Breite: 12,3 m
Grundrisse
Der Grundriss entspricht nicht Ihren Vorstellungen?
Passen Sie den Grundriss an Ihre persönlichen Bedürfnisse an und besprechen Sie Ihren individuellen Plan mit einem Bauberater des Anbieters.
Merkmale
Energiestandard und Förderung
Energiestandard
Effizienzhaus 55
Dach
Dachform
Satteldach
Dachneigung
35°
Kniestockhöhe
260 cm
Preisdetails für Korntal
Ausbauhaus ab
309.330 €
ab 931,21 €
Dieser Preis ist ein Beispiel für den Anfang, ein Berater kann Ihnen ein detailliertes Angebot erstellen, das Ihren Bedürfnissen entspricht.
Möchten Sie bei Ihrem Projekt Geld sparen?
Durch einen Angebotsvergleich mit Einfamilienhaus.de können Sie bis zu 20 % Ihrer Baukosten sparen.
Über den Anbieter Rems-Murr-Holzhaus
Zum Anbieterprofil
Bewertungen
3,8
(37)

Bewertungen
3,8
37 BewertungenGut
Rems-Murr-Holzhaus in Zahlen
Gründungsjahr
1986
Häuser im Angebot
18
Häuser pro Jahr
20
Mitarbeiter
16
Bewertungen von Rems-Murr-Holzhaus
Hat sich bislang nicht gemeldet und auch kein...
Hat sich bislang nicht gemeldet und auch keine Unterlagen geschickt. Der Baustil passt nicht in die umliegenden Häuser. Wir möchten hier keine weiteren Kontaktaufnahmen.
15 Jan. 2026Yvonne G.
Keine passenden möglichen Lösungen
Keine passenden möglichen Lösungen
25 Sep. 2025Wilfried Z.
Danke für die Informationen
Danke für die Informationen
07 Juni 2025Claudia F.
Leistungsspektrum
Preisgarantie
Bauzeit Garantie
Individuelle Planung
Blower Door Test
Persönliche Beratung für Ihre individuellen Wünsche
Finden Sie jetzt Ihren Ansprechpartner
Rems-Murr-Holzhaus
Ähnliche Häuser Für Korntal