
















SmartSpace Doppelhäuser von SCHWABENHAUS
Ab 308.171 €
Bewertungen von SCHWABENHAUS
4,0
(274)
Wohnfläche
134 m²
Ausbaustufe
Schlüsselfertig
Bauweise
Fertighaus
Etagen
2,5
Energiestandard
Effizienzhaus 40
Dachform
Satteldach
Hausart
Einfamilienhaus
Beschreibung
SmartSpace Doppelhäuser – clever geplant, individuell gestaltet
Mehr Raum. Mehr Flexibilität. Mehr Zuhause.
Mit SmartSpace Doppelhäusern präsentiert Schwabenhaus ein Hausprogramm, das modernes Wohnen auf kompakten Grundstücken neu definiert. Zehn individuell planbare Entwürfe mit Wohnflächen zwischen ca. 111 und 142 Quadratmetern verbinden durchdachte Grundrisse mit zeitgemäßer Architektur – für alle, die Wert auf Qualität, effizientes Bauen und intelligente Raumkonzepte legen.
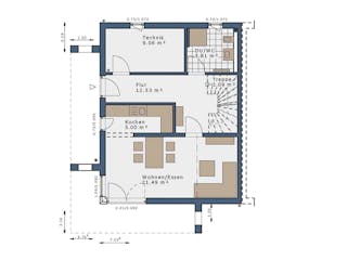
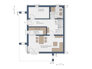
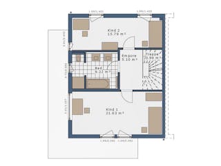
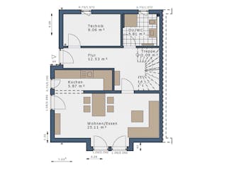
Das Erdgeschoss besticht durch einen offenen Wohn- und Essbereich mit direktem Küchenanschluss, Gäste-WC, Garderobe und Technikraum – ideal für ein harmonisches Miteinander. Im Obergeschoss bieten Schlafzimmer, Badezimmer und flexibel nutzbare Räume viel Platz für Familie, Homeoffice oder Gäste.
SmartSpace Doppelhäuser stehen für clevere Lösungen und Wohlfühlkomfort – und natürlich für die bewährte Schwabenhaus-Qualität, auf die Sie sich verlassen können.
Für wen sind die SmartSpace Doppelhäuser gemacht?
SmartSpace Doppelhäuser sind perfekt für alle, die modernes, funktionales Wohnen mit privater Rückzugsmöglichkeit und Gartenfläche suchen. Für Paare, Familien oder Freunde, die gemeinsam bauen, ohne auf ihre eigene Freiheit verzichten zu wollen. Für Bauherren, die Wert auf flexible Planung, Energieeffizienz und ein gutes Preis-Leistungs-Verhältnis legen. Mit den vielfältigen Entwürfen und der modularen Planung wird aus dem cleveren Doppelhaus schnell Ihr ganz persönliches Zuhause.
Preis-Information: Preise beziehen sich auf das zugrundeliegende Basishaus SmartSpace-D-111 in der Ausbau-Stufe "Fast-Vollendet", Effizienzhaus-55, inkl. Bodenplatte, inkl. All-Inklusive-Leistungspaket, Bilder und Abbildungen können aufpreispflichtige Extras zeigen. Preislisten Stand 08/25
Sie haben Interesse?
Laden Sie sich jetzt Ihr kostenloses Exposé zu diesem Haus herunter:
Merkmale
Energiestandard und Förderung
Energiestandard
Effizienzhaus 40
Dach
Dachform
Satteldach
Preisdetails für SmartSpace Doppelhäuser
Schlüsselfertig ab
308.171 €
ab 927,72 €
Dieser Preis ist ein Beispiel für den Anfang, ein Berater kann Ihnen ein detailliertes Angebot erstellen, das Ihren Bedürfnissen entspricht.
Möchten Sie bei Ihrem Projekt Geld sparen?
Durch einen Angebotsvergleich mit Einfamilienhaus.de können Sie bis zu 20 % Ihrer Baukosten sparen.
Über den Anbieter SCHWABENHAUS
Zum Anbieterprofil
Bewertungen
4,0
(274)

Bewertungen
4,0
274 BewertungenGut
SCHWABENHAUS in Zahlen
Gründungsjahr
1966
Häuser im Angebot
44
Häuser pro Jahr
450
Mitarbeiter
400
Bewertungen von SCHWABENHAUS
Danke an Hrn. Simon. Er ist kompetent und fre...
Danke an Hrn. Simon. Er ist kompetent und freundlich!
03 Apr. 2026Dimitri S.
alles Ok
Bis jetzt Material erhalten. Erste Kontakte
02 Apr. 2026Kurt Heinz H.
Besprechungstermin findet demnächst statt.
Besprechungstermin findet demnächst statt.
16 März 2026Kirsten L.
Leistungsspektrum
Finanzierungsberatung
Preisgarantie
Bauzeit Garantie
Individuelle Planung
Blower Door Test
Persönliche Beratung für Ihre individuellen Wünsche
Finden Sie jetzt Ihren Ansprechpartner
SCHWABENHAUS
Auszeichnungen, Zertifikate & Mitgliedschaften


















Ähnliche Häuser Für SmartSpace Doppelhäuser