












E 20-168.1 - Fertighaus im skandinavischen Landhausstil & Hampton-Flair von SchwörerHaus
Ab 445.047 €
Bewertungen von SchwörerHaus
4,0
(96)
Wohnfläche
139 m²
Zimmer
11
Ausbaustufe
Schlüsselfertig
Bauweise
Fertighaus
Etagen
2
Energiestandard
Effizienzhaus 55
Dachform
Pultdach
Hausart
Einfamilienhaus
Beschreibung
Die rotbraune Holzfassade mit den weiß abgesetzten Sprossenfenstern, der Natur-Gartenteich, die Holzterrasse, die gestreiften Markisen und Sonnenliegen – das Haus von Familie Leißner könnte auch einen schwedischen See säumen. Urlaubsambiente verbreitet es allemal. Und es erzeugt einen Hauch von Sehnsucht nach unbeschwerten Kindertagen.
Betreten wird das in eine Böschung gebaute Haus über das Kellergeschoss. Praktischerweise gibt es eine Verbindungstür zwischen Garage und Diele. So können die Einkäufe wettergeschützt vom Auto in die Küche getragen werden. Die Diele selbst ist mit Parkett, Holzvertäfelung, einer Sitzbank und einem Holzschrank als Garderobe ungemein wohnlich eingerichtet. Hier fühlt man sich sofort willkommen und zu Hause.
Naturbelassene Parkettböden und halbhohe Wandvertäfelungen aus weiß gestrichenem Holz schaffen innen eine gemütliche Ausstattungsgrundlage. Weiße Möbel im modernen Skandinavien-Look in Kombination mit kissenbestückten Sitzkommoden und Flechtkörben generieren einen luftig-leichten Landhausstil. Taubenblaue Akzente an den Wänden und in Form von Polstern sowie hier und da ein hölzerner Dekofisch an der Wand steuern noch eine Brise maritimes Flair bei. Ein Mix aus skandinavischem Landhausstil und sommerlich leichtem Hampton-Flair.
Angaben zum Preis: inkl. 19% MwSt., ab OK Bodenplatte/Kellerdecke, Effizienzhaus 55 EE, Erdgeschoss und Dachgeschoss fast fertig ausgestattet, gültig bis 31.07.2026 für Deutschland außer Inseln.
Merkmale
- Garage
- Gästezimmer
- Holzhaus
Sie haben Interesse?
Laden Sie sich jetzt Ihr kostenloses Exposé zu diesem Haus herunter:
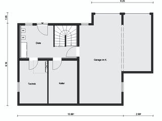
Grundrissfür E 20-168.1 - Fertighaus im skandinavischen Landhausstil & Hampton-Flair
Außenmaße
Länge: 8,46 m
Breite: 10,96 m
Grundrisse
Der Grundriss entspricht nicht Ihren Vorstellungen?
Passen Sie den Grundriss an Ihre persönlichen Bedürfnisse an und besprechen Sie Ihren individuellen Plan mit einem Bauberater des Anbieters.
Merkmale
Energiestandard und Förderung
Energiestandard
Effizienzhaus 55
Dach
Dachform
Pultdach
Dachneigung
12°
Kniestockhöhe
263 cm
Preisdetails für E 20-168.1 - Fertighaus im skandinavischen Landhausstil & Hampton-Flair
Schlüsselfertig ab
445.047 €
ab 1.339,78 €
Dieser Preis ist ein Beispiel für den Anfang, ein Berater kann Ihnen ein detailliertes Angebot erstellen, das Ihren Bedürfnissen entspricht.
Möchten Sie bei Ihrem Projekt Geld sparen?
Durch einen Angebotsvergleich mit Einfamilienhaus.de können Sie bis zu 20 % Ihrer Baukosten sparen.
Über den Anbieter SchwörerHaus
Zum Anbieterprofil
Bewertungen
4,0
(96)

Bewertungen
4,0
96 BewertungenGut
SchwörerHaus in Zahlen
Gründungsjahr
1950
Häuser im Angebot
68
Häuser pro Jahr
800 - 1.000
Häuser gesamt
47.000
Mitarbeiter
1450
Bewertungen von SchwörerHaus
Sehr unfreundlich, Budget interessiert nicht
War unfreundlich, wollte direkt unser Budget um "mindestens" 200.000 € überschreiten und meinte, dieses wäre nicht möglich umzusetzen. Andere Firmen halten unser gesetztes Budget weitestgehend ein.
29 Apr. 2026Marie-Christine B.
Mit Bauaufträgen voll. Bauzeit zu lange, nich...
Mit Bauaufträgen voll. Bauzeit zu lange, nicht flexibel, hält starr an ihrem Konzept fest.
30 Aug. 2025Lothar K.
Sehr schnell!
Sehr schnell!
12 Juli 2025Kirsten K.
Leistungsspektrum
Finanzierungsberatung
Preisgarantie
Bauzeit Garantie
Individuelle Planung
Blower Door Test
Persönliche Beratung für Ihre individuellen Wünsche
Finden Sie jetzt Ihren Ansprechpartner
SchwörerHaus
Auszeichnungen, Zertifikate & Mitgliedschaften


Ähnliche Häuser Für E 20-168.1 - Fertighaus im skandinavischen Landhausstil & Hampton-Flair