


F 10-043.7 - FlyingSpaces Bungalow von SchwörerHaus
Ab 330.857 €
Bewertungen von SchwörerHaus
4,0
(96)
Wohnfläche
43 m²
Zimmer
2,5
Ausbaustufe
Schlüsselfertig
Bauweise
Fertighaus
Etagen
1
Energiestandard
Effizienzhaus 55
Dachform
Flachdach
Hausart
Einfamilienhaus
Beschreibung
Die Wohnbox aus dem Modulkonzept FlyingSpaces wird im Ensemble mit einem Carport und Photovoltaikanlage zu einem modernen Bungalow. Besonders hervorzuheben ist außerdem, dass dieses FlyingSpace als Energie-Plus-Haus ausgeführt ist. Das Bungalow FlyingSpaces mit moderner Holzlamellenfassade präsentiert sich als eigenständige Wohneinheit mit großem Carport, der gleichermaßen als Architekturelement, Energielieferant und Eingangsüberdachung dient. Auf rund 43m² sind der offene Wohn-/Ess-/Kochbereich, das Bad und der Schlafraum verteilt.
Angaben zum Preis: inkl. 19% MwSt., ab OK Bodenplatte/Kellerdecke, Effizienzhaus 55 EE, Erdgeschoss und Dachgeschoss fast fertig ausgestattet, gültig bis 31.07.2026 für Deutschland außer Inseln.
Zzgl. Transport, Autokran, verkehrslenkenden Maßnahmen (VLM) sowie Polizeibegleitung/Transportsicherung.
Sie haben Interesse?
Laden Sie sich jetzt Ihr kostenloses Exposé zu diesem Haus herunter:
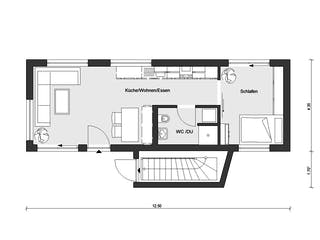
Grundrissfür F 10-043.7 - FlyingSpaces Bungalow
Außenmaße
Länge: 12,5 m
Breite: 4,35 m
Grundrisse
Der Grundriss entspricht nicht Ihren Vorstellungen?
Passen Sie den Grundriss an Ihre persönlichen Bedürfnisse an und besprechen Sie Ihren individuellen Plan mit einem Bauberater des Anbieters.
Merkmale
Energiestandard und Förderung
Energiestandard
Effizienzhaus 40
Effizienzhaus 40 Plus
Effizienzhaus 55
Plusenergiehaus
Dach
Dachform
Flachdach
Preisdetails für F 10-043.7 - FlyingSpaces Bungalow
Schlüsselfertig ab
330.857 €
ab 996,02 €
Dieser Preis ist ein Beispiel für den Anfang, ein Berater kann Ihnen ein detailliertes Angebot erstellen, das Ihren Bedürfnissen entspricht.
Möchten Sie bei Ihrem Projekt Geld sparen?
Durch einen Angebotsvergleich mit Einfamilienhaus.de können Sie bis zu 20 % Ihrer Baukosten sparen.
Über den Anbieter SchwörerHaus
Zum Anbieterprofil
Bewertungen
4,0
(96)

Bewertungen
4,0
96 BewertungenGut
SchwörerHaus in Zahlen
Gründungsjahr
1950
Häuser im Angebot
68
Häuser pro Jahr
800 - 1.000
Häuser gesamt
47.000
Mitarbeiter
1450
Bewertungen von SchwörerHaus
Sehr unfreundlich, Budget interessiert nicht
War unfreundlich, wollte direkt unser Budget um "mindestens" 200.000 € überschreiten und meinte, dieses wäre nicht möglich umzusetzen. Andere Firmen halten unser gesetztes Budget weitestgehend ein.
29 Apr. 2026Marie-Christine B.
Mit Bauaufträgen voll. Bauzeit zu lange, nich...
Mit Bauaufträgen voll. Bauzeit zu lange, nicht flexibel, hält starr an ihrem Konzept fest.
30 Aug. 2025Lothar K.
Sehr schnell!
Sehr schnell!
12 Juli 2025Kirsten K.
Leistungsspektrum
Finanzierungsberatung
Preisgarantie
Bauzeit Garantie
Individuelle Planung
Blower Door Test
Persönliche Beratung für Ihre individuellen Wünsche
Finden Sie jetzt Ihren Ansprechpartner
SchwörerHaus
Auszeichnungen, Zertifikate & Mitgliedschaften


Ähnliche Häuser Für F 10-043.7 - FlyingSpaces Bungalow