







SOLUTION 204 V2 L von Living Fertighaus
Ab 574.055 €
Bewertungen von Living Fertighaus
4,1
(225)
Wohnfläche
204 m²
Zimmer
6
Ausbaustufe
Schlüsselfertig
Bauweise
Fertighaus
Etagen
1,5
Energiestandard
Effizienzhaus 55
Dachform
Satteldach
Hausart
Zweifamilienhaus
Beschreibung
Großzügiges Mehrgenerationenhaus mit 2-geschossigem Giebel-Eckerker
Das Zweifamilienhaus SOLUTION 204 bietet mit seinen beiden übereinanderliegenden und intelligent gestalteten Wohnungen das perfekte Zuhause für zwei Familien. Zur Wahl stehen vier unterschiedliche Dachvarianten und viele attraktive Architektur- und Fassaden-Bauteile. Damit die Wohnungsgröße auch garantiert zu eurer Familiengröße passt, gibt es SOLUTION 204 in den beiden Varianten L und XL. In der Variante L hat jede der beiden Wohnungen zwei Schlafzimmer. Bei der Variante XL kommt jeweils noch ein weiteres hinzu. Für weitere individuelle Größenanpassungen steht euch die SOLUTION Rastererweiterung zur Verfügung.
Der Preis bezieht sich auf den Standard-Leistungsumfang in der Ausbaustufe Ausbauhaus-Plus als Effizienzhaus 55 I-KON Standard inkl. Bodenplatte, Zuhause-Paket und Küche gemäß gültiger Bau- und Leistungsbeschreibung Stand 02/2026 und Preisliste 02/2026. Grundrisse und Abbildungen können Extras zeigen. Flächenangaben nach DIN 277.
Merkmale
- Erker
- Balkon
Sie haben Interesse?
Laden Sie sich jetzt Ihr kostenloses Exposé zu diesem Haus herunter:
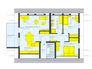
Grundrissfür SOLUTION 204 V2 L
Außenmaße
Länge: 9,96 m
Breite: 12,46 m
Grundrisse
Der Grundriss entspricht nicht Ihren Vorstellungen?
Passen Sie den Grundriss an Ihre persönlichen Bedürfnisse an und besprechen Sie Ihren individuellen Plan mit einem Bauberater des Anbieters.
Merkmale
Energiestandard und Förderung
Energiestandard
Effizienzhaus 55
U-Wert
0,17
Dach
Dachform
Satteldach
Dachneigung
38°
Kniestockhöhe
100 cm
Preisdetails für SOLUTION 204 V2 L
Schlüsselfertig ab
574.055 €
ab 1.728,14 €
Dieser Preis ist ein Beispiel für den Anfang, ein Berater kann Ihnen ein detailliertes Angebot erstellen, das Ihren Bedürfnissen entspricht.
Möchten Sie bei Ihrem Projekt Geld sparen?
Durch einen Angebotsvergleich mit Einfamilienhaus.de können Sie bis zu 20 % Ihrer Baukosten sparen.
Über den Anbieter Living Fertighaus
Zum Anbieterprofil
Bewertungen
4,1
(225)

Bewertungen
4,1
225 BewertungenGut
Living Fertighaus in Zahlen
Gründungsjahr
2015
Häuser im Angebot
95
Häuser pro Jahr
> 100
Mitarbeiter
1-10
Bewertungen von Living Fertighaus
Kontakt erfolgte gleich auf mehreren Kanälen....
Kontakt erfolgte gleich auf mehreren Kanälen. Der Vertrieb war sehr schnell. Die Fachperson aber was etwas verhalten in ihrer Ansprache. Wir werden voraussichtlich keinen Termin machen - zu viel Auswahl macht keinen Sinn.
15 Jan. 2026Yvonne G.
Erstberatung erfolgt
Erstberatung erfolgt, Angebot noch offen, noch viele Fragen offen
23 Sep. 2025Frank D.
Versprechen und keine Reaktion mehr
Erstkontakt sehr vielversprechend. Freundliches und aufgeschlossenes Gespräch. Danach leere Versprechen ein Angebot zu erstellen und Infomaterial bereitzustellen. Berater telefonisch nicht mehr erreichbar. Auch via Mail keine Antwort mehr erhalten. Rückmeldungen leider Fehlanzeige. Schade! Schade, weil wir uns mit Living einen vertrauenswürdigen Partner zum Hausbau an die Seite holen wollten,
06 Feb. 2025Dominique G.
Leistungsspektrum
Finanzierungsberatung
Preisgarantie
Bauzeit Garantie
Individuelle Planung
Blower Door Test
Persönliche Beratung für Ihre individuellen Wünsche
Finden Sie jetzt Ihren Ansprechpartner
Living Fertighaus
Ähnliche Häuser Für SOLUTION 204 V2 L