








Haus Westkirchen von Splietker Bau
Preis auf Anfrage
Bewertungen von Splietker Bau
0
(0)
Wohnfläche
125 m²
Zimmer
3
Ausbaustufe
Schlüsselfertig
Bauweise
Massivhaus
Etagen
2
Energiestandard
Effizienzhaus 55
Dachform
Flachdach
Hausart
Einfamilienhaus
Beschreibung
In diesem kleinen und kompakten Einfamilienhaus in Kubusform findet man auf rund 125 m² helle Räume mit einer modernen Ausstattung. Aluminium-Raffstores sorgen im Sommer für die richtige Beschattung, während ein überdachter Freisitz, direkt an den Wohnbereich angrenzend, für einen fließenden Übergang zum Außenbereich sorgt. Durch hochwertige Dämmmaterialien, moderne Haustechnik und durchdachte Energiegewinnung überzeugt dieses Haus als Effizienzhaus.
Preis auf Anfrage
Sie haben Interesse?
Laden Sie sich jetzt Ihr kostenloses Exposé zu diesem Haus herunter:
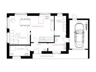
Grundrissfür Haus Westkirchen
Außenmaße
Länge: 12 m
Breite: 8,8 m
Grundrisse
Der Grundriss entspricht nicht Ihren Vorstellungen?
Passen Sie den Grundriss an Ihre persönlichen Bedürfnisse an und besprechen Sie Ihren individuellen Plan mit einem Bauberater des Anbieters.
Merkmale
Energiestandard und Förderung
Energiestandard
Effizienzhaus 40
Effizienzhaus 40 EE
Effizienzhaus 40 NH
Effizienzhaus 40 Plus
Effizienzhaus 55
Effizienzhaus 55 EE
Effizienzhaus 55 NH
Plusenergiehaus
Dach
Dachform
Flachdach
Preisdetails für Haus Westkirchen
Schlüsselfertig ab
Preis auf Anfrage
Dieser Preis ist ein Beispiel für den Anfang, ein Berater kann Ihnen ein detailliertes Angebot erstellen, das Ihren Bedürfnissen entspricht.
Möchten Sie bei Ihrem Projekt Geld sparen?
Durch einen Angebotsvergleich mit Einfamilienhaus.de können Sie bis zu 20 % Ihrer Baukosten sparen.
Über den Anbieter Splietker Bau
Zum Anbieterprofil
Bewertungen
0
(0)

Bewertungen
0
0 BewertungenKeine
Splietker Bau in Zahlen
Gründungsjahr
2019
Häuser im Angebot
11
Häuser pro Jahr
20
Mitarbeiter
17
Leistungsspektrum
Finanzierungsberatung
Preisgarantie
Bauzeit Garantie
Individuelle Planung
Blower Door Test
Persönliche Beratung für Ihre individuellen Wünsche
Finden Sie jetzt Ihren Ansprechpartner
Splietker Bau
Ähnliche Häuser Für Haus Westkirchen