
Trendline 183 von Suckfüll Energiesparhaus
Ab 472.950 €
Bewertungen von Suckfüll Energiesparhaus
3,5
(57)
Wohnfläche
171 m²
Zimmer
5,5
Ausbaustufe
Schlüsselfertig
Bauweise
Fertighaus
Etagen
2
Energiestandard
Effizienzhaus 40
Dachform
Satteldach
Hausart
Einfamilienhaus
Beschreibung
Dieses Haus ist perfekt für Individualisten. Der außergewöhnlich schmale und lange Schnitt führt zu einer ganz besonderen Einteilung in die unterschiedlichen Bereiche.
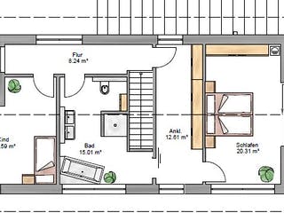
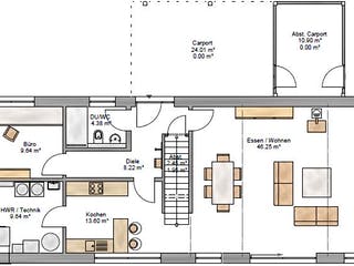
Im Erdgeschoss erstreckt sich der große offene Koch- und Wohnbereich über die gesamte Hausbreite und über mehr als die Hälfte der Gebäudelänge. Weitere Extras sind der Treppenaufgang in diesem Bereich und das mehr als komfortable Angebot zum Wohlfühlen für Eltern und Kind in den Räumen des Obergeschosses, welche keine Dachschrägen haben. Zwei schöne Loggien runden die Wirkung des Hauses ab.
Preise verstehen sich inkl. Bodenplatte und 19 % MwSt. Mehrpreis für den dargestellten Carport mit Einzelfundament = 32.679 €
Merkmale
- Carport
Sie haben Interesse?
Laden Sie sich jetzt Ihr kostenloses Exposé zu diesem Haus herunter:
Grundrissfür Trendline 183
Außenmaße
Länge: 7 m
Breite: 17 m
Grundrisse
Der Grundriss entspricht nicht Ihren Vorstellungen?
Passen Sie den Grundriss an Ihre persönlichen Bedürfnisse an und besprechen Sie Ihren individuellen Plan mit einem Bauberater des Anbieters.
Merkmale
Energiestandard und Förderung
Energiestandard
Effizienzhaus 40
Effizienzhaus 40 Plus
Effizienzhaus 55
Dach
Dachform
Satteldach
Dachneigung
23°
Preisdetails für Trendline 183
Schlüsselfertig ab
472.950 €
Ausbauhaus ab357.806 €
ab 1.423,78 €
Dieser Preis ist ein Beispiel für den Anfang, ein Berater kann Ihnen ein detailliertes Angebot erstellen, das Ihren Bedürfnissen entspricht.
Möchten Sie bei Ihrem Projekt Geld sparen?
Durch einen Angebotsvergleich mit Einfamilienhaus.de können Sie bis zu 20 % Ihrer Baukosten sparen.
Über den Anbieter Suckfüll Energiesparhaus
Zum Anbieterprofil
Bewertungen
3,5
(57)

Bewertungen
3,5
57 BewertungenAkzeptabel
Suckfüll Energiesparhaus in Zahlen
Gründungsjahr
1958
Häuser im Angebot
47
Bewertungen von Suckfüll Energiesparhaus
Herr Krämer hat einen kompetenten Eindruck ge...
Herr Krämer hat einen kompetenten Eindruck gemacht. Das Gespräch war vertrauensvoll und konstruktiv. Das Angebot ist absolut interessant. Suckfüll ist trotz kleinerer Firma eine Bereicherung.
15 Juni 2025Ulrike O.
Suckfull hat ein Online -Video gesendet und a...
Suckfull hat ein Online -Video gesendet und auch Schwabenhaus.
20 Jan. 2024Heike W.
nichts bestimmtes
nichts bestimmtes
02 Aug. 2023Paul B.
Leistungsspektrum
Preisgarantie
Bauzeit Garantie
Individuelle Planung
Blower Door Test
Persönliche Beratung für Ihre individuellen Wünsche
Finden Sie jetzt Ihren Ansprechpartner
Suckfüll Energiesparhaus
Weitere Häuser
Ähnliche Häuser Für Trendline 183