



Doppelhaus V120 von Virtus Massivhaus
Ab 192.500 €
Bewertungen von Virtus Massivhaus
4,5
(33)
Wohnfläche
103 m²
Zimmer
8
Ausbaustufe
Schlüsselfertig
Bauweise
Massivhaus
Etagen
2
Energiestandard
Effizienzhaus 55
Dachform
Satteldach
Hausart
Doppelhaus
Beschreibung
Das Doppelhaus ist für junge Familien eine sinnvolle Alternative zum klassischen Einfamilienhaus - besonders in Regionen mit steigenden Grundstückspreisen. Dank der zweischaligen Trannwand, die störende Geräusche zuverlässig schluckt, bieten unsere Doppelhäuser ein hohes Maß an Ruhe und Privatsphäre.
Selbstverständlich kann jede Doppelhaushälfte individuell nach Ihren Wünschen geplant und gestaltet werden.
Angaben zum Preis: Preis gilt für die Klinker-Variante und Haushälfte
Sie haben Interesse?
Laden Sie sich jetzt Ihr kostenloses Exposé zu diesem Haus herunter:
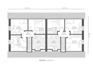
Grundrissfür Doppelhaus V120
Außenmaße
Länge: 8,6 m
Breite: 8,72 m
Grundrisse
Der Grundriss entspricht nicht Ihren Vorstellungen?
Passen Sie den Grundriss an Ihre persönlichen Bedürfnisse an und besprechen Sie Ihren individuellen Plan mit einem Bauberater des Anbieters.
Merkmale
Energiestandard und Förderung
Energiestandard
Effizienzhaus 40
Effizienzhaus 40 Plus
Effizienzhaus 55
Dach
Dachform
Satteldach
Dachneigung
45°
Kniestockhöhe
80 cm
Preisdetails für Doppelhaus V120
Schlüsselfertig ab
192.500 €
ab 579,51 €
Dieser Preis ist ein Beispiel für den Anfang, ein Berater kann Ihnen ein detailliertes Angebot erstellen, das Ihren Bedürfnissen entspricht.
Möchten Sie bei Ihrem Projekt Geld sparen?
Durch einen Angebotsvergleich mit Einfamilienhaus.de können Sie bis zu 20 % Ihrer Baukosten sparen.
Über den Anbieter Virtus Massivhaus
Zum Anbieterprofil
Bewertungen
4,5
(33)

Bewertungen
4,5
33 BewertungenHervorragend
Virtus Massivhaus in Zahlen
Gründungsjahr
2011
Häuser im Angebot
14
Häuser pro Jahr
250
Häuser gesamt
2000
Mitarbeiter
80
Bewertungen von Virtus Massivhaus
Schneller Kontakt, gutes Infomaterial um prei...
Schneller Kontakt, gutes Infomaterial um preislich einen Überblick zu erhalten.
05 Dez. 2025Marlene B.
bisher kein Kontakt
bisher kein Kontakt
23 Sep. 2025Frank D.
Gutes Informationsmaterial. Das Unternehmen hat ein Gesicht.
Unproblematischer Austausch. Schnelle Reaktion online und postalisch.
31 Aug. 2025Willy K.
Leistungsspektrum
Preisgarantie
Bauzeit Garantie
Individuelle Planung
Blower Door Test
Persönliche Beratung für Ihre individuellen Wünsche
Finden Sie jetzt Ihren Ansprechpartner
Virtus Massivhaus
Ähnliche Häuser Für Doppelhaus V120