








Kundenhaus Schneemann von WeberHaus
Ab 318.500 €
Bewertungen von WeberHaus
4,0
(48)
Wohnfläche
79 m²
Zimmer
4
Ausbaustufe
Schlüsselfertig
Bauweise
Fertighaus
Etagen
2
Energiestandard
Effizienzhaus 40
Dachform
Flachdach
Hausart
Einfamilienhaus
Beschreibung
Klein, minimalistisch und abseits der Norm – so zeigt sich dieses individuell geplante Fertighaus in Holzbauweise.
Der zweigeschossige Neubau im schlichten Design ist aufgrund der dunkelgrauen Fassade ein echter Hingucker und fügt sich in die ländliche Umgebung harmonisch ein.
Ein Erker erweitert das Erdgeschoss und große Fensterfronten sorgen für reichlich Tageslicht im ganzen Haus.
Angabe zum Preis:
Der Preis bezieht sich auf die Ausbaustufe Malerfertig, inkl. Bodenplatte, Stand 10/2025
Sie haben Interesse?
Laden Sie sich jetzt Ihr kostenloses Exposé zu diesem Haus herunter:
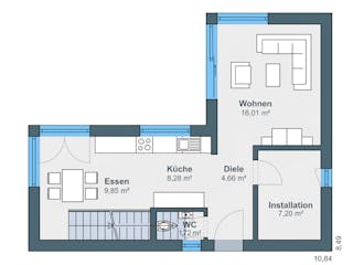
Grundrissfür Kundenhaus Schneemann
Außenmaße
Länge: 8,49 m
Breite: 10,84 m
Grundrisse
Der Grundriss entspricht nicht Ihren Vorstellungen?
Passen Sie den Grundriss an Ihre persönlichen Bedürfnisse an und besprechen Sie Ihren individuellen Plan mit einem Bauberater des Anbieters.
Merkmale
Energiestandard und Förderung
Energiestandard
Effizienzhaus 40
U-Wert
0,11
Dach
Dachform
Flachdach
Preisdetails für Kundenhaus Schneemann
Schlüsselfertig ab
318.500 €
ab 958,82 €
Dieser Preis ist ein Beispiel für den Anfang, ein Berater kann Ihnen ein detailliertes Angebot erstellen, das Ihren Bedürfnissen entspricht.
Möchten Sie bei Ihrem Projekt Geld sparen?
Durch einen Angebotsvergleich mit Einfamilienhaus.de können Sie bis zu 20 % Ihrer Baukosten sparen.
Über den Anbieter WeberHaus
Zum Anbieterprofil
Bewertungen
4,0
(48)

Bewertungen
4,0
48 BewertungenGut
WeberHaus in Zahlen
Gründungsjahr
1960
Häuser im Angebot
46
Häuser pro Jahr
ca. 720
Häuser gesamt
über 41.000
Mitarbeiter
1.290
Bewertungen von WeberHaus
Unkompliziertes Erstgespräch über Teams. Sehr...
Unkompliziertes Erstgespräch über Teams. Sehr netter Berater, der auch schon langjährige Erfahrungen mit dem Unternehmen hat.
21 März 2026Julia V.
Überblick über Angebot
Ich habe einen Überblick bekommen.
30 Nov. 2025Cornelia J.
Gute Beratung und Unterstützung bei der Planu...
Gute Beratung und Unterstützung bei der Planung. Lange Wartezeit bis zur Hausaufstellung. Bedingungen für die Preisgarantie wurden so vorher nicht kommuniziert.
07 Juni 2025Ramona M.
Leistungsspektrum
Finanzierungsberatung
Preisgarantie
Bauzeit Garantie
Individuelle Planung
Blower Door Test
Persönliche Beratung für Ihre individuellen Wünsche
Finden Sie jetzt Ihren Ansprechpartner
WeberHaus
Ähnliche Häuser Für Kundenhaus Schneemann