


Stadtvilla 352 von WEIOTT-Massiv-Haus
Preis auf Anfrage
Bewertungen von WEIOTT-Massiv-Haus
4,4
(5)
Wohnfläche
150 m²
Zimmer
3
Bauweise
Massivhaus
Etagen
2
Energiestandard
Effizienzhaus 55
Dachform
Walmdach
Hausart
Einfamilienhaus
Beschreibung
Sie haben Interesse?
Laden Sie sich jetzt Ihr kostenloses Exposé zu diesem Haus herunter:
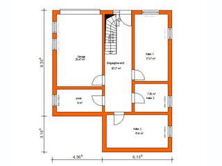
Grundrissfür Stadtvilla 352
Außenmaße
Länge: 12,5 m
Breite: 10,5 m
Grundrisse
Der Grundriss entspricht nicht Ihren Vorstellungen?
Passen Sie den Grundriss an Ihre persönlichen Bedürfnisse an und besprechen Sie Ihren individuellen Plan mit einem Bauberater des Anbieters.
Merkmale
Energiestandard und Förderung
Energiestandard
Effizienzhaus 55
Dach
Dachform
Walmdach
Dachneigung
25°
Preisdetails für Stadtvilla 352
Preis auf Anfrage
Dieser Preis ist ein Beispiel für den Anfang, ein Berater kann Ihnen ein detailliertes Angebot erstellen, das Ihren Bedürfnissen entspricht.
Möchten Sie bei Ihrem Projekt Geld sparen?
Durch einen Angebotsvergleich mit Einfamilienhaus.de können Sie bis zu 20 % Ihrer Baukosten sparen.
Über den Anbieter WEIOTT-Massiv-Haus
Zum Anbieterprofil
Bewertungen
4,4
(5)

Bewertungen
4,4
5 BewertungenHervorragend
WEIOTT-Massiv-Haus in Zahlen
Gründungsjahr
1996
Häuser im Angebot
15
Häuser pro Jahr
15
Häuser gesamt
390
Mitarbeiter
5
Bewertungen von WEIOTT-Massiv-Haus
baut nicht in region
baut nicht in region
03 Aug. 2023Paul B.
Leistungsspektrum
Preisgarantie
Bauzeit Garantie
Individuelle Planung
Blower Door Test
Persönliche Beratung für Ihre individuellen Wünsche
Finden Sie jetzt Ihren Ansprechpartner
WEIOTT-Massiv-Haus
Ähnliche Häuser Für Stadtvilla 352