



Wien von Fingerhut Haus
Ab 437.280 €
Bewertungen von Fingerhut Haus
4,2
(101)
Wohnfläche
140 m²
Zimmer
5
Ausbaustufe
Schlüsselfertig
Bauweise
Fertighaus
Etagen
2
Energiestandard
Effizienzhaus 55
Dachform
Satteldach
Hausart
Einfamilienhaus
Beschreibung
Pure Funktionalität und Eleganz
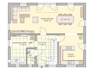
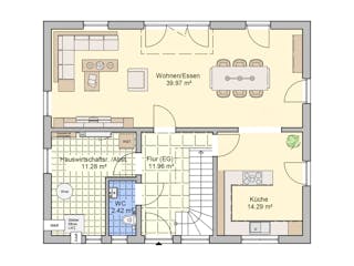
Der Hausentwurf Wien ist wie gemacht für Bauherren, welche Wert auf einen geräumigen und durchdachten Grundriss legen. Herzstück des Hauses ist der große Wohn- und Essbereich, welcher durch einen direkten Zugang mit der großzügig geplanten Küche verbunden ist. In der Küche wurden nicht nur alle Notwendigkeiten wurden hier eingeplant. Zusätzlich ist hier Platz für eine Theke. Außerdem ist im Erdgeschoss Platz für ein Gäste-WC und einen Hauswirtschaftsraum mit integrierter Abstellkammer. Im Dachgeschoss wurde ein Arbeitszimmer und ein Kinderzimmer neben dem großen Badezimmer und dem Schlafzimmer mit anschließender praktischen Ankleide, eingeplant. Die offene Galerie sorgt in der Galerie für ein offenes Wohngefühl und viel natürliches Licht.
Angaben zum Preis:
Die gezeigten Abbildungen zeigen zum Teil Sonderleistungen gegen Mehrpreis. Preis der entsprechenden Ausbaustufe inkl. Fingerhut-Bodenplatte und 19 % MwSt. gemäß der Fingerhut-Bau- und Leistungsbeschreibung 1012, Preisliste P05/25.
Sie haben Interesse?
Laden Sie sich jetzt Ihr kostenloses Exposé zu diesem Haus herunter:
Grundrissfür Wien
Grundrisse
Der Grundriss entspricht nicht Ihren Vorstellungen?
Passen Sie den Grundriss an Ihre persönlichen Bedürfnisse an und besprechen Sie Ihren individuellen Plan mit einem Bauberater des Anbieters.
Merkmale
Energiestandard und Förderung
Energiestandard
Effizienzhaus 40 Plus
Effizienzhaus 55
Plusenergiehaus
U-Wert
0,14
Dach
Dachform
Satteldach
Dachneigung
30°
Kniestockhöhe
180 cm
Preisdetails für Wien
Schlüsselfertig ab
437.280 €
Ausbauhaus ab262.325 €
ab 1.316,40 €
Dieser Preis ist ein Beispiel für den Anfang, ein Berater kann Ihnen ein detailliertes Angebot erstellen, das Ihren Bedürfnissen entspricht.
Möchten Sie bei Ihrem Projekt Geld sparen?
Durch einen Angebotsvergleich mit Einfamilienhaus.de können Sie bis zu 20 % Ihrer Baukosten sparen.
Über den Anbieter Fingerhut Haus
Zum Anbieterprofil
Bewertungen
4,2
(101)

Bewertungen
4,2
101 BewertungenHervorragend
Fingerhut Haus in Zahlen
Gründungsjahr
1903
Häuser im Angebot
100
Mitarbeiter
145
Bewertungen von Fingerhut Haus
Schlechter Kundenservice nach Abschluss des Projekts
Leider haben wir mit FingerhutHaus sehr negative Erfahrungen gemacht. Mehrere Mängel an der Installation wurden trotz eindeutiger Feststellungen durch den Hersteller nicht anerkannt. Die Kommunikation war langwierig, Verantwortlichkeiten wurden wiederholt auf Nachunternehmer abgeschoben, und eine sachgerechte Klärung blieb aus. Auch nach mehrfachen Nachfragen wurden offene Punkte nicht gelöst. Insgesamt können wir den Kundenservice und die Abwicklung nicht empfehlen.
22 Apr. 2026Chris G.
Tolle Qualität, Transparenz. Werden jedoch d...
Tolle Qualität, Transparenz. Werden jedoch das alte Haus nicht abreißen lassen sondern Sanieren. Das spart viel Geld.
15 März 2026Martina W.
Sehr nette und kompetente Beratung.
Sehr nette und kompetente Beratung.
01 Feb. 2026Torsten D.
Leistungsspektrum
Finanzierungsberatung
Preisgarantie
Bauzeit Garantie
Individuelle Planung
Blower Door Test
Persönliche Beratung für Ihre individuellen Wünsche
Finden Sie jetzt Ihren Ansprechpartner
Fingerhut Haus
Ähnliche Häuser Für Wien