


Zweifamilienhaus ZH200 Basis von Baudirekt Architektenhäuser
Preis auf Anfrage
Bewertungen von Baudirekt Architektenhäuser
4,0
(26)
Wohnfläche
196 m²
Zimmer
6
Ausbaustufe
Schlüsselfertig
Bauweise
Massivhaus
Etagen
1,5
Energiestandard
Effizienzhaus 55
Dachform
Krüppelwalmdach
Hausart
Zweifamilienhaus
Beschreibung
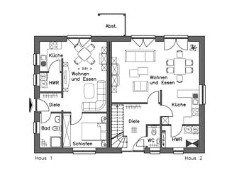
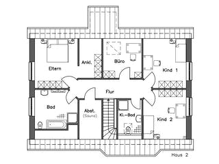
Diese Massiv-Hausidee ist in Form einer Hauptwohnung im Erd- und Dachgeschoss sowie einer Einliegerwohnung im Erdgeschoss angelegt. Die separate Wohnung ist mit einer Wohnfläche von 43 bis knapp 60 m² komplett ebenerdig und perfekt für 1-2 ältere Personen ausgelegt. In der Hauptwohnung mit rund 150 m² findet eine 4-5-köpfige Familie großzügigen Wohnkomfort. Beim ZH 200 können Sie sich auf große Flexibilität bei der Planung verlassen. Wir schaffen den Raum für Sie, den Sie benötigen!
Sie haben Interesse?
Laden Sie sich jetzt Ihr kostenloses Exposé zu diesem Haus herunter:
Grundrissfür Zweifamilienhaus ZH200 Basis
Außenmaße
Länge: 13,67 m
Breite: 9,41 m
Grundrisse
Der Grundriss entspricht nicht Ihren Vorstellungen?
Passen Sie den Grundriss an Ihre persönlichen Bedürfnisse an und besprechen Sie Ihren individuellen Plan mit einem Bauberater des Anbieters.
Merkmale
Energiestandard und Förderung
Energiestandard
Effizienzhaus 55
Dach
Dachform
Krüppelwalmdach
Preisdetails für Zweifamilienhaus ZH200 Basis
Schlüsselfertig ab
Preis auf Anfrage
Dieser Preis ist ein Beispiel für den Anfang, ein Berater kann Ihnen ein detailliertes Angebot erstellen, das Ihren Bedürfnissen entspricht.
Möchten Sie bei Ihrem Projekt Geld sparen?
Durch einen Angebotsvergleich mit Einfamilienhaus.de können Sie bis zu 20 % Ihrer Baukosten sparen.
Über den Anbieter Baudirekt Architektenhäuser
Zum Anbieterprofil
Bewertungen
4,0
(26)

Bewertungen
4,0
26 BewertungenGut
Baudirekt Architektenhäuser in Zahlen
Gründungsjahr
1995
Häuser im Angebot
64
Häuser pro Jahr
> 100
Mitarbeiter
51-100
Bewertungen von Baudirekt Architektenhäuser
Gute Beratung. Alles sehr transparent. Unsich...
Gute Beratung. Alles sehr transparent. Unsicher, ob Fertigstellungstermin auch eingehalten wird.
04 Apr. 2026Bernd D.
Gute Beratung. Günstiger Preis in guter Qualität.
Gute Beratung.
21 März 2026Bernd D.
Keine Rückmeldung
Erst einen Termin doppelt belegt, dann sollte ein neuer Termin vereinbart werden. Kein weiterer Kontakt
31 Jan. 2026Tom S.
Persönliche Beratung für Ihre individuellen Wünsche
Finden Sie jetzt Ihren Ansprechpartner
Baudirekt Architektenhäuser
Weitere Häuser
Beliebte Häuser von Baudirekt Architektenhäuser
Ähnliche Häuser Für Zweifamilienhaus ZH200 Basis