













Zweifamilienhaus ZH200 Variante T von Baudirekt Architektenhäuser
Preis auf Anfrage
Bewertungen von Baudirekt Architektenhäuser
4,0
(26)
Wohnfläche
198 m²
Zimmer
6
Ausbaustufe
Schlüsselfertig
Bauweise
Massivhaus
Energiestandard
Effizienzhaus 55
Dachform
Flachdach
Hausart
Mehrfamilienhaus
Beschreibung
Sie haben Interesse?
Laden Sie sich jetzt Ihr kostenloses Exposé zu diesem Haus herunter:
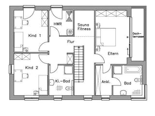
Grundrissfür Zweifamilienhaus ZH200 Variante T
Grundrisse
Der Grundriss entspricht nicht Ihren Vorstellungen?
Passen Sie den Grundriss an Ihre persönlichen Bedürfnisse an und besprechen Sie Ihren individuellen Plan mit einem Bauberater des Anbieters.
Merkmale
Energiestandard und Förderung
Energiestandard
Effizienzhaus 55
Dach
Dachform
Flachdach
Preisdetails für Zweifamilienhaus ZH200 Variante T
Schlüsselfertig ab
Preis auf Anfrage
Dieser Preis ist ein Beispiel für den Anfang, ein Berater kann Ihnen ein detailliertes Angebot erstellen, das Ihren Bedürfnissen entspricht.
Möchten Sie bei Ihrem Projekt Geld sparen?
Durch einen Angebotsvergleich mit Einfamilienhaus.de können Sie bis zu 20 % Ihrer Baukosten sparen.
Über den Anbieter Baudirekt Architektenhäuser
Zum Anbieterprofil
Bewertungen
4,0
(26)

Bewertungen
4,0
26 BewertungenGut
Baudirekt Architektenhäuser in Zahlen
Gründungsjahr
1995
Häuser im Angebot
64
Häuser pro Jahr
> 100
Mitarbeiter
51-100
Bewertungen von Baudirekt Architektenhäuser
Gute Beratung. Alles sehr transparent. Unsich...
Gute Beratung. Alles sehr transparent. Unsicher, ob Fertigstellungstermin auch eingehalten wird.
04 Apr. 2026Bernd D.
Gute Beratung. Günstiger Preis in guter Qualität.
Gute Beratung.
21 März 2026Bernd D.
Keine Rückmeldung
Erst einen Termin doppelt belegt, dann sollte ein neuer Termin vereinbart werden. Kein weiterer Kontakt
31 Jan. 2026Tom S.
Persönliche Beratung für Ihre individuellen Wünsche
Finden Sie jetzt Ihren Ansprechpartner
Baudirekt Architektenhäuser
Weitere Häuser
Beliebte Häuser von Baudirekt Architektenhäuser
Ähnliche Häuser Für Zweifamilienhaus ZH200 Variante T